※このサイトに記載がある賃貸条件は、敷金・保証金などの預かり金を除き、別途消費税がかかります。
物件情報
設備詳細
| 空調 | - |
|---|---|
| トイレ | 男女共用トイレ・室内 |
| 床仕様 | - |
| エレベータ | 1 基 |
| 駐車場設備 | - |
| その他 | 光ファイバー / 新耐震基準 / 1階の物件 / クリニック / 店舗可(飲食不可) |
富岳ビルの賃貸オフィス・事務所に関するお問い合わせ
富岳ビルについて
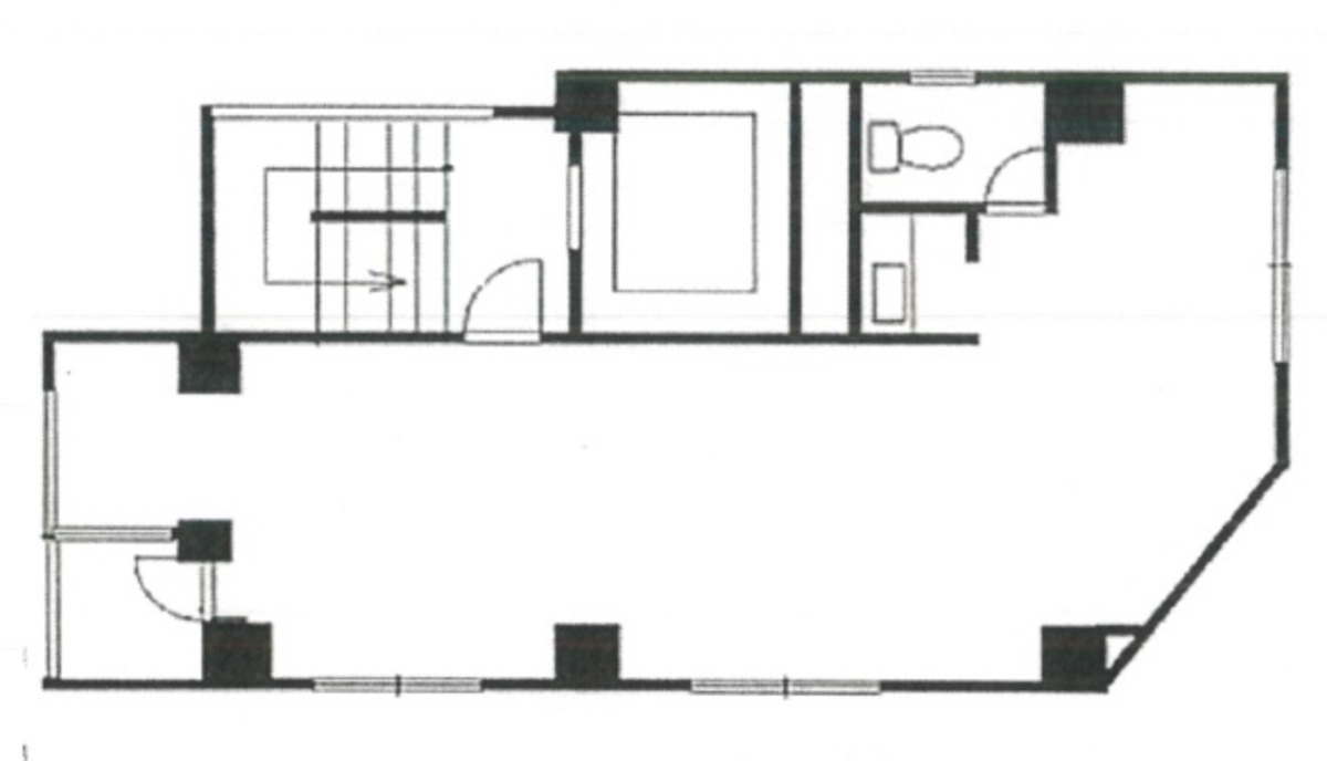
東京都港区赤坂に位置する「富岳ビル」は、ビジネスの中心地としての立地と機能性を兼ね備えた賃貸オフィスビルです。この地に根差し、1989年に竣工したこのビルは、新耐震基準に完全適合し、安心して業務を行える環境を提供しています。地上7階建てで、基準階坪数は約17坪となっており、中小企業やスタートアップ企業に適したサイズ感を持っています。 富岳ビルは、東京メトロ千代田線の赤坂駅から徒歩9分、千代田線・日比谷線・都営大江戸線が乗り入れる乃木坂駅とも徒歩圏内に位置する、アクセスの良さも魅力の一つです。また、ビルの向かいにはコンビニがあり、日々の業務に必要なものを容易に手に入れることができます。さらに、周辺は静かなオフィス街でありながら、六本木ミッドタウンが目の前にあり、ビジネスだけでなく、食事やショッピング、文化施設へのアクセスも抜群です。 内装においては、L字型で奥行きのある間取りが特徴で、水回りも室内に設置されており、オフィスとしての使い勝手の良さを追求しています。また、ビル全体が光ファイバーに引き込まれており、高速インターネット環境が整っているため、情報通信技術を駆使した業務もスムーズに進めることができます。 このビルは、1フロア1テナントの構成となっており、プライバシーが保たれる環境の中で、集中して仕事に取り組むことができます。エレベーターは1基設置されており、日常の移動も快適です。立地、設備、機能性を兼ね備えた富岳ビルは、ビジネスを成功に導くための最適な環境を提供しています。 ビジネスの拠点としての選択肢を探している企業にとって、富岳ビルは、その様々な要望に応えることができる賃貸オフィス物件です。ここでは、企業が成長し、発展していくための基盤を築くことができるでしょう。
富岳ビルのこだわり
自分で探すより問い合わせる方が早いことがあります
WEB非公開物件があるから
オーナー様のご希望により「WEBでは非公開」にしている物件があります。 それらはWEBでいくら検索しても見つかりません。 先ずは条件などお知らせ頂けましたら非公開物件含め ピッタリのオフィスをご提案させて頂きます。 無理なお勧めはしておりませんので、お気軽にお問い合わせください。
対面でのご相談も受け付けております
ご来店も歓迎です
オフィス移転は社内・社外ともに非公開に行われることが殆どです。そのためアットオフィスでは、基本的に訪問によるコンサルティングを行っておりますが、ご来店の相談も歓迎です。お一人おひとりに親身にご対応させて頂きたい為、要予約とさせて頂いております。ご来店の際は先ずは下記よりご予約下さい。
募集終了のテナント区画
| 階数 | 坪数 | 賃料 + 共益費 | 敷金/礼金敷金 礼金 | 検討 |
|---|---|---|---|---|
| 3階 | 17.6坪 (58.2m²) | 募集終了 | - | - |
| 5階 | 17.6坪 (58.18m²) | 募集終了 | - | - |
読込中...
赤坂/六本木/麻布エリアで富岳ビルに似た条件の物件
読込中...
| 取扱様態 | 仲介 |
|---|---|
| 取扱会社 | 株式会社 アットオフィス |