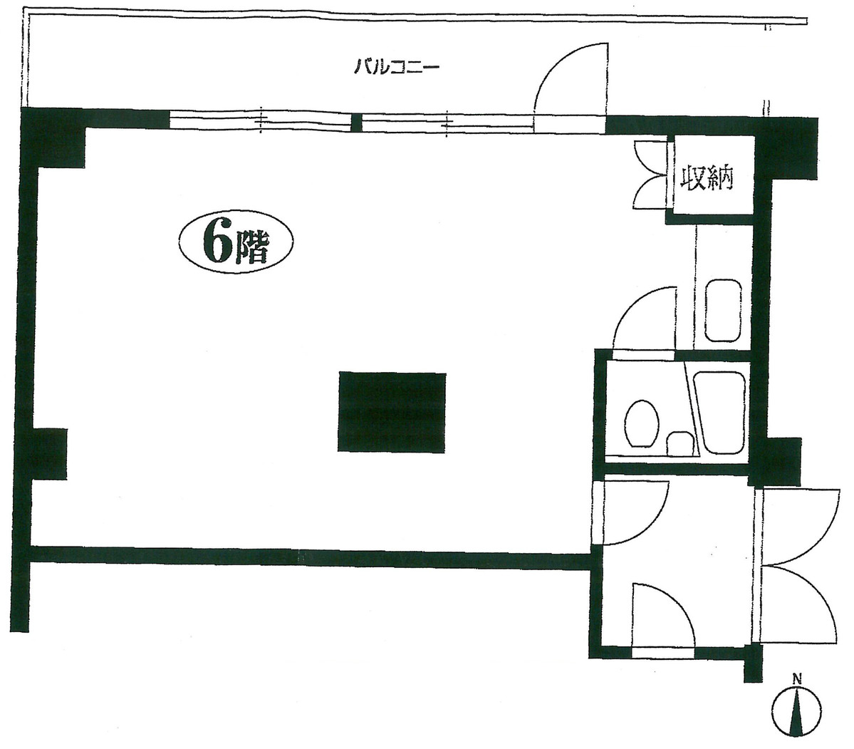
朝日八丁堀ビル6階の賃貸情報
12.06 坪 (39.8m²)
※このサイトに記載がある賃貸条件は、敷金・保証金などの預かり金を除き、別途消費税がかかります。
朝日八丁堀ビルの建物概要
設備詳細
| 空調 | 個別空調 |
|---|---|
| トイレ | - |
| 床仕様 | - |
| エレベータ | 1 基 |
| 駐車場設備 | - |
| その他 | - |
朝日八丁堀ビル6階の賃貸オフィス・事務所に関するお問い合わせ
朝日八丁堀ビルについて
朝日八丁堀ビルは、都心のビジネスシーンの中心に位置する優れたSOHO・事務所用ビルとして、その利便性と機能性で多くのプロフェッショナルたちから高い評価を受けています。中央区入船1丁目に所在するこの物件は、交通のアクセスが非常に良好で、ビジネスの中心地への移動が容易なことが魅力の一つです。また、搬入口を2つ備えており、物資の搬入や搬出がスムーズに行える点も、このビルの特徴の一つと言えるでしょう。 朝日八丁堀ビルの最大の特徴は、その設備の充実度にあります。エレベーターは1機設置されており、日々の出入りが多いオフィス環境においても、スムーズな移動を支援します。また、ビル内部は現代的なデザインが施され、働く人々のクリエイティビティと生産性を高めるような環境が整えられています。SOHOや事務所利用における相談も可能で、様々なビジネスニーズに応じたフレキシブルな利用が期待できます。 立地においても、朝日八丁堀ビルは群を抜いています。ビルは、都心へのアクセスが容易なだけでなく、周辺には飲食店や商業施設が豊富に揃っており、ビジネスアフターのリラクゼーションやクライアントとの会食にも困りません。このような環境は、働く人々の日常生活の質を向上させると共に、ビジネスの場としても最適な条件を提供しています。 朝日八丁堀ビルは、その高いスペックと設備、優れた立地条件を兼ね備え、ビジネスの成功をサポートする理想的な環境を提供しています。このビルの独自の魅力は、ビジネスにおける多様なニーズに応えることができる柔軟性にあります。これから新たにオフィスを構える企業や、より良いビジネス環境を求めているプロフェッショナルにとって、朝日八丁堀ビルは、その野心を実現するための最高の選択肢の一つとなるでしょう。
朝日八丁堀ビルのこだわり
自分で探すより問い合わせる方が早いことがあります
WEB非公開物件があるから
オーナー様のご希望により「WEBでは非公開」にしている物件があります。 それらはWEBでいくら検索しても見つかりません。 先ずは条件などお知らせ頂けましたら非公開物件含め ピッタリのオフィスをご提案させて頂きます。 無理なお勧めはしておりませんので、お気軽にお問い合わせください。
対面でのご相談も受け付けております
ご来店も歓迎です
オフィス移転は社内・社外ともに非公開に行われることが殆どです。そのためアットオフィスでは、基本的に訪問によるコンサルティングを行っておりますが、ご来店の相談も歓迎です。お一人おひとりに親身にご対応させて頂きたい為、要予約とさせて頂いております。ご来店の際は先ずは下記よりご予約下さい。
新富/築地エリアで朝日八丁堀ビルに似た条件の物件
読込中...
朝日八丁堀ビルと同じ最寄駅の物件
読込中...
| 取扱様態 | 仲介 |
|---|---|
| 取扱会社 | 株式会社 アットオフィス |