※このサイトに記載がある賃貸条件は、敷金・保証金などの預かり金を除き、別途消費税がかかります。
物件情報
設備詳細
| 空調 | 個別空調 |
|---|---|
| トイレ | 男女別トイレ |
| 床仕様 | - |
| エレベータ | 32 基 / エレベーター有 |
| 駐車場設備 | 空有 / 敷地内駐車場 |
| その他 | 大型ビル / 高層ビル / 新耐震基準 / 個別*セントラル / 24時間利用可 / 管理人常駐 / 駅直結 |
大手町ファーストスクエア(イーストタワー)の賃貸オフィス・事務所に関するお問い合わせ
大手町ファーストスクエア(イーストタワー)について
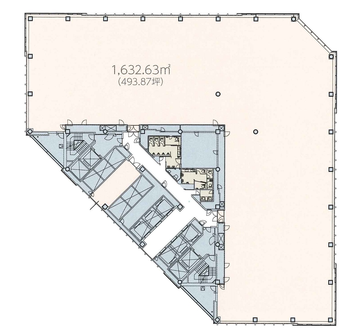
大手町ファーストスクエアイーストタワーは、東京都千代田区大手町一丁目に位置する、1997年竣工のモダンなオフィスビルです。このビルは、地上23階建て、地下5階を含む鉄骨鉄筋コンクリート造りの耐震構造で、基準階面積は約491坪に及びます。その規模と機能性から、ビジネスの中心地である東京のランドマークとしての地位を確立しています。 立地においては、大手町駅から直結、徒歩1分の距離にあり、東京駅からも徒歩5分という抜群のアクセスを誇ります。この立地は、雨の日でも地下道を通って快適に出勤できるほか、東京メトロ千代田線、東西線、半蔵門線、都営三田線、丸ノ内線やJR各線を利用できるため、都内外へのアクセスが非常に容易です。 ビル内のセキュリティシステムはフラッパーゲートを備え、機械警備と有人警備の併用で24時間体制を敷いています。これにより、テナント企業は安心してビジネスを行うことができます。また、エントランスには総合受付があり、ビジターの第一印象を高めるとともに、ビル内のセキュリティ管理も強化しています。 設備面では、OAフロアや個別空調システム、高速光ファイバーインターネット接続、男女別トイレなど、テナントのニーズに応える先進的なオフィス環境を提供します。特に、グリッド式の天井は内装のカスタマイズを容易にし、空間利用の効率を高めます。また、ビル内には飲食店やコンビニなどのテナントも入居しており、日々の利便性が高い点も魅力の一つです。 大手町ファーストスクエアイーストタワーは、その立地の良さ、先進的な設備、そして快適なオフィス環境を兼ね備えたビジネスの拠点として、多くの企業に選ばれています。ビルのデザインと機能性が融合したこの物件は、企業のブランドイメージを高めるだけでなく、働く人々の生産性向上にも寄与するでしょう。
自分で探すより問い合わせる方が早いことがあります
WEB非公開物件があるから
オーナー様のご希望により「WEBでは非公開」にしている物件があります。 それらはWEBでいくら検索しても見つかりません。 先ずは条件などお知らせ頂けましたら非公開物件含め ピッタリのオフィスをご提案させて頂きます。 無理なお勧めはしておりませんので、お気軽にお問い合わせください。
対面でのご相談も受け付けております
ご来店も歓迎です
オフィス移転は社内・社外ともに非公開に行われることが殆どです。そのためアットオフィスでは、基本的に訪問によるコンサルティングを行っておりますが、ご来店の相談も歓迎です。お一人おひとりに親身にご対応させて頂きたい為、要予約とさせて頂いております。ご来店の際は先ずは下記よりご予約下さい。
募集終了のテナント区画
読込中...
近くのエリアで探してみる
大手町/丸の内/有楽町エリアで大手町ファーストスクエア(イーストタワー)に似た条件の物件
読込中...
| 取扱様態 | 仲介 |
|---|---|
| 取扱会社 | 株式会社 アットオフィス |