※このサイトに記載がある賃貸条件は、敷金・保証金などの預かり金を除き、別途消費税がかかります。
物件情報
設備詳細
| 空調 | - |
|---|---|
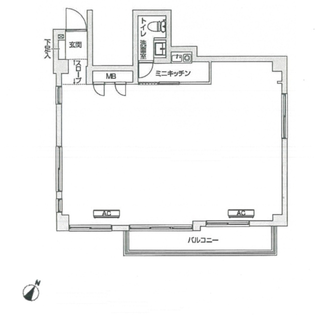
| トイレ | 男女共用トイレ・室内 |
| 床仕様 | - |
| エレベータ | 1 基 |
| 駐車場設備 | - |
| その他 | 24時間利用可 / 保証金・敷金+礼金が3か月以下 |
青山台ビルの賃貸オフィス・事務所に関するお問い合わせ
青山台ビルについて
青山台ビルは、東京都渋谷区渋谷2丁目に位置する、質の高いオフィススペースを提供する賃貸ビルです。このビルは、ビジネスの中心地である渋谷区において、優れた立地条件を誇ります。渋谷駅から徒歩7分、表参道駅から徒歩8分の距離にあるため、2つの主要駅を利用する通勤者にとって非常に便利な場所にあります。また、青山通りに面していることで、高い視認性を確保しており、企業のブランドイメージ向上に貢献します。 竣工は1970年と歴史のある建物ですが、その後、大規模修繕を実施し、現代のビジネスニーズに合わせた機能性と快適性を備えています。エレベーターは1機設置されており、スムーズな移動をサポートします。 周辺環境もビジネスの展開に最適です。青山台ビルの周囲には、多様な飲食店があり、ビジネスランチやアフター5の社交の場として豊富な選択肢を提供します。お昼時には、このエリアが賑わいを見せ、活気あるビジネスシーンの一端を感じることができます。 立地、設備、周辺環境の3つの観点から見ても、青山台ビルは中小企業やスタートアップ企業に最適なオフィススペースです。このビルは、ビジネスの成功をサポートするための環境を整えており、企業が成長し、繁栄するための基盤を提供します。 総じて、青山台ビルは、渋谷区におけるビジネスの拠点として、地理的利便性、設備の充実、そして活気ある周辺環境を兼ね備えた、魅力的なオフィス賃貸ビルです。これらの要素が組み合わさることで、企業が市場での競争力を高め、ビジネスチャンスを最大限に活用できる環境が整っています。
青山台ビルのこだわり
自分で探すより問い合わせる方が早いことがあります
WEB非公開物件があるから
オーナー様のご希望により「WEBでは非公開」にしている物件があります。 それらはWEBでいくら検索しても見つかりません。 先ずは条件などお知らせ頂けましたら非公開物件含め ピッタリのオフィスをご提案させて頂きます。 無理なお勧めはしておりませんので、お気軽にお問い合わせください。
対面でのご相談も受け付けております
ご来店も歓迎です
オフィス移転は社内・社外ともに非公開に行われることが殆どです。そのためアットオフィスでは、基本的に訪問によるコンサルティングを行っておりますが、ご来店の相談も歓迎です。お一人おひとりに親身にご対応させて頂きたい為、要予約とさせて頂いております。ご来店の際は先ずは下記よりご予約下さい。
募集終了のテナント区画
| 階数 | 坪数 | 賃料 + 共益費 | 敷金/礼金敷金 礼金 | 検討 |
|---|---|---|---|---|
| B1階 | 10.85坪 (35.88m²) | 募集終了 | - | - |
| 1階 | 17.2坪 (56.85m²) | 募集終了 | - | - |
| 3階 | 14坪 (46.2m²) | 募集終了 | - | - |
| 4階 | 13.35坪 (44.14m²) | 募集終了 | - | - |
| 5階 | 18.48坪 (61.09m²) | 募集終了 | - | - |
| 5階 | 10.53坪 (34.81m²) | 募集終了 | - | - |
| 7階 | 18.73坪 (61.94m²) | 募集終了 | - | - |
| 9階 | 17.58坪 (58.13m²) | 募集終了 | - | - |
読込中...
渋谷エリアで青山台ビルに似た条件の物件
読込中...
| 取扱様態 | 仲介 |
|---|---|
| 取扱会社 | 株式会社 アットオフィス |