※このサイトに記載がある賃貸条件は、敷金・保証金などの預かり金を除き、別途消費税がかかります。
物件情報
設備詳細
| 空調 | - |
|---|---|
| トイレ | - |
| 床仕様 | - |
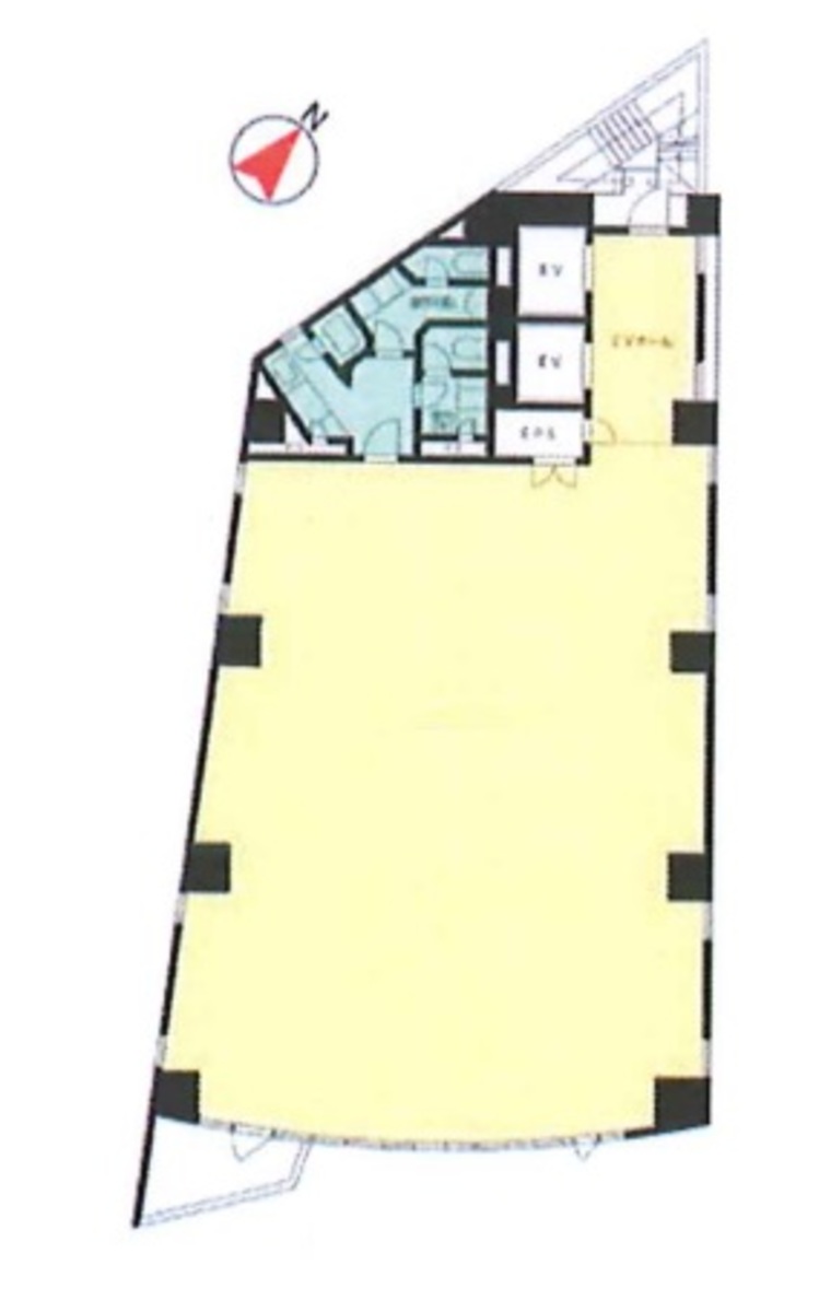
| エレベータ | 2 基 |
| 駐車場設備 | - |
| その他 | 機械警備 / 光ファイバー / 新耐震基準 |
VORT神谷町Ⅱの賃貸オフィス・事務所に関するお問い合わせ
VORT神谷町Ⅱについて
VORT神谷町2は、東京都港区麻布台1-7-3に位置する賃貸オフィスビルで、1992年に竣工した地上9階建ての建物です。このビルは、ワンフロアあたり約54坪の広さを誇り、各テナントには個別空調とOAフロアが完備されています。これにより、テナントは自社に最適なオフィス環境を構築することができます。 立地に関しては、VORT神谷町2は非常にアクセスが良好です。東京メトロ日比谷線の神谷町駅から徒歩3分の場所にあり、さらには都営大江戸線の赤羽橋駅まで徒歩6分、東京メトロ南北線の六本木一丁目駅まで徒歩7分と、複数の路線が利用可能な点はテナントにとって大きなメリットとなります。また、桜田通りに面しており、ビルへのアクセスだけでなく、ビルからの視認性も非常に高いです。 ビルのセキュリティ面では、機械警備システムを導入しており、テナントは安心して業務に専念することができます。また、設備面では、9人乗りのエレベーターが2基設置されており、ビル内の移動もスムーズです。さらに、24時間使用可能な環境であるため、様々なビジネススタイルに合わせたフレキシブルな働き方が可能となります。 ビルの周辺環境も魅力の一つです。ビル周辺には多数の飲食店やコンビニがあり、日常的なニーズに応えるだけでなく、ビジネスシーンでの接待や打ち合わせにも便利な環境が整っています。さらに、芝公園や東京タワーなどの観光スポットも近く、働く環境としてだけでなく、生活の質を高める要素も豊富に備えています。 VORT神谷町2は、その立地の良さ、充実した設備、そして快適な周辺環境を兼ね備えた賃貸オフィスビルです。ビジネスの拠点としてはもちろん、社員が快適に働ける環境を求める企業にとって最適な選択肢と言えるでしょう。
VORT神谷町Ⅱのこだわり
自分で探すより問い合わせる方が早いことがあります
WEB非公開物件があるから
オーナー様のご希望により「WEBでは非公開」にしている物件があります。 それらはWEBでいくら検索しても見つかりません。 先ずは条件などお知らせ頂けましたら非公開物件含め ピッタリのオフィスをご提案させて頂きます。 無理なお勧めはしておりませんので、お気軽にお問い合わせください。
対面でのご相談も受け付けております
ご来店も歓迎です
オフィス移転は社内・社外ともに非公開に行われることが殆どです。そのためアットオフィスでは、基本的に訪問によるコンサルティングを行っておりますが、ご来店の相談も歓迎です。お一人おひとりに親身にご対応させて頂きたい為、要予約とさせて頂いております。ご来店の際は先ずは下記よりご予約下さい。
募集終了のテナント区画
| 階数 | 坪数 | 賃料 + 共益費 | 敷金/礼金敷金 礼金 | 検討 |
|---|---|---|---|---|
| 1階 | 40.72坪 (134.61m²) | 募集終了 | - | - |
| 2階 | 53.69坪 (177.49m²) | 募集終了 | - | - |
| 5階 | 53.69坪 (177.49m²) | 募集終了 | - | - |
| 7階 | 53.69坪 (177.49m²) | 募集終了 | - | - |
読込中...
赤坂/六本木/麻布エリアでVORT神谷町Ⅱに似た条件の物件
読込中...
| 取扱様態 | 仲介 |
|---|---|
| 取扱会社 | 株式会社 アットオフィス |