新代々木ビルの賃料条件
| 階数 | 坪数 | 賃料 + 共益費 | 敷金/礼金敷金 礼金 | 検討 |
|---|---|---|---|---|
| 3階 | 44坪 (145.45m²) | 902,000円 (坪:20,500 円) | 8ヶ月 無8ヶ月/無 | |
| 4階 | 14坪 (46.28m²) | 273,000円 (坪:19,500 円) | 8ヶ月 無8ヶ月/無 |
※このサイトに記載がある賃貸条件は、敷金・保証金などの預かり金を除き、別途消費税がかかります。
物件情報
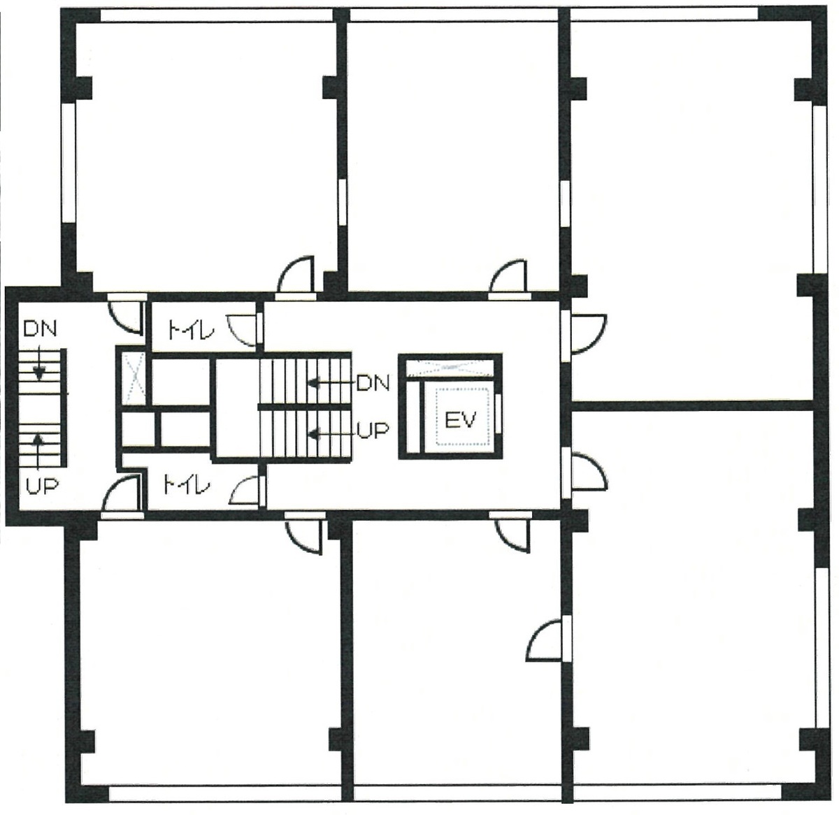
設備詳細
| 空調 | - |
|---|---|
| トイレ | 男女別トイレ室外 |
| 床仕様 | - |
| エレベータ | 1 基 |
| 駐車場設備 | 空有 |
| その他 | 居抜き |
新代々木ビルの賃貸オフィス・事務所に関するお問い合わせ
新代々木ビルについて
新代々木ビルへようこそ!渋谷区代々木1丁目の非常に魅力的な立地に位置するこのオフィスビルは、ビジネスの中心地として理想的な選択肢を提供します。1974年に竣工したこのビルは、耐震性に優れた鉄筋コンクリート造りで、地上5階建の構造を誇ります。各フロアは約60坪の広さで、快適な個別空調システムが完備されています。エレベーターは1基設置されており、フロアへのアクセスもスムーズです。 立地においても新代々木ビルは魅力的です。代々木駅からわずか徒歩4分、北参道駅からは徒歩6分と、複数の駅が徒歩圏内にあり、アクセスの良さはビジネスにおける大きな利点です。さらに、南新宿駅も近くにあります。この優れた立地により、お客様やビジネスパートナーとの面会が容易になります。 新代々木ビルの周辺環境も、ビジネスを行う上で非常に便利です。飲食店、コンビニ、郵便局などが近くにあり、日々の業務や急な用事にも対応しやすいです。また、首都高速の近くに位置しながらも、閑静な環境が保たれており、集中して作業を行うことができます。 ビル自体は、白タイル張りの外観で清潔感があり、エントランスも明るく開放的です。視認性が高い角地に位置しており、ビルへのアクセスも分かりやすいです。また、ビル内に駐車場があるため、車での通勤や訪問も便利です。空き状況については、お問い合わせください。 新代々木ビルは、セントラル空調により、オフィス内の快適な環境を一年中保つことができます。ビジネスの発展に必要なすべての設備が整っており、代々木エリアでのオフィス検討には最適な選択肢です。このビルで、あなたのビジネスを一歩先に進めましょう。新代々木ビルで、新たなビジネスチャンスを掴みましょう。
新代々木ビルのこだわり
自分で探すより問い合わせる方が早いことがあります
WEB非公開物件があるから
オーナー様のご希望により「WEBでは非公開」にしている物件があります。 それらはWEBでいくら検索しても見つかりません。 先ずは条件などお知らせ頂けましたら非公開物件含め ピッタリのオフィスをご提案させて頂きます。 無理なお勧めはしておりませんので、お気軽にお問い合わせください。
対面でのご相談も受け付けております
ご来店も歓迎です
オフィス移転は社内・社外ともに非公開に行われることが殆どです。そのためアットオフィスでは、基本的に訪問によるコンサルティングを行っておりますが、ご来店の相談も歓迎です。お一人おひとりに親身にご対応させて頂きたい為、要予約とさせて頂いております。ご来店の際は先ずは下記よりご予約下さい。
募集終了のテナント区画
| 階数 | 坪数 | 賃料 + 共益費 | 敷金/礼金敷金 礼金 | 検討 |
|---|---|---|---|---|
| 1階 | 14坪 (46.28m²) | 募集終了 | - | - |
| 1階 | 19坪 (62.81m²) | 募集終了 | - | - |
| 2階 | 14坪 (46.28m²) | 募集終了 | - | - |
| 2階 | 22坪 (72.73m²) | 募集終了 | - | - |
| 2階 | 15.96坪 (52.76m²) | 募集終了 | - | - |
| 2階 | 16坪 (52.89m²) | 募集終了 | - | - |
| 2階 | 21.56坪 (71.27m²) | 募集終了 | - | - |
| 2階 | 30坪 (99.17m²) | 募集終了 | - | - |
| 2階 | 36坪 (119m²) | 募集終了 | - | - |
| 3階 | 58坪 (191.74m²) | 募集終了 | - | - |
| 3階 | 102.26坪 (338.04m²) | 募集終了 | - | - |
| 3階 | 30坪 (99m²) | 募集終了 | - | - |
| 3階 | 13.63坪 (45.04m²) | 募集終了 | - | - |
| 3階 | 21.56坪 (71.27m²) | 募集終了 | - | - |
| 3階 | 16坪 (52.89m²) | 募集終了 | - | - |
| 3階 | 14坪 (46.28m²) | 募集終了 | - | - |
| 3階 | 21.56坪 (71.27m²) | 募集終了 | - | - |
| 3階 | 16坪 (52.89m²) | 募集終了 | - | - |
| 3階 | 14坪 (46.28m²) | 募集終了 | - | - |
| 4階 | 16坪 (52.89m²) | 募集終了 | - | - |
| 4階 | 22坪 (72.73m²) | 募集終了 | - | - |
| 4階 | 52坪 (171.9m²) | 募集終了 | - | - |
| 4階 | 30坪 (99.17m²) | 募集終了 | - | - |
| 4階 | 22坪 (72.72m²) | 募集終了 | - | - |
| 5階 | 12坪 (39.66m²) | 募集終了 | - | - |
| 5階 | 12坪 (39.66m²) | 募集終了 | - | - |
読込中...
近くのエリアで探してみる
代々木/初台/幡ヶ谷エリアで新代々木ビルに似た条件の物件
読込中...
| 取扱様態 | 仲介 |
|---|---|
| 取扱会社 | 株式会社 アットオフィス |