新川ダイユウビル3階の賃貸情報
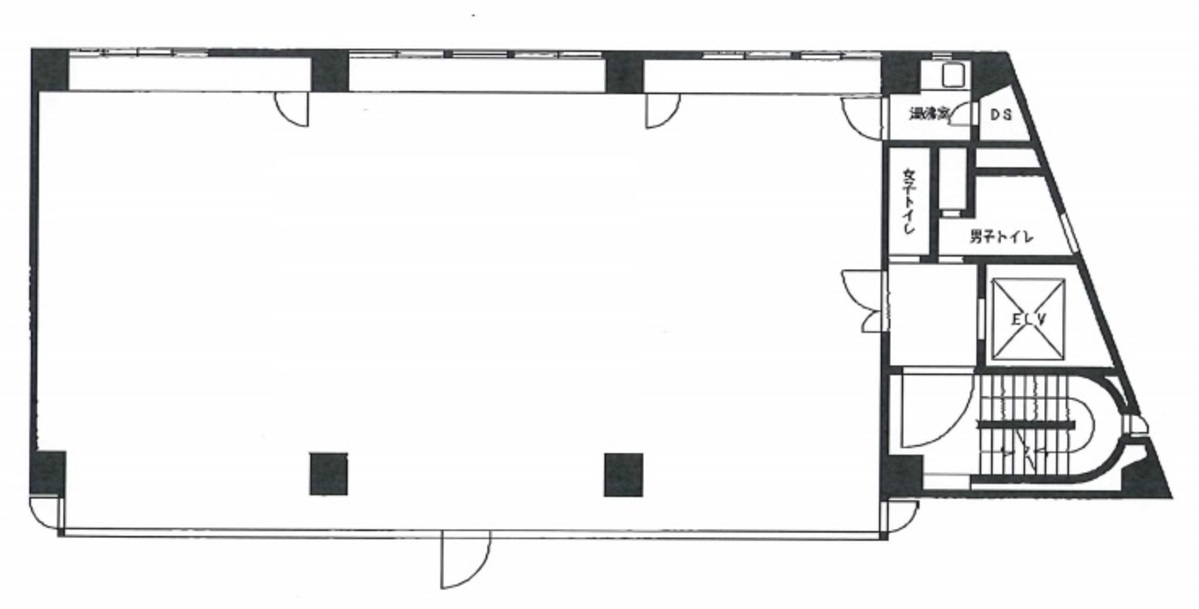
63.24 坪 (209.07m²)
※このサイトに記載がある賃貸条件は、敷金・保証金などの預かり金を除き、別途消費税がかかります。
新川ダイユウビルの建物概要
設備詳細
| 空調 | - |
|---|---|
| トイレ | - |
| 床仕様 | - |
| エレベータ | 1 基 |
| 駐車場設備 | 空有 |
| その他 | 機械警備 / 24時間利用可 / 光ファイバー / クリニック / 東京賃料が坪11000円以下 |
新川ダイユウビル3階の賃貸オフィス・事務所に関するお問い合わせ
新川ダイユウビルについて
新川ダイユウビルは、東京都千代田区東神田に位置する地上10階建ての賃貸オフィスビルであり、その立地と設備の良さで注目を集めています。1972年に竣工され、新耐震基準以前に建てられたこの物件は、歴史と現代性が融合した魅力を持ちます。 立地面では、このビルは複数の駅にアクセスしやすいことが大きな利点です。最寄りの岩本町駅まで徒歩5分、馬喰町駅、馬喰横山駅、秋葉原駅、そして浅草橋駅まで徒歩10分圏内という、交通の便の良さはビジネスシーンにおいて非常に価値があります。特に、JR線を利用できる秋葉原駅へのアクセスは、多方面への移動を考えるビジネスパーソンにとって大きな利点となります。 ビルの設備面では、新川ダイユウビルは多くの点で現代のオフィスニーズに応えています。基準階は約60坪と広々としており、水回りはリニューアルされたばかり。OAフロアの設置や光ケーブルへの対応、個別空調といった設備は、効率的かつ快適なオフィス環境を実現します。また、エレベーターは1機設置されており、機械警備システムによる24時間のセキュリティ体制が整っています。ビル内に駐車場も併設されており、利便性を高めています。 ビルの外観は、ガラス張りで視認性が高く、オフィスビルとしてのプレゼンスを確立しています。大通り沿いに位置しているため、採光と眺望の良さも魅力的です。ビルの周辺環境も素晴らしく、飲食店やコンビニが豊富にあり、日常の利便性が高いです。このように、新川ダイユウビルはビジネスの場としてだけでなく、働く人々の生活の質を高める環境を提供しています。 まとめると、新川ダイユウビルはその立地の良さ、充実した設備、そして周辺環境の豊かさが融合した賃貸オフィスビルです。ビジネスの成功には、働く環境が大きく影響します。新川ダイユウビルは、ビジネスを加速させるための最適な環境を提供しており、あなたの事業拡大の一助となることでしょう。
自分で探すより問い合わせる方が早いことがあります
WEB非公開物件があるから
オーナー様のご希望により「WEBでは非公開」にしている物件があります。 それらはWEBでいくら検索しても見つかりません。 先ずは条件などお知らせ頂けましたら非公開物件含め ピッタリのオフィスをご提案させて頂きます。 無理なお勧めはしておりませんので、お気軽にお問い合わせください。
対面でのご相談も受け付けております
ご来店も歓迎です
オフィス移転は社内・社外ともに非公開に行われることが殆どです。そのためアットオフィスでは、基本的に訪問によるコンサルティングを行っておりますが、ご来店の相談も歓迎です。お一人おひとりに親身にご対応させて頂きたい為、要予約とさせて頂いております。ご来店の際は先ずは下記よりご予約下さい。
神田/秋葉原エリアで新川ダイユウビルに似た条件の物件
読込中...
新川ダイユウビルと同じ最寄駅の物件
読込中...
| 取扱様態 | 仲介 |
|---|---|
| 取扱会社 | 株式会社 アットオフィス |