※このサイトに記載がある賃貸条件は、敷金・保証金などの預かり金を除き、別途消費税がかかります。
物件情報
設備詳細
| 空調 | - |
|---|---|
| トイレ | - |
| 床仕様 | - |
| エレベータ | 1 基 |
| 駐車場設備 | - |
| その他 | 機械警備 / 24時間利用可 |
新宿エステートビルの賃貸オフィス・事務所に関するお問い合わせ
新宿エステートビルについて
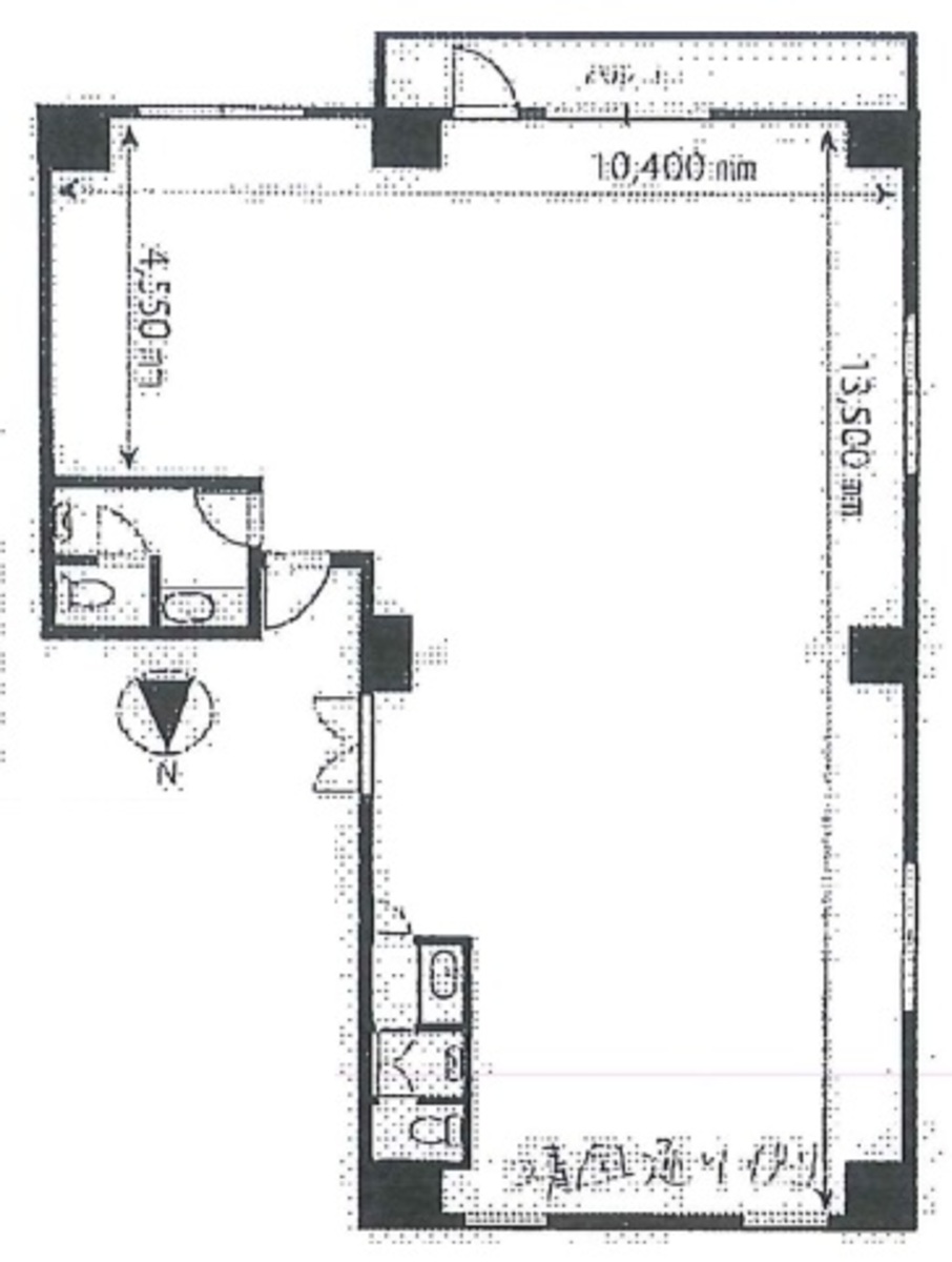
新宿エステートビルは、東京都新宿区新宿1丁目に位置する、1979年竣工の10階建てオフィスビルです。本物件は、基準階坪数約35坪強という規模を持ち、募集時期や階数によっては分割区画の選択肢も提供されているため、様々なビジネスサイズに対応可能な賃貸事務所物件としての利便性を備えています。 新宿エステートビルの内装は、開放感あふれる明るい室内が特徴であり、天井カセット型の空調設備を備えています。これにより、快適なオフィス環境を提供し、従業員の働きやすさを重視しています。男女別のトイレが室内に設けられており、プライバシーと利便性を確保。また、給湯設備や洗面台も完備しており、日々のオフィス運営に必要な基本設備が整っています。 セキュリティ面では、機械警備(SECOM)を導入し、24時間の安心感を提供しています。エレベーターは1基設置されており、スムーズな移動をサポートします。 立地においては、新宿御苑前駅から徒歩約5分というアクセスの良さを誇ります。靖国通り沿いの位置にあり、周辺には飲食店やコンビニが点在し、ビジネスの拠点としての利便性が非常に高いです。また、新宿三丁目駅も徒歩約7分と、複数の交通ルートが利用可能です。 本ビルは、営業拠点やスタートアップ企業にとって理想的なオフィス環境を提供します。間取りの柔軟性、明るく開放感のある室内、そして周辺環境の豊富な飲食店やコンビニエンスの近さは、従業員の満足度向上に寄与するでしょう。さらに、エントランスホールに使用されている御影石は、訪問客に対する印象を良くするためにも重要な役割を果たします。 新宿エステートビルは、その立地、設備、そして環境がビジネスの成功をサポートすること間違いなしのオフィス賃貸物件です。
新宿エステートビルのこだわり
自分で探すより問い合わせる方が早いことがあります
WEB非公開物件があるから
オーナー様のご希望により「WEBでは非公開」にしている物件があります。 それらはWEBでいくら検索しても見つかりません。 先ずは条件などお知らせ頂けましたら非公開物件含め ピッタリのオフィスをご提案させて頂きます。 無理なお勧めはしておりませんので、お気軽にお問い合わせください。
対面でのご相談も受け付けております
ご来店も歓迎です
オフィス移転は社内・社外ともに非公開に行われることが殆どです。そのためアットオフィスでは、基本的に訪問によるコンサルティングを行っておりますが、ご来店の相談も歓迎です。お一人おひとりに親身にご対応させて頂きたい為、要予約とさせて頂いております。ご来店の際は先ずは下記よりご予約下さい。
募集終了のテナント区画
| 階数 | 坪数 | 賃料 + 共益費 | 敷金/礼金敷金 礼金 | 検討 |
|---|---|---|---|---|
| B1階 | 21.76坪 (71.93m²) | 募集終了 | - | - |
| 1階 | 11.5坪 (38.02m²) | 募集終了 | - | - |
| 2階 | 37.6坪 (124.31m²) | 募集終了 | - | - |
| 3階 | 37.59坪 (124.26m²) | 募集終了 | - | - |
| 4階 | 14.28坪 (47.21m²) | 募集終了 | - | - |
| 5階 | 37.6坪 (124.3m²) | 募集終了 | - | - |
| 6階 | 37.06坪 (122.51m²) | 募集終了 | - | - |
| 7階 | 37.06坪 (122.51m²) | 募集終了 | - | - |
| 9階 | 24.45坪 (80.83m²) | 募集終了 | - | - |
| 9階 | 14.28坪 (47.23m²) | 募集終了 | - | - |
| 10階 | 37.64坪 (124.43m²) | 募集終了 | - | - |
読込中...
新宿/西新宿エリアで新宿エステートビルに似た条件の物件
読込中...
| 取扱様態 | 仲介 |
|---|---|
| 取扱会社 | 株式会社 アットオフィス |