昭和ビルの賃料条件
| 階数 | 坪数 | 賃料 + 共益費 | 敷金/礼金敷金 礼金 | 検討 |
|---|---|---|---|---|
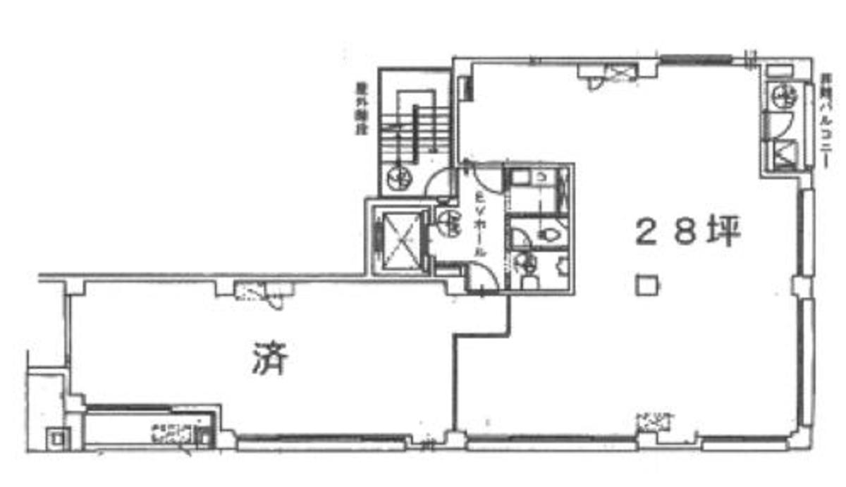
| 2階 | 28坪 (92.56m²) | 364,000円 (坪:13,000 円) | 5ヶ月 1ヶ月5ヶ月/1ヶ月 | |
| 2階 | 16坪 (52.89m²) | 208,000円 (坪:13,000 円) | 5ヶ月 1ヶ月5ヶ月/1ヶ月 |
※このサイトに記載がある賃貸条件は、敷金・保証金などの預かり金を除き、別途消費税がかかります。
物件情報
設備詳細
| 空調 | 個別空調 |
|---|---|
| トイレ | 男女別トイレ室外 |
| 床仕様 | - |
| エレベータ | 1 基 |
| 駐車場設備 | - |
| その他 | 機械警備 / 24時間利用可 / 光ファイバー / 店舗可(飲食不可) |
昭和ビルの賃貸オフィス・事務所に関するお問い合わせ
昭和ビルについて
昭和ビルは、東京都千代田区飯田橋1丁目に位置する、1981年竣工の6階建ての賃貸オフィスビルです。本物件は、東京大神宮参道沿いという重要な立地にあり、大神宮通りに面しております。この立地は、ビジネスの観点から見ても、交通アクセスの利便性や周辺環境の賑わいという面で非常に魅力的です。 交通アクセスにおいては、最寄り駅である飯田橋駅が徒歩3分の距離にあり、東京メトロ東西線、有楽町線、南北線、および都営地下鉄大江戸線が利用可能です。また、九段下駅も徒歩9分の位置にあり、半蔵門線の利用も可能であり、都心へのアクセスが非常に便利です。このような複数路線の利用可能性は、ビジネスにおいて多方面からの来訪者に対応しやすい環境を提供します。 物件の設備面では、光ファイバーが導入済みで、高速インターネットの利用が可能です。これは、現代のビジネスにおいて必須の条件とも言えるでしょう。また、エレベーターは1基設置されており、入居企業及びその訪問者の動線をスムーズにします。 周辺環境としては、目白通りに出れば、コンビニや飲食店、郵便局などの生活に必要な施設が充実しています。徒歩2分でセブンイレブンや麹町飯田橋通郵便局にアクセスできることも、日々の業務での利便性を高めます。また、周辺にはオフィスや店舗が多く、ビジネスの活動に必要な環境が整っています。 昭和ビルは、その立地、設備、周辺環境の三つの観点から見ても、中小規模の企業やスタートアップにとって理想的なオフィススペースを提供します。文教地区としての落ち着いた雰囲気の中で、ビジネスの発展を目指す企業にとって、昭和ビルは魅力的な選択肢の一つと言えるでしょう。
昭和ビルのこだわり
自分で探すより問い合わせる方が早いことがあります
WEB非公開物件があるから
オーナー様のご希望により「WEBでは非公開」にしている物件があります。 それらはWEBでいくら検索しても見つかりません。 先ずは条件などお知らせ頂けましたら非公開物件含め ピッタリのオフィスをご提案させて頂きます。 無理なお勧めはしておりませんので、お気軽にお問い合わせください。
対面でのご相談も受け付けております
ご来店も歓迎です
オフィス移転は社内・社外ともに非公開に行われることが殆どです。そのためアットオフィスでは、基本的に訪問によるコンサルティングを行っておりますが、ご来店の相談も歓迎です。お一人おひとりに親身にご対応させて頂きたい為、要予約とさせて頂いております。ご来店の際は先ずは下記よりご予約下さい。
募集終了のテナント区画
| 階数 | 坪数 | 賃料 + 共益費 | 敷金/礼金敷金 礼金 | 検討 |
|---|---|---|---|---|
| 1階 | 36坪 (119m²) | 募集終了 | - | - |
| 3階 | 28坪 (92.56m²) | 募集終了 | - | - |
| 4階 | 22坪 (72.73m²) | 募集終了 | - | - |
読込中...
近くのエリアで探してみる
飯田橋/神保町/水道橋エリアで昭和ビルに似た条件の物件
読込中...
| 取扱様態 | 仲介 |
|---|---|
| 取扱会社 | 株式会社 アットオフィス |