ダヴィンチ小川町ビル2階の賃貸情報
面積
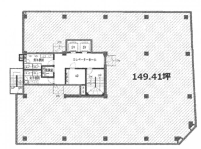
23.04 坪 (76.16m²)
賃料
共益費-
敷金 / 礼金 / 保証金-
償却-
更新料-
※このサイトに記載がある賃貸条件は、敷金・保証金などの預かり金を除き、別途消費税がかかります。
ダヴィンチ小川町ビルの建物概要
設備詳細
| 空調 | 個別空調 |
|---|---|
| トイレ | - |
| 床仕様 | OA対応床(フリーアクセス) |
| エレベータ | 2 基 |
| 駐車場設備 | 機械式駐車場 / 平置き駐車場 |
| その他 | 機械警備 / 24時間利用可 / 光ファイバー |
ダヴィンチ小川町ビルについて
ビルのおすすめポイント ダヴィンチ小川町ビルは1998年10月外壁・共用部リニューアル済、、06年耐震補強済新御茶ノ水駅から徒歩2分の駅近物件です。基準階面積100坪を超える大型ビルです。機械警備完備。耐震補強工事済み。
ダヴィンチ小川町ビルのこだわり
自分で探すより問い合わせる方が早いことがあります
WEB非公開物件があるから
オーナー様のご希望により「WEBでは非公開」にしている物件があります。 それらはWEBでいくら検索しても見つかりません。 先ずは条件などお知らせ頂けましたら非公開物件含め ピッタリのオフィスをご提案させて頂きます。 無理なお勧めはしておりませんので、お気軽にお問い合わせください。
WEBから条件問い合わせをする(無料)
対面でのご相談も受け付けております
ご来店も歓迎です
オフィス移転は社内・社外ともに非公開に行われることが殆どです。そのためアットオフィスでは、基本的に訪問によるコンサルティングを行っておりますが、ご来店の相談も歓迎です。お一人おひとりに親身にご対応させて頂きたい為、要予約とさせて頂いております。ご来店の際は先ずは下記よりご予約下さい。
来店予約をする
神田/秋葉原エリアでダヴィンチ小川町ビルに似た条件の物件
読込中...
ダヴィンチ小川町ビルと同じ最寄駅の物件
読込中...
| 取扱様態 | 仲介 |
|---|---|
| 取扱会社 | 株式会社 アットオフィス |