FORECAST桜橋2階の賃貸情報
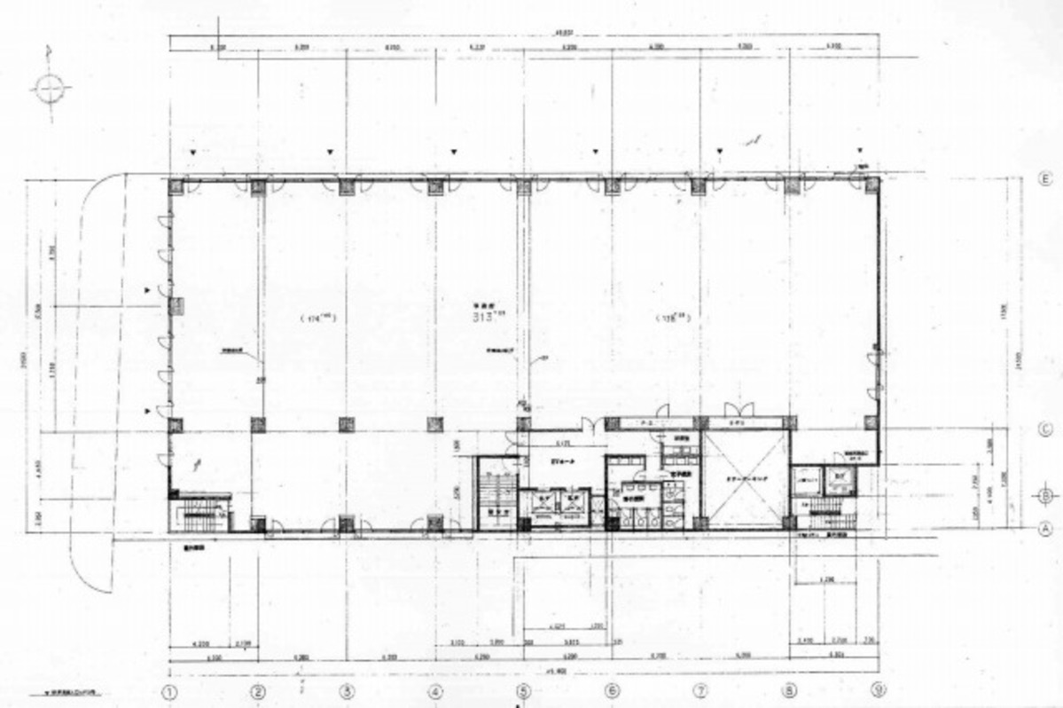
313.09 坪 (1035m²)
※このサイトに記載がある賃貸条件は、敷金・保証金などの預かり金を除き、別途消費税がかかります。
FORECAST桜橋の建物概要
設備詳細
| 空調 | 個別空調 |
|---|---|
| トイレ | - |
| 床仕様 | OA対応床(フリーアクセス) |
| エレベータ | 2 基 |
| 駐車場設備 | 空有 / 機械式駐車場 / 平置き駐車場 |
| その他 | 24時間利用可 / 大型ビル / 新耐震基準 |
FORECAST桜橋2階の賃貸オフィス・事務所に関するお問い合わせ
FORECAST桜橋について
東京都中央区八丁堀、ビジネスの中心地に位置するFORECAST桜橋ビルは、あらゆる企業が求める理想的なオフィススペースを実現しています。このビルは、1985年に建築され、2006年には大規模なリニューアルを経て現在に至ります。地上9階建てのこの建物は、最新の耐震基準に適合しており、安全性に関しても安心して業務を行うことができます。立地、設備、アクセスの3つの重要な要素を兼ね備え、ビジネスの成功に不可欠な環境を提供しています。 立地においては、FORECAST桜橋ビルは東京メトロ八丁堀駅から徒歩3分、都営宝町駅から徒歩5分という抜群のアクセスを誇ります。さらに、東京メトロ京橋駅、新富町駅も徒歩圏内にあるため、複数の路線を利用可能です。この利便性は、従業員だけでなく、訪問客やビジネスパートナーにとっても非常に魅力的なポイントと言えるでしょう。 設備面では、24時間利用可能な個別空調、OAフロア、光ファイバー対応、充実したセキュリティシステム、2基のエレベーター、そして広々とした駐車場を完備しています。また、天井高は基準階で2,530mmと、快適なオフィス環境を提供します。2006年に行われたリニューアルでは、外壁補修工事も含め、最新のオフィスニーズに応えるための設備と内装に更新されています。 ビルの内部は、効率的なレイアウトが可能な長方形に近い間取りで、天井の高さと窓の多さにより、明るく開放的な執務空間を実現しています。これは、クリエイティブな思考を促し、従業員の生産性向上に寄与します。また、一部のフロアからは春になると桜を眺めることができ、四季折々の自然の美しさも楽しむことができます。 周辺環境も非常に充実しており、多様な飲食店やコンビニエンスストア、公園などが徒歩圏内にあります。これにより、ビジネスのみならず、従業員の生活の質も高めることができるでしょう。 結論として、FORECAST桜橋ビルは、立地の利便性、最先端の設備、そして快適なオフィス環境を兼ね備え、あらゆるビジネスニーズに応える理想的なオフィスビルです。このビルでは、企業が更なる飛躍を遂げるための基盤をしっかりと築くことができるでしょう。あなたのビジネスの新たなスタート地点として、FORECAST桜橋ビルをぜひご検討ください。
自分で探すより問い合わせる方が早いことがあります
WEB非公開物件があるから
オーナー様のご希望により「WEBでは非公開」にしている物件があります。 それらはWEBでいくら検索しても見つかりません。 先ずは条件などお知らせ頂けましたら非公開物件含め ピッタリのオフィスをご提案させて頂きます。 無理なお勧めはしておりませんので、お気軽にお問い合わせください。
対面でのご相談も受け付けております
ご来店も歓迎です
オフィス移転は社内・社外ともに非公開に行われることが殆どです。そのためアットオフィスでは、基本的に訪問によるコンサルティングを行っておりますが、ご来店の相談も歓迎です。お一人おひとりに親身にご対応させて頂きたい為、要予約とさせて頂いております。ご来店の際は先ずは下記よりご予約下さい。
近くのエリアで探してみる
茅場町/新川/八丁堀エリアでFORECAST桜橋に似た条件の物件
読込中...
FORECAST桜橋と同じ最寄駅の物件
読込中...
| 取扱様態 | 仲介 |
|---|---|
| 取扱会社 | 株式会社 アットオフィス |