プレクスビルディングの賃料条件
| 階数 | 坪数 | 賃料 + 共益費 | 敷金/礼金敷金 礼金 | 検討 |
|---|---|---|---|---|
| 3階 | 74.56坪 (246.48m²) | 1,081,120円 (坪:14,500 円) | 6ヶ月 1ヶ月6ヶ月/1ヶ月 | |
| 4階 | 74.56坪 (246.48m²) | 1,081,120円 (坪:14,500 円) | 6ヶ月 1ヶ月6ヶ月/1ヶ月 | |
| 6階 | 74.56坪 (246.48m²) | 1,081,120円 (坪:14,500 円) | 6ヶ月 1ヶ月6ヶ月/1ヶ月 |
※このサイトに記載がある賃貸条件は、敷金・保証金などの預かり金を除き、別途消費税がかかります。
物件情報
設備詳細
| 空調 | - |
|---|---|
| トイレ | 男女別トイレ室内 |
| 床仕様 | OA対応床(フリーアクセス) |
| エレベータ | 1 基 |
| 駐車場設備 | - |
| その他 | 機械警備 / 24時間利用可 / 光ファイバー / 新耐震基準 |
プレクスビルディングの賃貸オフィス・事務所に関するお問い合わせ
プレクスビルディングについて
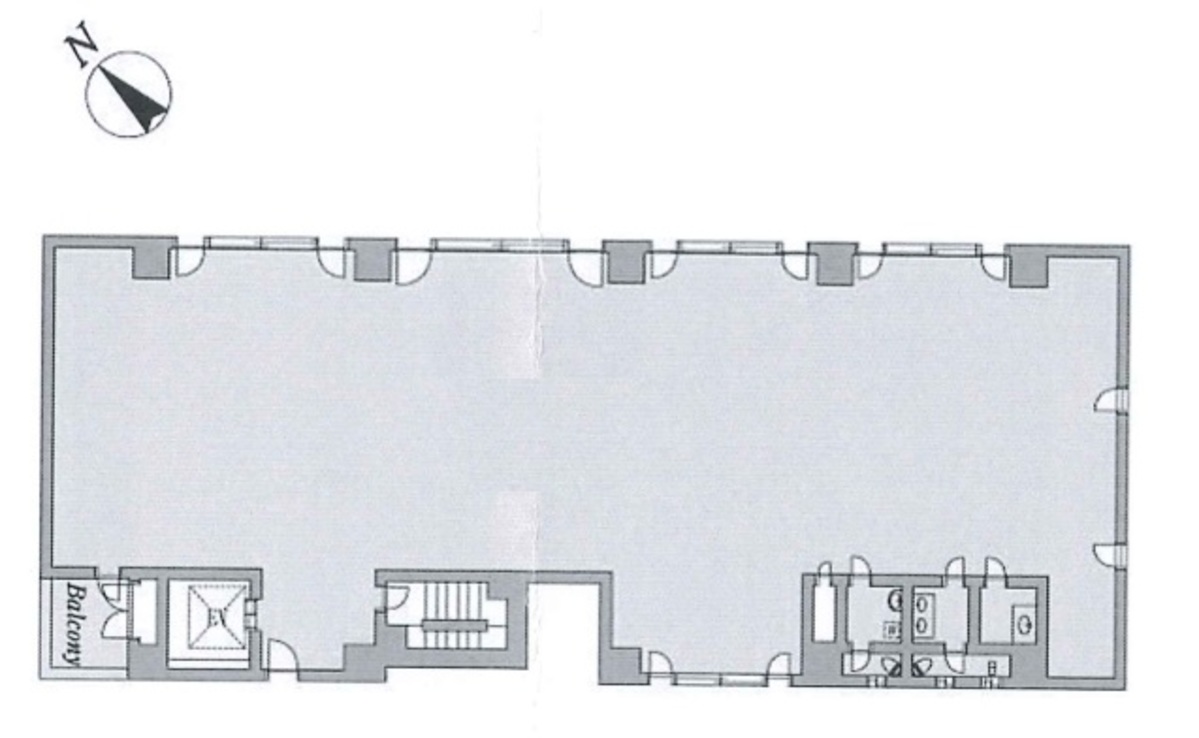
東京都港区三田、ビジネスの中心に位置するプレクスビルディング(旧:芝第3アメレックスビル)は、都市生活の鼓動を感じることができる理想的なオフィススペースを提供します。立地、設備、アクセスの三拍子が揃ったこの賃貸オフィスビルは、あなたのビジネスを次のレベルに引き上げること間違いなしです。 まず、このビルの最大の魅力の一つは、その絶好の立地にあります。第一京浜沿いに位置し、泉岳寺駅から徒歩8分、三田駅、田町駅からはいずれも徒歩10分と、3つの駅から容易にアクセス可能です。ビジネスを行う上で、交通の利便性は非常に大切です。クライアントや従業員にとって、アクセスの良さは仕事の効率を大きく左右します。 次に、このビルの設備についてです。1991年に竣工されたこのオフィスビルは、約75坪の広々としたオフィススペースを提供します。細長い間取りでありながら、効率的なスペース利用が可能で、給湯設備や男女別トイレも各階に完備。加えて、省エネ空調やLED照明を導入し、快適なオフィス環境を提供しながら、運用コストの削減にも貢献しています。小さなバルコニーも特徴の一つで、開放感あるオフィスライフを実現します。 外観は、落ち着きのある茶色い石造りで、エントランスは豪華な印象を与えます。セキュリティ面でも機械警備を完備し、24時間安心して利用できる環境が整っています。また、月極駐車場がビル内にあり、ビジネスでの利用はもちろん、来客の際にも便利です。 周辺環境も魅力的で、オフィスビルが立ち並ぶ中、隣接するコンビニは日常の利便性を高めます。さらに、徒歩圏内には飲食店も豊富にあり、ビジネスランチやアフター5の社交の場としても最適です。 プレクスビルディングは、立地、設備、アクセスの全てにおいて、ビジネスの成功を後押しする理想的なオフィス環境を提供します。ビジネスの拠点として、または新たなスタートの地として、このビルはあなたの期待を裏切りません。私たちは、あなたとあなたのビジネスがここで輝く未来を全力でサポートします。プレクスビルディングで、あなたのビジネスストーリーを始めましょう。
プレクスビルディングのこだわり
自分で探すより問い合わせる方が早いことがあります
WEB非公開物件があるから
オーナー様のご希望により「WEBでは非公開」にしている物件があります。 それらはWEBでいくら検索しても見つかりません。 先ずは条件などお知らせ頂けましたら非公開物件含め ピッタリのオフィスをご提案させて頂きます。 無理なお勧めはしておりませんので、お気軽にお問い合わせください。
対面でのご相談も受け付けております
ご来店も歓迎です
オフィス移転は社内・社外ともに非公開に行われることが殆どです。そのためアットオフィスでは、基本的に訪問によるコンサルティングを行っておりますが、ご来店の相談も歓迎です。お一人おひとりに親身にご対応させて頂きたい為、要予約とさせて頂いております。ご来店の際は先ずは下記よりご予約下さい。
募集終了のテナント区画
| 階数 | 坪数 | 賃料 + 共益費 | 敷金/礼金敷金 礼金 | 検討 |
|---|---|---|---|---|
| 8階 | 74.56坪 (246.48m²) | 募集終了 | - | - |
読込中...
近くのエリアで探してみる
浜松町/田町/芝公園エリアでプレクスビルディングに似た条件の物件
読込中...
| 取扱様態 | 仲介 |
|---|---|
| 取扱会社 | 株式会社 アットオフィス |