芝浦ワンハンドレッドビル2階の賃貸情報
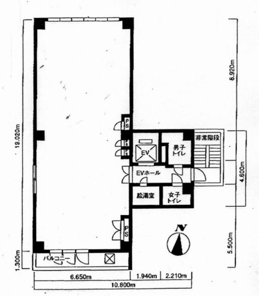
41.45 坪 (137.02m²)
※このサイトに記載がある賃貸条件は、敷金・保証金などの預かり金を除き、別途消費税がかかります。
芝浦ワンハンドレッドビルの建物概要
設備詳細
| 空調 | 個別空調 |
|---|---|
| トイレ | - |
| 床仕様 | OA対応床(フリーアクセス) |
| エレベータ | 1 基 |
| 駐車場設備 | 空有 |
| その他 | 機械警備 / 光ファイバー / クリニック |
芝浦ワンハンドレッドビル2階の賃貸オフィス・事務所に関するお問い合わせ
芝浦ワンハンドレッドビルについて
芝浦ワンハンドレッドビルは、東京都港区芝浦3丁目に位置する賃貸オフィスビルで、田町駅からわずか徒歩6分の距離にあります。1990年に竣工したこのビルは、新耐震基準に適合する安全性を備え、ビジネスの拠点として長期的な安心を提供します。地上7階建てで、基準階の面積は約40坪となっており、長方形に近いシンプルな間取りであるため、様々な業種のオフィスレイアウトに柔軟に対応できます。 ビル内の主な設備には、オートロックシステム、給湯設備、フリーアクセスフロアなどがあり、快適なオフィス環境をサポート。また、エレベーターは1基設置されており、スムーズな移動を実現します。水回りは室外に設けられており、清潔感を保ちやすい構造です。セキュリティ面では、24時間機械監視システムが導入されており、入居企業の安全を確保しています。 芝浦ワンハンドレッドビルの立地は、ビジネスに最適な環境を提供します。周辺には飲食店が豊富にあり、ランチやアフター5の利用に便利です。また、しおかぜ通り沿いに位置しており、ビル前の道路も広く快適なアクセスが可能です。徒歩圏内にはセブンイレブンや吉野家、サイゼリヤ、ドラッグストアスマイルなどの生活便利施設が充実しており、日々の業務に必要なものがすぐに手に入ります。 このビルの外観は、半分がブルーのガラス張りでスタイリッシュなデザインを採用しており、企業イメージの向上にも貢献します。エントランスはアルミパネルを使用し、近未来的な印象を与えるデザインとなっています。また、月極駐車場がビル内に設置されており、車通勤を希望する従業員にも対応可能です。 芝浦ワンハンドレッドビルは、新耐震基準に適合した安全性、田町駅からの良好なアクセス、便利な周辺環境、充実した設備とセキュリティを兼ね備えた賃貸オフィスビルです。これらの特徴を活かし、企業活動の拠点として検討されることをお勧めします。
芝浦ワンハンドレッドビルのこだわり
自分で探すより問い合わせる方が早いことがあります
WEB非公開物件があるから
オーナー様のご希望により「WEBでは非公開」にしている物件があります。 それらはWEBでいくら検索しても見つかりません。 先ずは条件などお知らせ頂けましたら非公開物件含め ピッタリのオフィスをご提案させて頂きます。 無理なお勧めはしておりませんので、お気軽にお問い合わせください。
対面でのご相談も受け付けております
ご来店も歓迎です
オフィス移転は社内・社外ともに非公開に行われることが殆どです。そのためアットオフィスでは、基本的に訪問によるコンサルティングを行っておりますが、ご来店の相談も歓迎です。お一人おひとりに親身にご対応させて頂きたい為、要予約とさせて頂いております。ご来店の際は先ずは下記よりご予約下さい。
近くのエリアで探してみる
港南/高輪/白金台/(品川駅)エリアで芝浦ワンハンドレッドビルに似た条件の物件
読込中...
芝浦ワンハンドレッドビルと同じ最寄駅の物件
読込中...
| 取扱様態 | 仲介 |
|---|---|
| 取扱会社 | 株式会社 アットオフィス |