※このサイトに記載がある賃貸条件は、敷金・保証金などの預かり金を除き、別途消費税がかかります。
物件情報
設備詳細
| 空調 | - |
|---|---|
| トイレ | - |
| 床仕様 | - |
| エレベータ | 1 基 |
| 駐車場設備 | - |
| その他 | 機械警備 / 24時間利用可 / 光ファイバー / 新耐震基準 |
三勇ビルの賃貸オフィス・事務所に関するお問い合わせ
三勇ビルについて
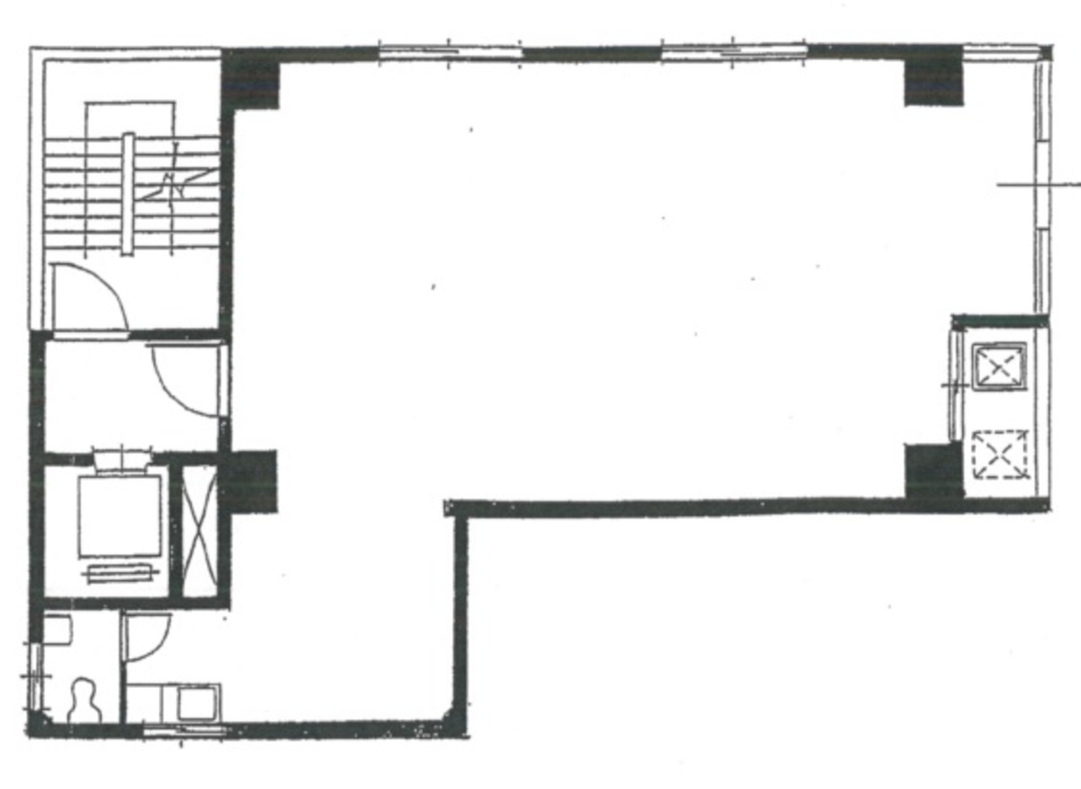
三勇ビルは、東京都千代田区外神田6丁目に位置する、1984年竣工のオフィス賃貸物件です。地上8階建てのこのビルは、その立地と設備で都市型ビジネスのニーズに対応する設計が施されています。特に、末広町駅から徒歩4分というアクセスの良さは、従業員や訪問客にとって大きな利点となるでしょう。湯島駅、御茶ノ水駅、上野広小路駅も徒歩圏内にあり、複数の交通網へのアクセスが可能です。 ビルの基準階面積は約22坪で、ワンフロアを有効活用できる広さがあります。L字型に近い間取りは、多様なオフィスレイアウトに対応可能であり、クリエイティブなワークスペースの設計も容易です。各オフィス室内には、2面採光による自然光が豊富に入り込み、作業環境を明るく快適なものにします。また、天井高は2400mmと余裕があり、開放感のあるオフィス環境を提供します。 設備面では、ビル内には1基のエレベーターが設置され、各階には個別空調システムが完備されており、快適な室温を一年中維持することが可能です。セキュリティ面では、機械警備システムが導入されており、24時間利用可能なオフィス環境を安全に保ちます。トイレと給湯スペースが各貸室内に備えられており、従業員の利便性を高めています。 周辺環境も魅力の一つで、ビルから徒歩1分圏内にコンビニがあり、蔵前橋通りに近いため、飲食店も豊富に立ち並びます。ビジネスの合間に気軽に食事や買い物ができる立地は、忙しいビジネスパーソンにとって大きなメリットです。 三勇ビルは、その立地、設備、周辺環境のすべてが、現代のビジネスニーズに応える設計となっています。中小企業やスタートアップ企業にとって、理想的なオフィス空間を提供するこの物件は、ビジネスの成功に向けた強力なサポートを提供することでしょう。
三勇ビルのこだわり
自分で探すより問い合わせる方が早いことがあります
WEB非公開物件があるから
オーナー様のご希望により「WEBでは非公開」にしている物件があります。 それらはWEBでいくら検索しても見つかりません。 先ずは条件などお知らせ頂けましたら非公開物件含め ピッタリのオフィスをご提案させて頂きます。 無理なお勧めはしておりませんので、お気軽にお問い合わせください。
対面でのご相談も受け付けております
ご来店も歓迎です
オフィス移転は社内・社外ともに非公開に行われることが殆どです。そのためアットオフィスでは、基本的に訪問によるコンサルティングを行っておりますが、ご来店の相談も歓迎です。お一人おひとりに親身にご対応させて頂きたい為、要予約とさせて頂いております。ご来店の際は先ずは下記よりご予約下さい。
募集終了のテナント区画
| 階数 | 坪数 | 賃料 + 共益費 | 敷金/礼金敷金 礼金 | 検討 |
|---|---|---|---|---|
| 1階 | 18.23坪 (60.25m²) | 募集終了 | - | - |
| 2階 | 22.03坪 (72.84m²) | 募集終了 | - | - |
| 3階 | 22.03坪 (72.84m²) | 募集終了 | - | - |
| 4階 | 22.03坪 (72.82m²) | 募集終了 | - | - |
| 5階 | 22.03坪 (72.84m²) | 募集終了 | - | - |
| 6階 | 22.03坪 (72.84m²) | 募集終了 | - | - |
| 6階 | 22.03坪 (72.84m²) | 募集終了 | - | - |
| 7階 | 22.03坪 (72.82m²) | 募集終了 | - | - |
読込中...
神田/秋葉原エリアで三勇ビルに似た条件の物件
読込中...
| 取扱様態 | 仲介 |
|---|---|
| 取扱会社 | 株式会社 アットオフィス |