CUBE15ビル6階の賃貸情報
29.44 坪 (97.31m²)
※このサイトに記載がある賃貸条件は、敷金・保証金などの預かり金を除き、別途消費税がかかります。
CUBE15ビルの建物概要
設備詳細
| 空調 | - |
|---|---|
| トイレ | - |
| 床仕様 | - |
| エレベータ | 1 基 |
| 駐車場設備 | - |
| その他 | 保証金・敷金+礼金が3か月以下 |
CUBE15ビル6階の賃貸オフィス・事務所に関するお問い合わせ
CUBE15ビルについて
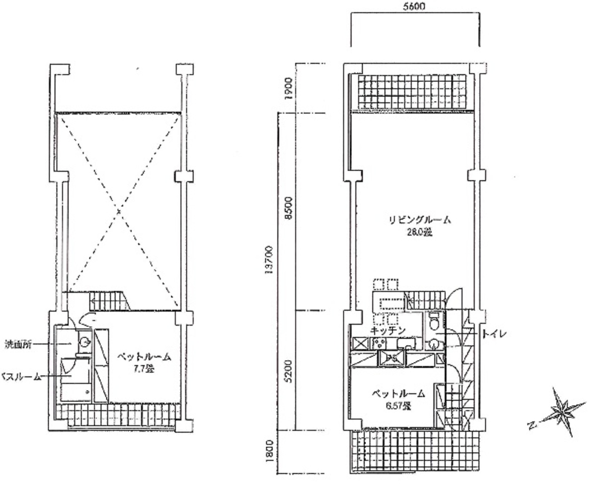
CUBE15は、東京都港区海岸3丁目に位置する、1999年竣工の耐震性に優れたオフィス賃貸ビルです。このビルは、基準階面積が320.287坪と非常に広く、大規模なオフィスニーズに対応可能です。その特徴的なデザインは、内外装にコンクリート打ちっぱなしを採用し、全戸メゾネットタイプのデザイナーズ設計になっていることです。これにより、賃貸オフィスとしても高級賃貸マンションとしても使用できる柔軟性を持ち、天井が高く開放感のある空間を提供します。 また、CUBE15の各貸室からは、裏手のテラス風バルコニーを通じて、レインボーブリッジを含む湾岸エリアの壮大な景色を楽しむことができます。ビルの1階エントランスには、オートロックの扉が設置されており、郵便受けや宅配ボックスも完備されています。さらに、屋上は緑化されており、リラクゼーションスペースとしての活用も可能です。 立地に関しては、ゆりかもめの芝浦ふ頭駅が最寄り駅で、田町駅や品川駅行きのバスが周辺のバス停から利用できます。西側に芝浦運河、東側にはお台場を臨む東京湾が広がっており、周辺は落ち着いた環境ながらも、コンビニやそばチェーン店などの生活便利施設が近くにあります。ただし、飲食店が少ない点には留意が必要です。 ビル内には月極駐車場も完備されており、ビジネス利用に際しての利便性も高いです。エレベーターは1機が設置されていますが、ビルの機能性とデザイン性を兼ね備えた賃貸オフィスとして、CUBE15は独自の魅力を持っています。クリエイティブな空間を求める企業や、高級感あるオフィス環境を望む事業者にとって、CUBE15は魅力的な選択肢となるでしょう。
CUBE15ビルのこだわり
自分で探すより問い合わせる方が早いことがあります
WEB非公開物件があるから
オーナー様のご希望により「WEBでは非公開」にしている物件があります。 それらはWEBでいくら検索しても見つかりません。 先ずは条件などお知らせ頂けましたら非公開物件含め ピッタリのオフィスをご提案させて頂きます。 無理なお勧めはしておりませんので、お気軽にお問い合わせください。
対面でのご相談も受け付けております
ご来店も歓迎です
オフィス移転は社内・社外ともに非公開に行われることが殆どです。そのためアットオフィスでは、基本的に訪問によるコンサルティングを行っておりますが、ご来店の相談も歓迎です。お一人おひとりに親身にご対応させて頂きたい為、要予約とさせて頂いております。ご来店の際は先ずは下記よりご予約下さい。
近くのエリアで探してみる
港南/高輪/白金台/(品川駅)エリアでCUBE15ビルに似た条件の物件
読込中...
CUBE15ビルと同じ最寄駅の物件
読込中...
| 取扱様態 | 仲介 |
|---|---|
| 取扱会社 | 株式会社 アットオフィス |