新宿YTビル2階の賃貸情報
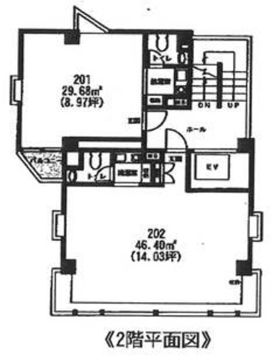
14.03 坪 (46.4m²)
※このサイトに記載がある賃貸条件は、敷金・保証金などの預かり金を除き、別途消費税がかかります。
新宿YTビルの建物概要
設備詳細
| 空調 | - |
|---|---|
| トイレ | - |
| 床仕様 | - |
| エレベータ | 1 基 |
| 駐車場設備 | - |
| その他 | 新耐震基準 / 東京賃料が坪11000円以下 / クリニック |
新宿YTビル2階の賃貸オフィス・事務所に関するお問い合わせ
新宿YTビルについて
新宿YTは、新宿区高田馬場1丁目に位置する地上4階建ての事業用賃貸建物です。最寄駅は、東京メトロ東西線「高田馬場駅」から徒歩2分、西武新宿線「高田馬場駅」から徒歩3分、JR山手線「高田馬場駅」から徒歩4分と、複数路線が利用可能な立地です。建物は、1基のエレベーターを備えており、入居者や来訪者の移動をサポートします。 新宿YTの所在地である高田馬場1丁目は、駅からのアプローチが短く、外出や来客時にも動線が明確です。事務所や店舗、サービス拠点など、さまざまな事業用途を想定した際にも、フロアごとの独立性を活かしたレイアウト構成が可能です。新耐震基準に適合しており、建物の構造面についても確認されています。 また、近隣には駅前の商業施設や飲食店、各種サービスが集積しており、日々の業務運営や従業員の利便を考慮した環境が整っています。用途や規模に応じたご利用を検討される際の参考として、現地のご案内も承ります。 詳細はお問い合わせください。
自分で探すより問い合わせる方が早いことがあります
WEB非公開物件があるから
オーナー様のご希望により「WEBでは非公開」にしている物件があります。 それらはWEBでいくら検索しても見つかりません。 先ずは条件などお知らせ頂けましたら非公開物件含め ピッタリのオフィスをご提案させて頂きます。 無理なお勧めはしておりませんので、お気軽にお問い合わせください。
対面でのご相談も受け付けております
ご来店も歓迎です
オフィス移転は社内・社外ともに非公開に行われることが殆どです。そのためアットオフィスでは、基本的に訪問によるコンサルティングを行っておりますが、ご来店の相談も歓迎です。お一人おひとりに親身にご対応させて頂きたい為、要予約とさせて頂いております。ご来店の際は先ずは下記よりご予約下さい。
大久保/高田馬場エリアで新宿YTビルに似た条件の物件
読込中...
新宿YTビルと同じ最寄駅の物件
読込中...
| 取扱様態 | 仲介 |
|---|---|
| 取扱会社 | 株式会社 アットオフィス |