虎ノ門吉荒ビルの賃料条件
| 階数 | 坪数 | 賃料 + 共益費 | 敷金/礼金敷金 礼金 | 検討 |
|---|---|---|---|---|
| 4階 | 37.24坪 (123.12m²) | 1,117,200円 (坪:30,000 円) | 6ヶ月 無6ヶ月/無 |
※このサイトに記載がある賃貸条件は、敷金・保証金などの預かり金を除き、別途消費税がかかります。
お電話でもお気軽にお問い合わせください
物件情報
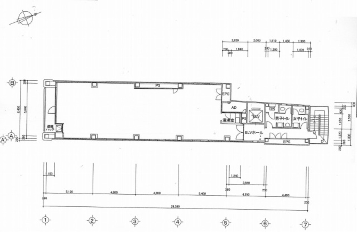
設備詳細
| 空調 | 個別空調 |
|---|---|
| トイレ | 男女別トイレ室外 |
| 床仕様 | OA対応床(フリーアクセス) |
| エレベータ | 1 基 |
| 駐車場設備 | - |
| その他 | 新耐震基準 / 機械警備 / セットアップ |
アクセスマップ
東京都港区西新橋1丁目に位置する「虎ノ門吉荒ビル」は、1987年に竣工した賃貸オフィスビルで、その立地と機能性からビジネスの拠点として最適です。内幸町駅からわずか徒歩2分、虎ノ門駅からも徒歩2分というアクセスの良さは、通勤の利便性だけでなく、ビジネスパートナーとの面会にも最適な環境を提供します。 外観はコンパクトながらも、奥行きがあり基準階面積は約37.24坪。細長い形状を活かした設計により、各フロアには独立したエントランスが設けられており、プライバシーが守られた空間で業務に集中することが可能です。また、バルコニー側の大きな窓からは豊富な自然光が入り、快適なオフィス環境を実現しています。 設備面では、築年数の経過による古さは感じられますが、シンプルかつ機能的に整備されているため、利用者には違和感を与えません。ビル内にはエレベーターが1機設置されており、効率的な移動をサポートします。 立地面では、外堀通りに面しており、周辺には飲食店や歯科クリニックなどが入居しているため、ビルの利用者だけでなく、来客の利便性も高いです。また、西新橋エリアは金融機関や郵便局が集まるビジネスの中心地であり、再開発によりさらに魅力が増している地域です。このような立地は、ビジネスチャンスを広げる上で非常に有利と言えるでしょう。 東京都港区というビジネスの中心地において、虎ノ門吉荒ビルはその立地と機能性、快適なオフィス環境を兼ね備えた賃貸オフィスビルです。新橋の西側エリアの発展とともに、こちらのビルも注目を集めています。事業の成功には適切な環境が不可欠です。虎ノ門吉荒ビルは、あなたのビジネスを強力にサポートするための最適な選択肢の一つと言えるでしょう。
募集終了のテナント区画
| 階数 | 坪数 | 賃料 + 共益費 | 敷金/礼金敷金 礼金 | 検討 |
|---|---|---|---|---|
| B1階 | 29.53坪 (97.61m²) | 募集終了 | - | - |
| 1階 | 22.89坪 (75.66m²) | 募集終了 | - | - |
| 2階 | 36.86坪 (121.84m²) | 募集終了 | - | - |
| 3階 | 37.24坪 (123.1m²) | 募集終了 | - | - |
| 5階 | 37.24坪 (123.12m²) | 募集終了 | - | - |
| 6階 | 37.24坪 (123.12m²) | 募集終了 | - | - |
| 7階 | 37.24坪 (123.1m²) | 募集終了 | - | - |
| 8階 | 37.24坪 (123.11m²) | 募集終了 | - | - |
| 9階 | 37.24坪 (123.11m²) | 募集終了 | - | - |
WEB非公開物件がございます
オーナー様ご希望によるWEB非公開の物件もございます。先ずは条件などお知らせ頂けましたら、非公開物件含めピッタリのオフィスをご提案させて頂きます。具体的な物件がお決まりでない場合でも問題ございません。無理なお勧めはしておりませんので、お気軽にお問い合わせください。
ご来店も歓迎です
オフィス移転は社内・社外ともに非公開に行われることが殆どです。そのためアットオフィスでは、基本的に訪問によるコンサルティングを行っておりますが、ご来店の相談も歓迎です。
※お一人おひとりに親身にご対応させて頂きたい為、要予約とさせて頂いております。ご来店の際は先ずは上記よりご予約下さい。
読込中...
近くのエリアで探してみる
新橋/虎ノ門/神谷町エリアで虎ノ門吉荒ビルに似た条件の物件
読込中...