虎ノ門ピアザビルの賃料条件
| 階数 | 坪数 | 賃料 + 共益費 | 敷金/礼金敷金 礼金 | 検討 |
|---|---|---|---|---|
| 7階 | 125坪 (413.22m²) | 2,875,000円 (坪:23,000 円) | 12ヶ月 無12ヶ月/無 | |
| 9階 | 63.88坪 (211.2m²) | 1,472,000円 (坪:23,043 円) | 12ヶ月 1ヶ月12ヶ月/1ヶ月 |
※このサイトに記載がある賃貸条件は、敷金・保証金などの預かり金を除き、別途消費税がかかります。
物件情報
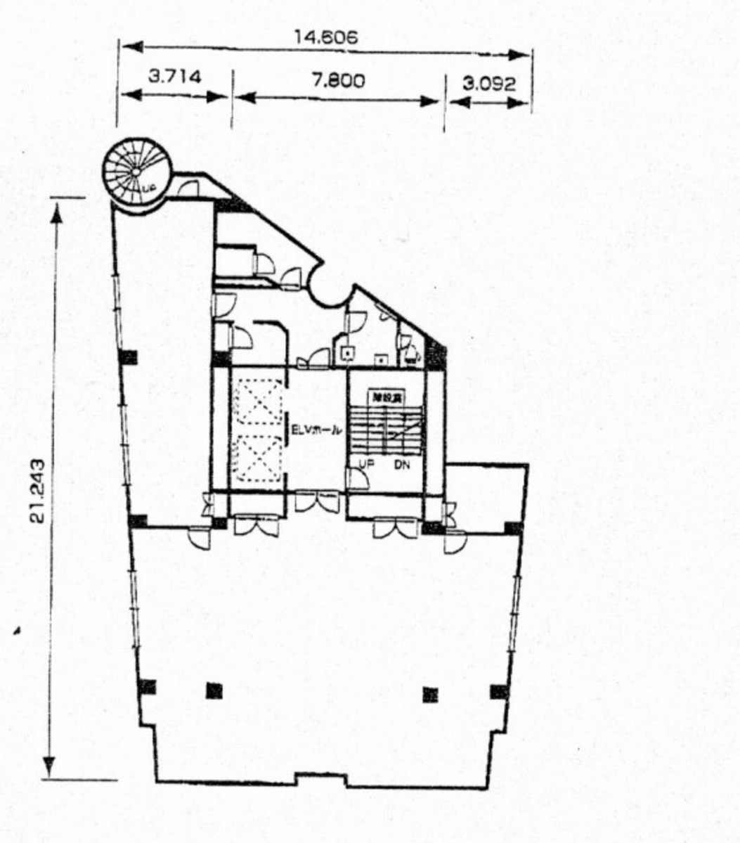
設備詳細
| 空調 | 個別空調 |
|---|---|
| トイレ | 男女別トイレ室外 |
| 床仕様 | OA対応床(フリーアクセス) |
| エレベータ | 2 基 |
| 駐車場設備 | - |
| その他 | 機械警備 / 大型ビル / 光ファイバー / 24時間利用可 / 新耐震基準 |
虎ノ門ピアザビルの賃貸オフィス・事務所に関するお問い合わせ
虎ノ門ピアザビルについて
虎ノ門ピアザビルは、東京都港区虎ノ門2-4-1に位置する、地上10階・地下2階建ての賃貸オフィスビルです。1987年に竣工し、鉄骨鉄筋コンクリート構造で建てられたこの物件は、新耐震基準に対応しており、安心してご利用いただけます。本ビルは、東京メトロ銀座線虎ノ門駅から徒歩2分圏内、日比谷線虎ノ門ヒルズ駅からも徒歩2分圏内という、非常にアクセスの良い立地にあります。また、東京メトロ丸ノ内線・日比谷線・千代田線の霞ヶ関駅からも徒歩7分圏内と、複数の地下鉄路線が利用可能なことが特徴です。 虎ノ門ピアザビルは、環二通りに面した角地に位置するため、視認性が非常に高く、光が多く差し込む明るいオフィス環境を提供します。ビルのエントランスは、1階と2階を貫通するガラス張りで、高級感溢れる吹き抜け構造となっており、銅像が設置されたモダンな雰囲気を醸し出しています。エレベーターは13人乗りを2基設置し、スムーズな移動を可能にしています。セキュリティ体制も万全で、機械警備に加えて、24時間使用可能な環境が整えられています。また、22台収容可能な機械式駐車場も完備しており、ビジネスシーンにおいて必要な機能を幅広くカバーしています。 オフィスフロアは、約125坪のワンフロア・ワンテナント形式で、角地特有の採光性の高さと、個別空調・OAフロア・光ファイバー導入済みの設備により、作業効率の良い快適なオフィス環境を実現しています。トイレは男女別が各フロアに設置されており、ビル内にはうどん屋や薬局などのテナントも入居しているため、日常の利便性も高くなっています。 この物件の周辺は、大手銀行の支店や郵便局、さまざまなショップが充実しており、ビジネスシーンで求められる様々なニーズに応えられる環境が整っています。さらに、新虎通りの開通により、虎ノ門から新橋までのアクセスも向上し、虎ノ門エリアの発展とともに、ビジネスの拠点としての魅力がますます高まっています。 虎ノ門ピアザビルは、その立地、設備、セキュリティ、そして周辺環境の充実さから、高いビジネスパフォーマンスを実現するための理想的なオフィススペースと言えるでしょう。ビジネスの成功には欠かせない要素を備えたこの物件は、企業の皆様にとって最適な選択肢の一つとなることでしょう。
自分で探すより問い合わせる方が早いことがあります
WEB非公開物件があるから
オーナー様のご希望により「WEBでは非公開」にしている物件があります。 それらはWEBでいくら検索しても見つかりません。 先ずは条件などお知らせ頂けましたら非公開物件含め ピッタリのオフィスをご提案させて頂きます。 無理なお勧めはしておりませんので、お気軽にお問い合わせください。
対面でのご相談も受け付けております
ご来店も歓迎です
オフィス移転は社内・社外ともに非公開に行われることが殆どです。そのためアットオフィスでは、基本的に訪問によるコンサルティングを行っておりますが、ご来店の相談も歓迎です。お一人おひとりに親身にご対応させて頂きたい為、要予約とさせて頂いております。ご来店の際は先ずは下記よりご予約下さい。
募集終了のテナント区画
| 階数 | 坪数 | 賃料 + 共益費 | 敷金/礼金敷金 礼金 | 検討 |
|---|---|---|---|---|
| B1階 | 11坪 (36.36m²) | 募集終了 | - | - |
| 1階 | 21坪 (69.42m²) | 募集終了 | - | - |
| 1階 | 33坪 (109.09m²) | 募集終了 | - | - |
| 2階 | 117坪 (386.78m²) | 募集終了 | - | - |
| 3階 | 125坪 (413.22m²) | 募集終了 | - | - |
| 4階 | 125坪 (413.22m²) | 募集終了 | - | - |
| 5階 | 125坪 (413.22m²) | 募集終了 | - | - |
| 6階 | 125坪 (413.22m²) | 募集終了 | - | - |
| 8階 | 93坪 (307.44m²) | 募集終了 | - | - |
| 8階 | 21坪 (69.42m²) | 募集終了 | - | - |
| 10階 | 38坪 (125.62m²) | 募集終了 | - | - |
読込中...
近くのエリアで探してみる
新橋/虎ノ門/神谷町エリアで虎ノ門ピアザビルに似た条件の物件
読込中...
| 取扱様態 | 仲介 |
|---|---|
| 取扱会社 | 株式会社 アットオフィス |