元代々木サンサンビル3階の賃貸情報
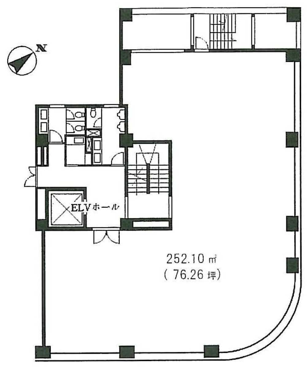
76.26 坪 (252.1m²)
※このサイトに記載がある賃貸条件は、敷金・保証金などの預かり金を除き、別途消費税がかかります。
元代々木サンサンビルの建物概要
設備詳細
| 空調 | 個別空調 |
|---|---|
| トイレ | - |
| 床仕様 | - |
| エレベータ | 1 基 |
| 駐車場設備 | 空有 |
| その他 | 機械警備 / 24時間利用可 / 大型ビル / 新耐震基準 |
元代々木サンサンビル3階の賃貸オフィス・事務所に関するお問い合わせ
元代々木サンサンビルについて
渋谷区元代々木町、交通の利便性と緑豊かな環境が調和した地域に、1992年に建てられた「元代々木サンサンビル」は、ビジネスの拠点として理想的な環境を提供しています。この賃貸オフィスビルは、代々木八幡駅および代々木公園駅から徒歩わずか5分というアクセスの良さを誇ります。また、敷地内に駐車場を備えており、自動車での通勤もスムーズに行うことができます。 外観は重厚感のあるグレーを基調としており、ビルは6階建て。各フロアは約130坪と広々としており、明るい光が差し込む窓面が多いことで、開放感あふれるオフィス環境を提供します。また、1基のエレベーターが設置されており、セキュリティシステムも充実。機械警備で24時間安心のオフィスライフをサポートします。 その立地はただ便利なだけではありません。周辺は住宅街が広がり、ランチタイムや仕事帰りのリラックスタイムには少し足を延ばすことで、代々木公園での自然あふれる散策も楽しめます。飲食店は比較的少ないものの、その分静かで落ち着いた環境下で集中して業務に取り組むことができるでしょう。 オフィス内部は、水回りが別に分離されたレイアウトで、効率的なオフィス運営を実現。男女別のトイレも共用部に設置されており、オフィス内は明るい色合いのカーペットが敷かれ、心地よい作業空間を提供します。 「元代々木サンサンビル」は、その立地、機能性、そして快適なオフィス環境を兼ね備えた、ビジネスの成功を後押しする理想的な場所です。新たなビジネスの拠点として、または拡張を考えている企業にとって、最適な環境をここにご提案いたします。
自分で探すより問い合わせる方が早いことがあります
WEB非公開物件があるから
オーナー様のご希望により「WEBでは非公開」にしている物件があります。 それらはWEBでいくら検索しても見つかりません。 先ずは条件などお知らせ頂けましたら非公開物件含め ピッタリのオフィスをご提案させて頂きます。 無理なお勧めはしておりませんので、お気軽にお問い合わせください。
対面でのご相談も受け付けております
ご来店も歓迎です
オフィス移転は社内・社外ともに非公開に行われることが殆どです。そのためアットオフィスでは、基本的に訪問によるコンサルティングを行っておりますが、ご来店の相談も歓迎です。お一人おひとりに親身にご対応させて頂きたい為、要予約とさせて頂いております。ご来店の際は先ずは下記よりご予約下さい。
近くのエリアで探してみる
代々木/初台/幡ヶ谷エリアで元代々木サンサンビルに似た条件の物件
読込中...
元代々木サンサンビルと同じ最寄駅の物件
読込中...
| 取扱様態 | 仲介 |
|---|---|
| 取扱会社 | 株式会社 アットオフィス |