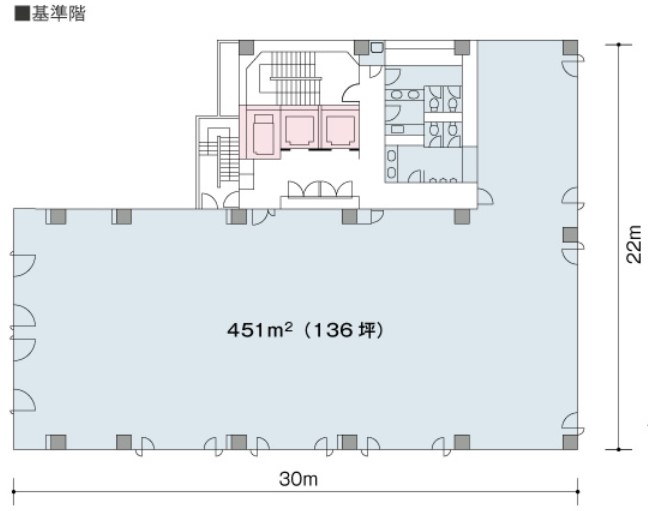
銀座木挽ビルの賃料条件
| 階数 | 坪数 | 賃料 + 共益費 | 敷金/礼金敷金 礼金 | 検討 |
|---|---|---|---|---|
| 4階 | 136.39坪 (450.9m²) | 3,000,580円 (坪:22,000 円) | 12ヶ月 無12ヶ月/無 |
※このサイトに記載がある賃貸条件は、敷金・保証金などの預かり金を除き、別途消費税がかかります。
物件情報
設備詳細
| 空調 | 個別空調 |
|---|---|
| トイレ | - |
| 床仕様 | - |
| エレベータ | 2 基 |
| 駐車場設備 | - |
| その他 | 機械警備 / 24時間利用可 / 大型ビル / 光ファイバー / 新耐震基準 |
銀座木挽ビルの賃貸オフィス・事務所に関するお問い合わせ
銀座木挽ビルについて
銀座木挽ビルは、東京都中央区銀座7-16-21に所在する、1993年竣工のオフィスビルであります。この物件は、基準階面積約136.39坪の大型オフィススペースを提供し、東京のビジネス中心地、銀座に位置することから非常に高いアクセス性を誇ります。 立地に関して、銀座木挽ビルは、東京メトロ日比谷線・都営浅草線の東銀座駅から徒歩約5分、都営大江戸線の築地市場駅から徒歩約4分の距離に位置します。また、銀座駅、新橋駅、汐留駅にも徒歩10分以内で到着でき、複数の鉄道路線の利用が可能です。この利便性はビジネスの機会を最大限に活かすためには欠かせない要素です。 設備面では、光ファイバーがMDFまで引き込まれており、高速インターネット環境が整っています。OAフロアを採用しており、フレキシブルなオフィスレイアウトが可能です。また、男女別トイレ、個別空調、機械警備システムなど、従業員の快適性と安全性を重視した設備が整っています。2基のエレベーターは、ビル内の移動をスムーズにし、効率的なビジネス運営を支援します。 銀座木挽ビルの周辺環境も魅力の一つです。セブンイレブン、銀座七郵便局が至近にあり、日常的なニーズを容易に満たすことができます。多数の飲食店が周辺に存在し、ビジネスランチやアフター5の利用に便利です。また、銀座エリアは商業施設、劇場、博物館などの文化施設も充実しており、ビジネスだけでなくレジャーの面でも充実した環境を提供します。 総じて、銀座木挽ビルは立地、設備、周辺環境のすべてにおいて、ビジネスの可能性を最大限に引き出す要素を備えています。東京の一等地でありながら、落ち着いた雰囲気のビルエントランスを有し、ビジネスシーンにふさわしい品格を保持しています。これらの特性は、銀座木挽ビルをビジネスオフィスとして選ぶ際の大きな魅力となるでしょう。
自分で探すより問い合わせる方が早いことがあります
WEB非公開物件があるから
オーナー様のご希望により「WEBでは非公開」にしている物件があります。 それらはWEBでいくら検索しても見つかりません。 先ずは条件などお知らせ頂けましたら非公開物件含め ピッタリのオフィスをご提案させて頂きます。 無理なお勧めはしておりませんので、お気軽にお問い合わせください。
対面でのご相談も受け付けております
ご来店も歓迎です
オフィス移転は社内・社外ともに非公開に行われることが殆どです。そのためアットオフィスでは、基本的に訪問によるコンサルティングを行っておりますが、ご来店の相談も歓迎です。お一人おひとりに親身にご対応させて頂きたい為、要予約とさせて頂いております。ご来店の際は先ずは下記よりご予約下さい。
募集終了のテナント区画
| 階数 | 坪数 | 賃料 + 共益費 | 敷金/礼金敷金 礼金 | 検討 |
|---|---|---|---|---|
| B1階 | 76.6坪 (253.22m²) | 募集終了 | - | - |
| B1階 | 104.75坪 (346.28m²) | 募集終了 | - | - |
| 1階 | 52坪 (171.9m²) | 募集終了 | - | - |
| 1階 | 33.79坪 (111.7m²) | 募集終了 | - | - |
| 1階 | 41.99坪 (138.81m²) | 募集終了 | - | - |
| 2階 | 136.39坪 (450.9m²) | 募集終了 | - | - |
| 2階 | 54.6坪 (180.49m²) | 募集終了 | - | - |
| 3階 | 136.39坪 (450.88m²) | 募集終了 | - | - |
| 5階 | 136.39坪 (450.9m²) | 募集終了 | - | - |
| 6階 | 136.39坪 (450.9m²) | 募集終了 | - | - |
| 7階 | 71.56坪 (236.56m²) | 募集終了 | - | - |
| 8階 | 60.59坪 (200.29m²) | 募集終了 | - | - |
| 9階 | 27.07坪 (89.48m²) | 募集終了 | - | - |
読込中...
銀座エリアで銀座木挽ビルに似た条件の物件
読込中...
| 取扱様態 | 仲介 |
|---|---|
| 取扱会社 | 株式会社 アットオフィス |