※このサイトに記載がある賃貸条件は、敷金・保証金などの預かり金を除き、別途消費税がかかります。
物件情報
設備詳細
| 空調 | - |
|---|---|
| トイレ | - |
| 床仕様 | - |
| エレベータ | 2 基 |
| 駐車場設備 | 空有 |
| その他 | 機械警備 / 24時間利用可 / 光ファイバー / 新耐震基準 / セットアップ |
銀座クイントビルの賃貸オフィス・事務所に関するお問い合わせ
銀座クイントビルについて
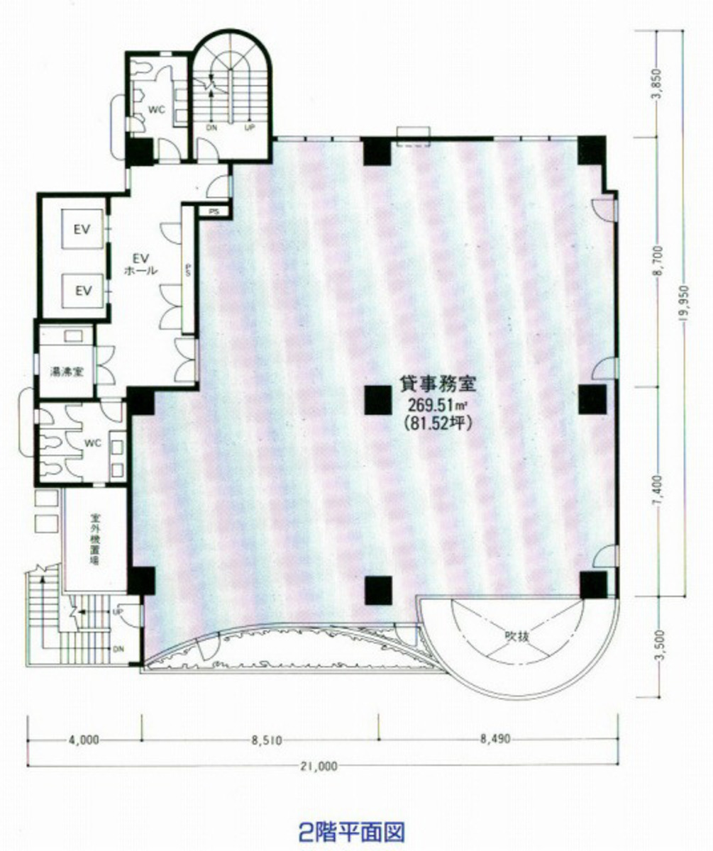
銀座クイントビル、その名前が示す通り、東京都中央区銀座の活気ある街に位置するこのビルは、ビジネスの中心地である銀座5丁目に堂々と構えています。銀座クイントビルは、1991年に竣工された、新耐震基準に適合した鉄骨鉄筋コンクリート造の地下2階・地上9階建てのオフィスビルです。延床面積は1,236坪と広大で、基準階面積は約87坪となっております。当ビルは、18台の駐車スペースを有し、9人乗りのエレベーターを2基備えるなど、賃貸オフィスとしての機能性を十分に備えています。 立地の面では、東銀座駅からわずか徒歩1分というアクセスの良さが魅力です。また、東京メトロ銀座駅からも徒歩4分、JR有楽町駅からも徒歩12分と、複数の交通機関へのアクセスが容易で、ビジネスの拠点として理想的な立地にあります。晴海通りに面しているため、ビルの視認性も高く、ビジネスシーンでの印象も強いものになるでしょう。 ビルの内装には、個別空調、OAフロアが完備されており、効率的なオフィス環境を実現しています。採光性の良い大通りに面した立地で、明るく開放感のあるオフィス空間を提供します。また、エントランスは緑を基調とした落ち着いた雰囲気で、来訪者に良い第一印象を与えることができます。 周辺環境も非常に魅力的で、飲食店や商業施設が充実しており、ビジネス後のショッピングや食事にも困りません。また、歌舞伎座の真向かいに位置しており、文化的な施設も楽しむことができます。その他、銀行や郵便局など、ビジネスに必要なサービスが周辺に揃っており、オフィスワーカーにとって非常に便利な環境です。 銀座クイントビルは、その優れた立地、機能性、そして魅力的な周辺環境を兼ね備えた賃貸オフィスビルです。ビジネスの成功をサポートする理想的なオフィス空間をお探しの銀座クイントビルで新たな一歩を踏み出してみてはいかがでしょうか。
銀座クイントビルのこだわり
自分で探すより問い合わせる方が早いことがあります
WEB非公開物件があるから
オーナー様のご希望により「WEBでは非公開」にしている物件があります。 それらはWEBでいくら検索しても見つかりません。 先ずは条件などお知らせ頂けましたら非公開物件含め ピッタリのオフィスをご提案させて頂きます。 無理なお勧めはしておりませんので、お気軽にお問い合わせください。
対面でのご相談も受け付けております
ご来店も歓迎です
オフィス移転は社内・社外ともに非公開に行われることが殆どです。そのためアットオフィスでは、基本的に訪問によるコンサルティングを行っておりますが、ご来店の相談も歓迎です。お一人おひとりに親身にご対応させて頂きたい為、要予約とさせて頂いております。ご来店の際は先ずは下記よりご予約下さい。
募集終了のテナント区画
| 階数 | 坪数 | 賃料 + 共益費 | 敷金/礼金敷金 礼金 | 検討 |
|---|---|---|---|---|
| 8階 | 101.98坪 (337.15m²) | 募集終了 | - | - |
読込中...
銀座エリアで銀座クイントビルに似た条件の物件
読込中...
| 取扱様態 | 仲介 |
|---|---|
| 取扱会社 | 株式会社 アットオフィス |