サンライズ赤坂ビル5階の賃貸情報
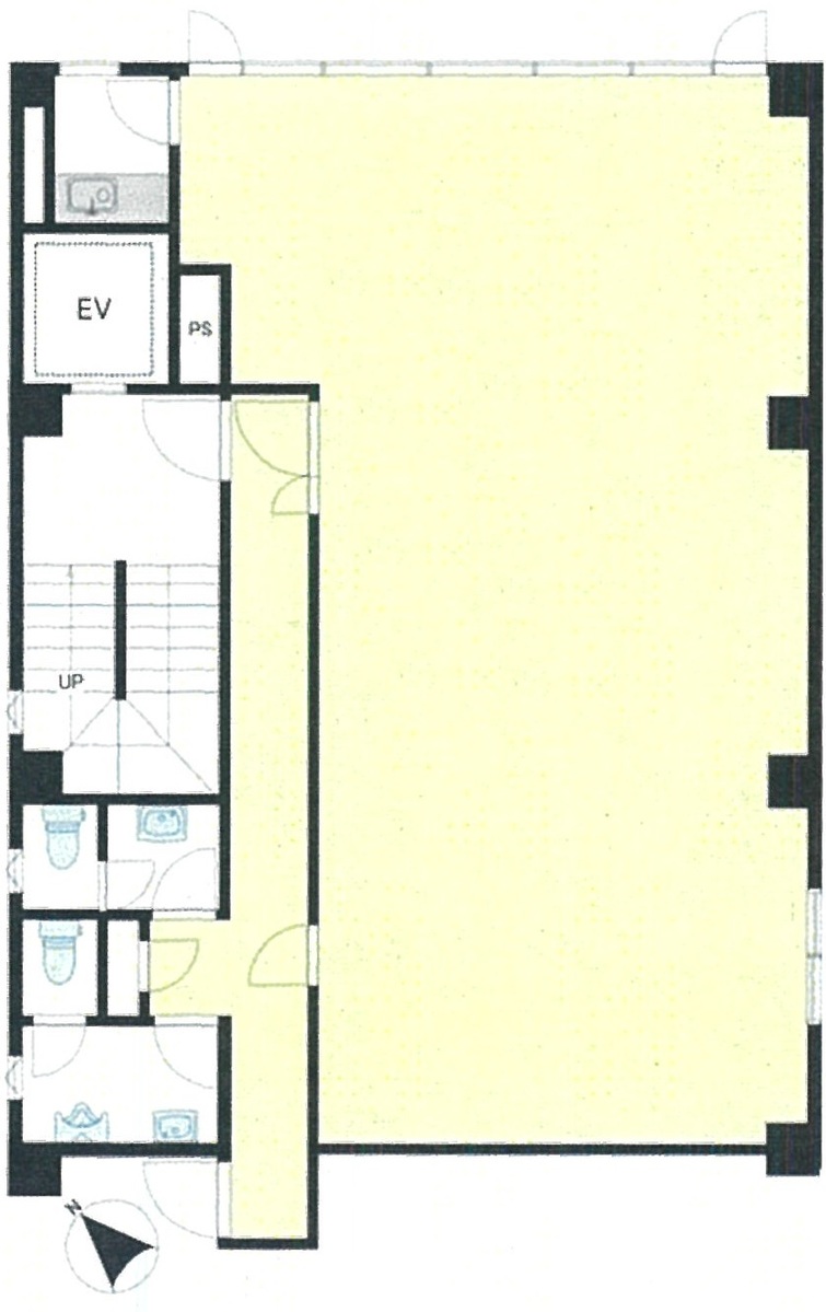
36.29 坪 (119.98m²)
※このサイトに記載がある賃貸条件は、敷金・保証金などの預かり金を除き、別途消費税がかかります。
サンライズ赤坂ビルの建物概要
設備詳細
| 空調 | - |
|---|---|
| トイレ | - |
| 床仕様 | - |
| エレベータ | 1 基 |
| 駐車場設備 | - |
| その他 | 東京賃料が坪11000円以下 |
サンライズ赤坂ビル5階の賃貸オフィス・事務所に関するお問い合わせ
サンライズ赤坂ビルについて
サンライズ赤坂は、赤坂2丁目の心臓部に位置し、1985年にその風格ある姿を都市のスカイラインに加えました。このオフィスビルは、その立地、設備、そして設計において、ビジネスの世界で成功を収めるあらゆる企業にとって最適な環境を提供します。私たちは、サンライズ赤坂があなたのビジネスを次のレベルへと押し上げることを約束します。 立地は、ビジネスの世界において最も重要な要素の一つです。サンライズ赤坂は、溜池山王駅からわずか徒歩5分、六本木一丁目駅からも徒歩11分という、非常にアクセスしやすい場所にあります。この理想的な位置により、従業員やクライアントは都心のどこからでも簡単にビルにアクセスすることができます。また、ビルの周辺には、飲食店、コンビニ、銀行などの便利な施設が充実しており、日常のニーズやビジネスのランチミーティングにも不自由はありません。 サンライズ赤坂は、鉄筋コンクリート造りで、その耐震性に優れた構造は、どんな自然災害にも立ち向かう堅牢さを備えています。安全なビジネス環境を提供することは私たちの優先事項であり、このビルがそれを実現しています。また、ビル内には1基のエレベーターがあり、スムーズな移動を可能にし、個別空調システムが完備されているため、一年中快適なオフィス環境を保つことができます。 サンライズ赤坂は、男女別トイレが完備され、細部にわたる配慮も見受けられます。このような施設は、オフィスビルにおける日々の快適さと機能性を高める重要な要素です。加えて、ビルは裏通りに位置しており、車通りが少ないため、騒音から解放された静かな労働環境が提供されます。しかし、大通りが近いため、都心へのアクセスは非常に便利です。 私たちは、サンライズ赤坂が、あなたの企業にとってただのオフィススペース以上のものになると信じています。このビルは、ビジネスの成功を追求するすべての企業にとって、理想的な場所、安全で快適な環境、そして無限の可能性を提供します。サンライズ赤坂で、あなたのビジネスの新たな章を始めましょう。
サンライズ赤坂ビルのこだわり
自分で探すより問い合わせる方が早いことがあります
WEB非公開物件があるから
オーナー様のご希望により「WEBでは非公開」にしている物件があります。 それらはWEBでいくら検索しても見つかりません。 先ずは条件などお知らせ頂けましたら非公開物件含め ピッタリのオフィスをご提案させて頂きます。 無理なお勧めはしておりませんので、お気軽にお問い合わせください。
対面でのご相談も受け付けております
ご来店も歓迎です
オフィス移転は社内・社外ともに非公開に行われることが殆どです。そのためアットオフィスでは、基本的に訪問によるコンサルティングを行っておりますが、ご来店の相談も歓迎です。お一人おひとりに親身にご対応させて頂きたい為、要予約とさせて頂いております。ご来店の際は先ずは下記よりご予約下さい。
赤坂/六本木/麻布エリアでサンライズ赤坂ビルに似た条件の物件
読込中...
サンライズ赤坂ビルと同じ最寄駅の物件
読込中...
| 取扱様態 | 仲介 |
|---|---|
| 取扱会社 | 株式会社 アットオフィス |