メイゾン麹町10階の賃貸情報
22.79 坪 (75.35m²)
※このサイトに記載がある賃貸条件は、敷金・保証金などの預かり金を除き、別途消費税がかかります。
メイゾン麹町の建物概要
設備詳細
| 空調 | 個別空調 |
|---|---|
| トイレ | - |
| 床仕様 | OA対応床(フリーアクセス) |
| エレベータ | 1 基 |
| 駐車場設備 | - |
| その他 | 24時間利用可 |
部屋の雰囲気
室内写真1
室内写真2
室内写真3
室内写真4
室内写真5
トイレ
水周り
メイゾン麹町について
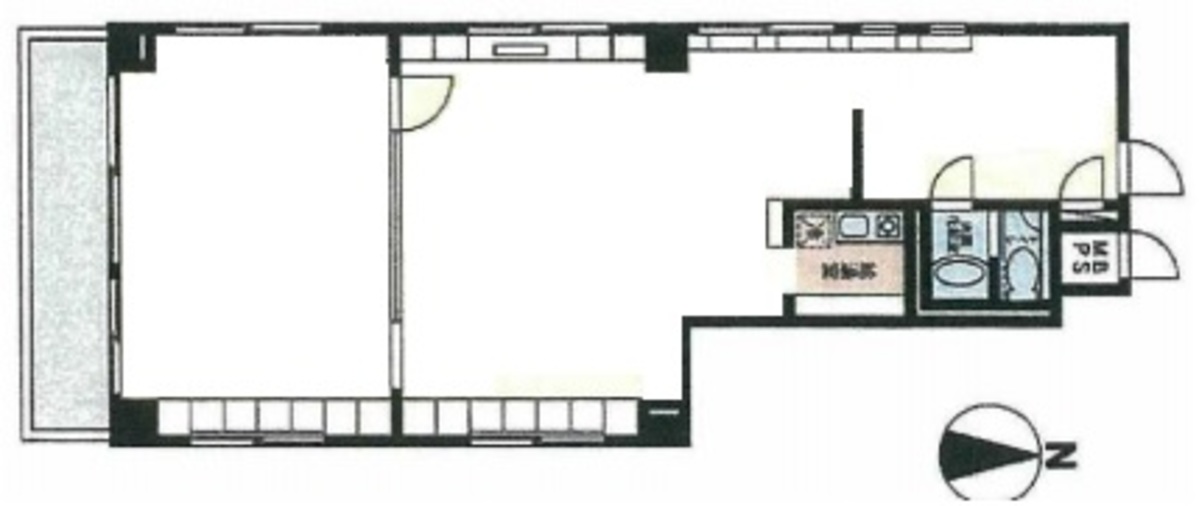
立地、アクセスの良さ、そして快適なオフィス環境をお求めのビジネスパーソンの方々へ。本物件は、都心の利便性と働きやすさを兼ね備えた理想的なオフィススペースです。 本物件は、麹町駅から徒歩わずか2分、半蔵門駅からも徒歩2分という、まさにアクセス至便の立地に位置しています。また、四ツ谷駅からも徒歩12分と、複数路線を利用できることから、都内各地への移動が非常にスムーズです。新宿通り沿いに立地しており、視認性も抜群。来客時の案内がしやすい点も、ビジネスシーンにおいて大きなメリットと言えるでしょう。 物件自体は、基準階面積が22坪と、中小規模の企業に最適な広さを誇ります。また、空間は長方形に近い無柱構造で、レイアウトの自由度が高く、効率的なオフィス作りが可能です。これにより、柔軟な働き方やチームワークの促進にも寄与することでしょう。 周辺環境も魅力的で、向かいの通りにはコンビニやカフェがあり、ランチタイムや小休憩時に利用できることから、日々の業務に彩りを加えます。さらに、周辺には多様な飲食店が点在しており、ビジネスランチやアフター5の憩いの場としても困ることはありません。 この物件は、アクセスの良さ、効率的な空間利用、充実した周辺環境と、ビジネスにおける三大要素を兼ね備えています。これらの特長を活かして、快適かつ生産性の高いオフィスライフを実現しませんか?ビジネスの成功には欠かせない、この立地と環境をぜひ、あなたの手で。
メイゾン麹町のこだわり
自分で探すより問い合わせる方が早いことがあります
WEB非公開物件があるから
オーナー様のご希望により「WEBでは非公開」にしている物件があります。 それらはWEBでいくら検索しても見つかりません。 先ずは条件などお知らせ頂けましたら非公開物件含め ピッタリのオフィスをご提案させて頂きます。 無理なお勧めはしておりませんので、お気軽にお問い合わせください。
対面でのご相談も受け付けております
ご来店も歓迎です
オフィス移転は社内・社外ともに非公開に行われることが殆どです。そのためアットオフィスでは、基本的に訪問によるコンサルティングを行っておりますが、ご来店の相談も歓迎です。お一人おひとりに親身にご対応させて頂きたい為、要予約とさせて頂いております。ご来店の際は先ずは下記よりご予約下さい。
番町/麹町/平河町エリアでメイゾン麹町に似た条件の物件
読込中...
メイゾン麹町と同じ最寄駅の物件
読込中...
| 取扱様態 | 仲介 |
|---|---|
| 取扱会社 | 株式会社 アットオフィス |