※このサイトに記載がある賃貸条件は、敷金・保証金などの預かり金を除き、別途消費税がかかります。
物件情報
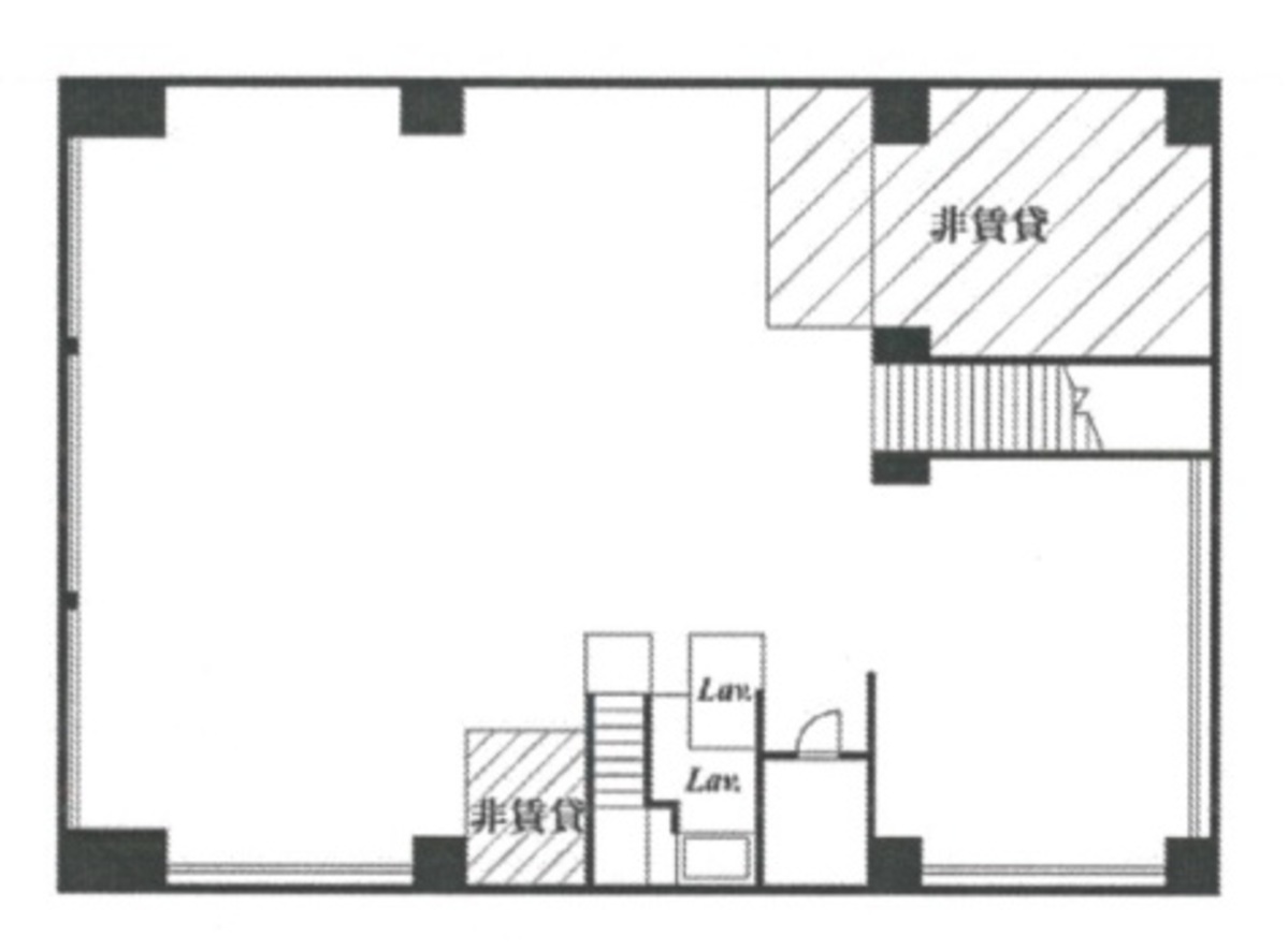
設備詳細
| 空調 | 個別空調 |
|---|---|
| トイレ | 男女共用トイレ・室内 |
| 床仕様 | - |
| エレベータ | 1 基 |
| 駐車場設備 | - |
| その他 | 新耐震基準 / 機械警備 / クリニック |
エフプラザの賃貸オフィス・事務所に関するお問い合わせ
エフプラザについて
港区麻布十番に位置するFプラザは、1984年に竣工した地上8階建ての賃貸オフィスビルです。この物件は、東京メトロ南北線および都営大江戸線が利用できる麻布十番駅からすぐにあることで知られ、ビジネスの中心地としての利便性と閑静な住宅街の落ち着きを併せ持つ、非常に魅力的な立地条件を提供します。 ビルのエントランスは吹き抜けになっており、開放感あふれる迎え入れが可能です。また、エレベーターは1基設置されており、ビル内の移動もスムーズです。オフィス空間としてのセキュリティは24時間体制で、防犯面にも配慮がなされており、入居企業および従業員の安心・安全が確保されています。 Fプラザの低層階には、飲食店をはじめとする複数の店舗テナントが入居しており、ビル内でのランチやアフター5の利用に便利です。また、周辺には銀行支店やコンビニエンスストアがあり、日常の様々なニーズに応えることができる点も大きな魅力です。 麻布十番エリアは、ビジネスと住宅が混在する地域で、ビルから一本裏手に入ると、住宅街の静かで落ち着いた環境に変わります。このことから、仕事とプライベートの両方で快適な環境を求める企業にとって、Fプラザは理想的なオフィススペースを提供します。 さらに、SOHOや事務所利用の相談が可能であるため、多様な業種の企業が活用できる柔軟性を持っています。これにより、スタートアップ企業から既に確立されたビジネスまで、幅広いニーズに対応することができるでしょう。 Fプラザは、その立地、設備、セキュリティ、そして周辺環境のバランスが取れた賃貸オフィスビルとして、ビジネスの成功をサポートする環境を提供します。あなたのビジネスが次のステップへと進むための理想的な場所を探しているなら、Fプラザがその答えとなるかもしれません。
エフプラザのこだわり
自分で探すより問い合わせる方が早いことがあります
WEB非公開物件があるから
オーナー様のご希望により「WEBでは非公開」にしている物件があります。 それらはWEBでいくら検索しても見つかりません。 先ずは条件などお知らせ頂けましたら非公開物件含め ピッタリのオフィスをご提案させて頂きます。 無理なお勧めはしておりませんので、お気軽にお問い合わせください。
対面でのご相談も受け付けております
ご来店も歓迎です
オフィス移転は社内・社外ともに非公開に行われることが殆どです。そのためアットオフィスでは、基本的に訪問によるコンサルティングを行っておりますが、ご来店の相談も歓迎です。お一人おひとりに親身にご対応させて頂きたい為、要予約とさせて頂いております。ご来店の際は先ずは下記よりご予約下さい。
募集終了のテナント区画
| 階数 | 坪数 | 賃料 + 共益費 | 敷金/礼金敷金 礼金 | 検討 |
|---|---|---|---|---|
| B1階 | 50坪 (165m²) | 募集終了 | - | - |
| 1階 | 20.37坪 (67.34m²) | 募集終了 | - | - |
| 2階 | 24.79坪 (81.98m²) | 募集終了 | - | - |
| 3階 | 24.81坪 (82m²) | 募集終了 | - | - |
| 4階 | 8.15坪 (26.93m²) | 募集終了 | - | - |
| 4階 | 7.79坪 (25.75m²) | 募集終了 | - | - |
| 5階 | 7.8坪 (25.76m²) | 募集終了 | - | - |
| 6階 | 24.81坪 (82m²) | 募集終了 | - | - |
| 6階 | 24.8坪 (82m²) | 募集終了 | - | - |
読込中...
赤坂/六本木/麻布エリアでエフプラザに似た条件の物件
読込中...
| 取扱様態 | 仲介 |
|---|---|
| 取扱会社 | 株式会社 アットオフィス |