三信八丁堀ビル4階の賃貸情報
125.52 坪 (414.98m²)
※このサイトに記載がある賃貸条件は、敷金・保証金などの預かり金を除き、別途消費税がかかります。
三信八丁堀ビルの建物概要
設備詳細
| 空調 | - |
|---|---|
| トイレ | - |
| 床仕様 | - |
| エレベータ | - |
| 駐車場設備 | - |
| その他 | 大型ビル |
三信八丁堀ビル4階の賃貸オフィス・事務所に関するお問い合わせ
三信八丁堀ビルについて
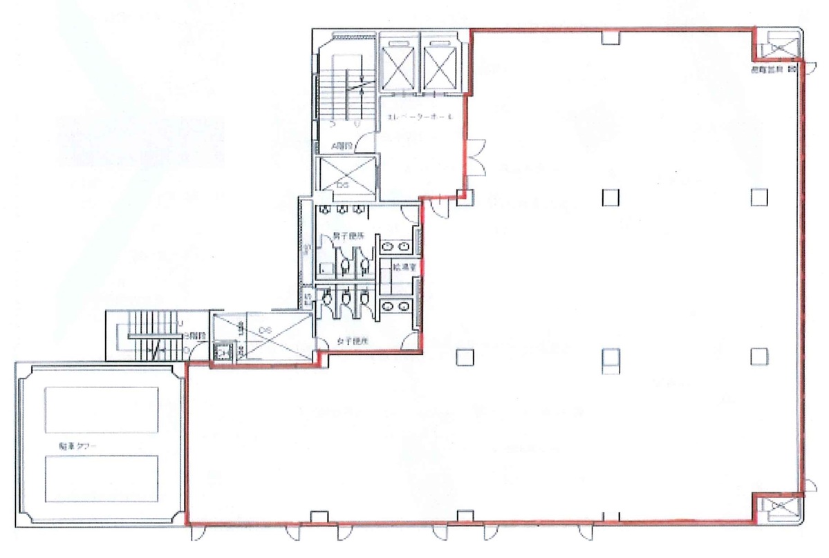
三信八丁堀ビルは、東京都中央区八丁堀に位置する、賃貸オフィスビルの優れた選択肢です。このビルは、1967年に竣工し、地上8階建てで構成されており、現代のオフィスニーズに応えるために、共用部分の一部リニューアルや最新の機械警備システムの導入など、時代に合わせたメンテナンスが施されています。基準階面積は約140坪で、特にL字型の間取りが特徴的です。これにより、より柔軟なレイアウト設計が可能となり、様々な業種の企業が自社の特性に合わせたオフィス空間を実現できます。 立地においては、東京メトロ日比谷線「八丁堀」駅から徒歩約1分という、非常に交通利便性の高い場所にあります。この立地は、ビジネスの機会を最大限に活かすためには欠かせない要素です。また、茅場町駅も徒歩圏内にあり、複数の交通手段を利用する従業員にとっても非常に便利です。周囲には多数のランチスポットやコンビニがあり、日常の業務をサポートする環境も整っています。 設備面では、各階に個別空調を完備し、男女別トイレや給湯スペースも室内に設置されています。これにより、快適な職場環境を提供し、従業員の働きやすさを重視します。また、機械式駐車場の併設は、車通勤を希望する従業員にとっても魅力的なポイントです。セキュリティ面では、機械警備システムが導入されており、入居企業と従業員の安全を確保しています。 三信八丁堀ビルは、その歴史と現代性を兼ね備えた設計、優れた立地、そして充実した設備により、ビジネスの成功を支える理想的なオフィス空間を提供します。企業が成長し、従業員が活躍するための環境を求める全ての方に、このビルを自信を持ってお勧めします。
三信八丁堀ビルのこだわり
自分で探すより問い合わせる方が早いことがあります
WEB非公開物件があるから
オーナー様のご希望により「WEBでは非公開」にしている物件があります。 それらはWEBでいくら検索しても見つかりません。 先ずは条件などお知らせ頂けましたら非公開物件含め ピッタリのオフィスをご提案させて頂きます。 無理なお勧めはしておりませんので、お気軽にお問い合わせください。
対面でのご相談も受け付けております
ご来店も歓迎です
オフィス移転は社内・社外ともに非公開に行われることが殆どです。そのためアットオフィスでは、基本的に訪問によるコンサルティングを行っておりますが、ご来店の相談も歓迎です。お一人おひとりに親身にご対応させて頂きたい為、要予約とさせて頂いております。ご来店の際は先ずは下記よりご予約下さい。
近くのエリアで探してみる
茅場町/新川/八丁堀エリアで三信八丁堀ビルに似た条件の物件
読込中...
三信八丁堀ビルと同じ最寄駅の物件
読込中...
| 取扱様態 | 仲介 |
|---|---|
| 取扱会社 | 株式会社 アットオフィス |