サンモール第78階の賃貸情報
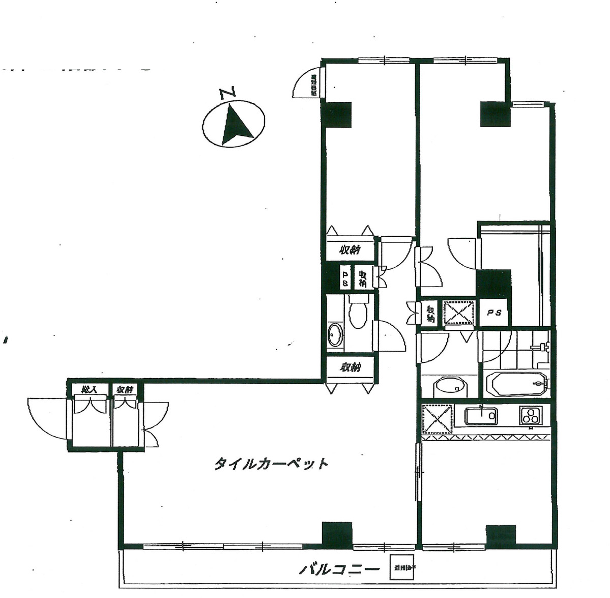
15.6 坪 (51.57m²)
※このサイトに記載がある賃貸条件は、敷金・保証金などの預かり金を除き、別途消費税がかかります。
サンモール第7の建物概要
設備詳細
| 空調 | 個別空調 |
|---|---|
| トイレ | 男女共用トイレ・室内 |
| 床仕様 | - |
| エレベータ | 1 基 |
| 駐車場設備 | - |
| その他 | 24時間利用可 / 光ファイバー / 新耐震基準 |
サンモール第78階の賃貸オフィス・事務所に関するお問い合わせ
サンモール第7について
新宿区新宿1丁目に堂々と構えるサンモール第7ビルは、1995年に竣工された、鉄骨鉄筋コンクリート構造の10階建ての賃貸オフィスビルです。オフィスビルとしての重厚感と落ち着きを備え、ビジネスシーンに求められる機能美と快適性を兼ね備えています。基準階約82坪の広々としたオフィススペースは、各企業のニーズに合わせた柔軟なレイアウト変更が可能で、24時間利用可能な点も魅力の一つです。 立地としては、東京メトロ丸ノ内線の新宿御苑前駅からわずか徒歩2分という好立地にあり、東京メトロ副都心線の新宿三丁目駅や都営新宿線の新宿三丁目駅からも徒歩圏内に位置しています。このアクセスの良さは、ビジネスの機動性を高める重要な要素であり、多方面からの来訪者にとっても大きな利点となります。 ビルの外観は、茶色のタイル張りが温かみのある印象を与え、ビルの周囲はオフィスビルや住宅が立ち並ぶ落ち着いたエリアに位置しています。また、新宿御苑が近くにあり、ビジネスの合間に自然を感じることができる点も、このビルの特筆すべき魅力の一つです。 サンモール第7ビル内には、9人乗りのエレベーターが1基設置されており、機械警備によるセキュリティや光ファイバーによる高速インターネット接続、貸倉庫といったビジネスの効率を高める設備が整っています。また、個別空調やOAフロアを完備し、室内は男女別トイレを備えるなど、利用者の快適性を追求した作りになっています。 このビルがビジネスに適している理由は、単に物理的な設備や機能に留まらず、周辺環境にもあります。ビルの周りには飲食店が豊富にあり、日々のランチやビジネスディナーに困ることはありません。また、新宿駅方面にはショッピングモールやデパートが多数あり、仕事終わりのショッピングや娯楽施設へのアクセスも容易です。 サンモール第7ビルは、立地の良さ、設備の充実、そして快適な周辺環境を兼ね備えた賃貸オフィスビルとして、多様なビジネスニーズに応えることができる物件です。新宿というビジネスの中心地で、企業の成長をサポートする理想的なオフィス環境を提供しています。
サンモール第7のこだわり
自分で探すより問い合わせる方が早いことがあります
WEB非公開物件があるから
オーナー様のご希望により「WEBでは非公開」にしている物件があります。 それらはWEBでいくら検索しても見つかりません。 先ずは条件などお知らせ頂けましたら非公開物件含め ピッタリのオフィスをご提案させて頂きます。 無理なお勧めはしておりませんので、お気軽にお問い合わせください。
対面でのご相談も受け付けております
ご来店も歓迎です
オフィス移転は社内・社外ともに非公開に行われることが殆どです。そのためアットオフィスでは、基本的に訪問によるコンサルティングを行っておりますが、ご来店の相談も歓迎です。お一人おひとりに親身にご対応させて頂きたい為、要予約とさせて頂いております。ご来店の際は先ずは下記よりご予約下さい。
新宿/西新宿エリアでサンモール第7に似た条件の物件
読込中...
サンモール第7と同じ最寄駅の物件
読込中...
| 取扱様態 | 仲介 |
|---|---|
| 取扱会社 | 株式会社 アットオフィス |