インペリアル赤坂壱番館4階の賃貸情報
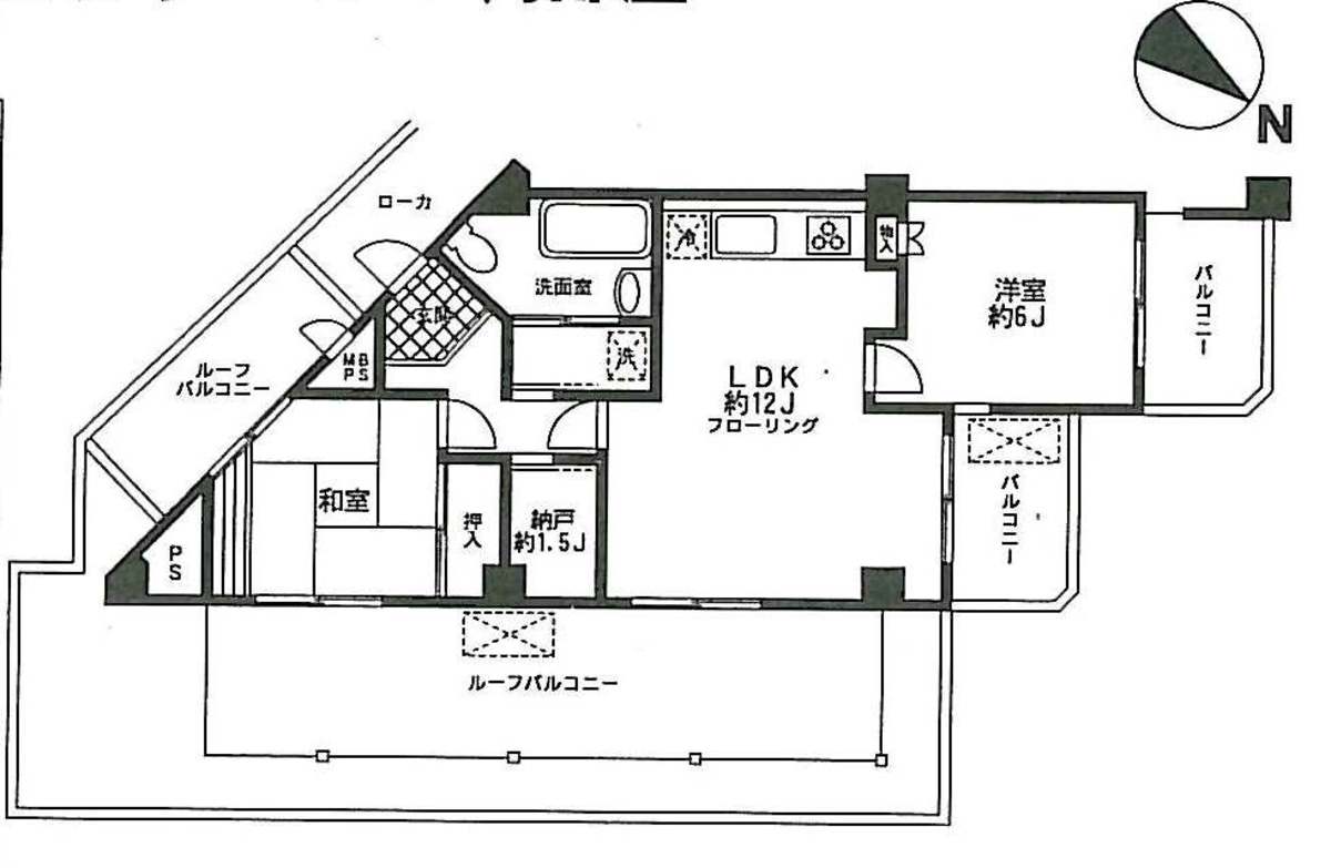
18.24 坪 (60.3m²)
※このサイトに記載がある賃貸条件は、敷金・保証金などの預かり金を除き、別途消費税がかかります。
インペリアル赤坂壱番館の建物概要
設備詳細
| 空調 | - |
|---|---|
| トイレ | - |
| 床仕様 | - |
| エレベータ | - |
| 駐車場設備 | - |
| その他 | SOHO/マンション / 保証金・敷金+礼金が3か月以下 |
インペリアル赤坂壱番館について
港区赤坂に位置するインペリアル赤坂壱番館ビルは、その優れた立地と設備で、SOHOや事務所利用をお考えの企業に最適な選択肢として注目されています。本ビルは、東京都港区赤坂8丁目に所在し、乃木坂駅からわずか徒歩5分の距離にあることから、アクセスの良さは抜群です。この地の利は、徒歩圏内に多様な商業施設や飲食店が点在し、ビジネスの場としてだけでなく、生活の利便性も高い点が大きな魅力です。 インペリアル赤坂壱番館ビルは、SOHO利用相談可能なマンションとして、多様なビジネスニーズに対応する柔軟性を備えています。小規模ながらもクリエイティブな事業を展開する起業家や、静かで落ち着いた環境で仕事に集中したいフリーランスの方々にも最適な環境を提供します。また、ビル内には最新のセキュリティシステムが導入されており、入居者の安全とプライバシーをしっかりと守ります。 このビルのもう一つの特徴は、その設備の充実さにあります。高速インターネット接続、快適な作業空間を確保するための最新の空調システム、そして清潔感あふれる共用部分など、働く人々の生産性を高めるための環境が整っています。加えて、小割区画をお探しの方にも適しており、企業の成長に合わせてスペースの調整が可能です。 ビジネスにおける立地の重要性は言うまでもありません。インペリアル赤坂壱番館ビルは、東京メトロ銀座線・千代田線が乗り入れる乃木坂駅からのアクセスの良さに加え、周辺環境の豊かさも兼ね備えています。ビジネスチャンスを広げ、多岐にわたる業種の企業やクライアントとの交流を促進する絶好のロケーションです。 総じて、インペリアル赤坂壱番館ビルは、優れた立地、柔軟な利用可能性、充実した設備を兼ね備え、ビジネスの発展をサポートする理想的な環境を提供しています。これからのビジネスをさらに飛躍させたい、そんな企業にとって、このビルは間違いなく魅力的な選択肢となるでしょう。
インペリアル赤坂壱番館のこだわり
自分で探すより問い合わせる方が早いことがあります
WEB非公開物件があるから
オーナー様のご希望により「WEBでは非公開」にしている物件があります。 それらはWEBでいくら検索しても見つかりません。 先ずは条件などお知らせ頂けましたら非公開物件含め ピッタリのオフィスをご提案させて頂きます。 無理なお勧めはしておりませんので、お気軽にお問い合わせください。
対面でのご相談も受け付けております
ご来店も歓迎です
オフィス移転は社内・社外ともに非公開に行われることが殆どです。そのためアットオフィスでは、基本的に訪問によるコンサルティングを行っておりますが、ご来店の相談も歓迎です。お一人おひとりに親身にご対応させて頂きたい為、要予約とさせて頂いております。ご来店の際は先ずは下記よりご予約下さい。
赤坂/六本木/麻布エリアでインペリアル赤坂壱番館に似た条件の物件
読込中...
インペリアル赤坂壱番館と同じ最寄駅の物件
読込中...
| 取扱様態 | 仲介 |
|---|---|
| 取扱会社 | 株式会社 アットオフィス |