アーバンネット三田ビル1階の賃貸情報
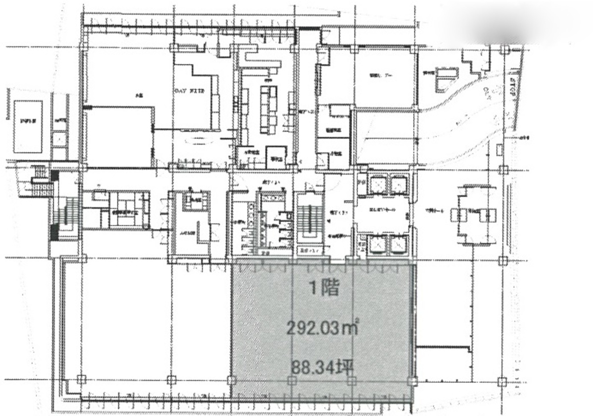
88.33 坪 (292.03m²)
※このサイトに記載がある賃貸条件は、敷金・保証金などの預かり金を除き、別途消費税がかかります。
アーバンネット三田ビルの建物概要
設備詳細
| 空調 | - |
|---|---|
| トイレ | - |
| 床仕様 | OA対応床(フリーアクセス) |
| エレベータ | 4 基 |
| 駐車場設備 | - |
| その他 | 管理人常駐 / 光ファイバー / 1階の物件 |
アーバンネット三田ビルについて
アーバンネット三田ビルは、まさにビジネスの未来を創造するための理想的な空間です。港区三田に位置し、第一京浜沿いの戦略的な立地により、都内各地へのアクセスが非常にスムーズです。泉岳寺駅から徒歩わずか3分、そして品川駅や田町駅からも徒歩10分程度という利便性の高さは、ビジネスの機動力を大きくサポートします。 1987年に竣工したこのビルは、地上8階建てで、シンプルでありながらも存在感を放つ外観が特徴です。床面積は約485坪の広大な空間に、余計な柱が少なく、高いレイアウトの自由度を誇ります。2550mmの天井高とフリーアクセスフロアが、開放的で快適なオフィス環境を提供します。また、エレベーターは4基設置されており、ビル内の移動もスムーズです。 アーバンネット三田ビルでは、ビジネスの効率を考慮した設備が充実しています。光ファイバーによる高速インターネット、個別空調システム、男女別トイレなど、快適なオフィスライフをサポートするための設備が整っています。また、1階には三菱東京UFJ銀行のATMやカフェがあり、ビジネスに必要なサービスが手の届く範囲に揃っています。 周辺環境もビジネスを行う上で非常に魅力的です。セブンイレブン、高輪郵便局、なか卯三田店などが徒歩2分の距離にあり、日々の生活に便利です。また、ビルの正面にはお弁当販売の業者が複数やってくるなど、ランチタイムの選択肢も豊富にあります。 アーバンネット三田ビルの最大の魅力は、その立地と設備、周辺環境のバランスの良さにあります。ビジネスの効率を考え、快適なオフィス環境を求める企業にとって、まさに理想的な場所です。ここから新たなビジネスの可能性を広げ、未来に向けた一歩を踏み出すことができるでしょう。アーバンネット三田ビルが、あなたのビジネスパートナーとして、成功への道を共に歩む準備ができています。
アーバンネット三田ビルのこだわり
自分で探すより問い合わせる方が早いことがあります
WEB非公開物件があるから
オーナー様のご希望により「WEBでは非公開」にしている物件があります。 それらはWEBでいくら検索しても見つかりません。 先ずは条件などお知らせ頂けましたら非公開物件含め ピッタリのオフィスをご提案させて頂きます。 無理なお勧めはしておりませんので、お気軽にお問い合わせください。
対面でのご相談も受け付けております
ご来店も歓迎です
オフィス移転は社内・社外ともに非公開に行われることが殆どです。そのためアットオフィスでは、基本的に訪問によるコンサルティングを行っておりますが、ご来店の相談も歓迎です。お一人おひとりに親身にご対応させて頂きたい為、要予約とさせて頂いております。ご来店の際は先ずは下記よりご予約下さい。
近くのエリアで探してみる
浜松町/田町/芝公園エリアでアーバンネット三田ビルに似た条件の物件
読込中...
アーバンネット三田ビルと同じ最寄駅の物件
読込中...
| 取扱様態 | 仲介 |
|---|---|
| 取扱会社 | 株式会社 アットオフィス |