※このサイトに記載がある賃貸条件は、敷金・保証金などの預かり金を除き、別途消費税がかかります。
物件情報
設備詳細
| 空調 | 個別空調 |
|---|---|
| トイレ | 男女別トイレ |
| 床仕様 | - |
| エレベータ | 1 基 / エレベーター有 |
| 駐車場設備 | - |
| その他 | オートロック / 機械警備 / 24時間利用可 / 光ファイバー / 新耐震基準 |
DS新宿ビルの賃貸オフィス・事務所に関するお問い合わせ
DS新宿ビルについて
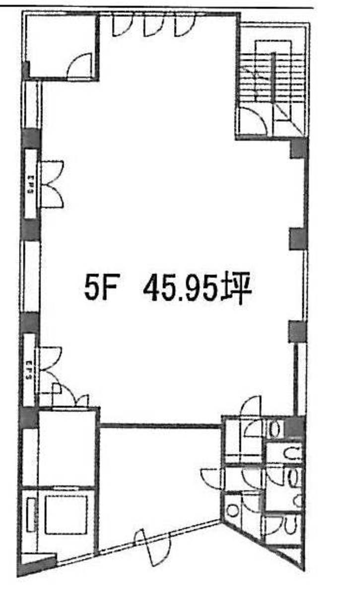
東京都新宿区、活気あふれる新宿の街に位置するDS新宿ビルは、都市の中心におけるビジネスの拠点としてその地位を確立しています。1993年に竣工したこのオフィスビルは、現代的な耐震基準に準拠し、安全かつ快適なワークスペースを提供しています。立地の利便性、優れた設備、そしてビジネスニーズに対応した設計が、DS新宿ビルの魅力を形成しています。 立地において、DS新宿ビルは東新宿駅からわずか徒歩2分という抜群のアクセス性を誇ります。さらに、新宿三丁目駅まで徒歩7分、新宿駅まで徒歩10分と、複数の駅を利用可能な立地はビジネスの機動性を高めます。明治通りに面し、視認性が高いことも特徴の一つであり、来客の案内が容易である点も見逃せません。 ビルの特徴として、基準階面積は45坪超と広々としており、天井高2.4mという開放的な空間で、一フロア一テナントの利用も可能です。これにより、プライバシーが保たれ、企業のブランドイメージに合わせたオフィス環境を構築できます。また、2階までの吹き抜けのエレベーターホールは、高級感と解放感を演出し、訪れる人々に良い印象を与えるでしょう。 設備面では、個別空調、男女別トイレ、光ケーブル接続など、テナントのニーズに応える充実した仕様が整っています。また、機械警備システムの導入により、安全性にも配慮されています。これらの設備は、快適で生産性の高いワークスペースを実現します。 周辺環境もDS新宿ビルの大きな魅力です。徒歩圏内には新宿イーストサイドスクエアをはじめとする商業施設が充実しており、ビジネスアフターのリラクゼーションや食事、買い物にも便利な立地です。また、近隣にはコンビニエンスストアや郵便局もあり、日々の業務に必要な様々なサービスが手軽に利用できることも、このオフィスビルが提供する利便性の一例です。 DS新宿ビルは、その立地、設計、設備を通じて、ビジネスの成功をサポートする理想的な環境を提供します。新宿という東京の中心におけるビジネスの拠点として、多様な企業にとって魅力的な選択肢となることでしょう。
DS新宿ビルのこだわり
自分で探すより問い合わせる方が早いことがあります
WEB非公開物件があるから
オーナー様のご希望により「WEBでは非公開」にしている物件があります。 それらはWEBでいくら検索しても見つかりません。 先ずは条件などお知らせ頂けましたら非公開物件含め ピッタリのオフィスをご提案させて頂きます。 無理なお勧めはしておりませんので、お気軽にお問い合わせください。
対面でのご相談も受け付けております
ご来店も歓迎です
オフィス移転は社内・社外ともに非公開に行われることが殆どです。そのためアットオフィスでは、基本的に訪問によるコンサルティングを行っておりますが、ご来店の相談も歓迎です。お一人おひとりに親身にご対応させて頂きたい為、要予約とさせて頂いております。ご来店の際は先ずは下記よりご予約下さい。
募集終了のテナント区画
| 階数 | 坪数 | 賃料 + 共益費 | 敷金/礼金敷金 礼金 | 検討 |
|---|---|---|---|---|
| 4階 | 45.95坪 (151.9m²) | 募集終了 | - | - |
| 5階 | 45.95坪 (151.9m²) | 募集終了 | - | - |
| 7階 | 45.11坪 (149.12m²) | 募集終了 | - | - |
| 8階 | 45.12坪 (149.15m²) | 募集終了 | - | - |
読込中...
新宿/西新宿エリアでDS新宿ビルに似た条件の物件
読込中...
| 取扱様態 | 仲介 |
|---|---|
| 取扱会社 | 株式会社 アットオフィス |