成瀬ビル4階の賃貸情報
19.01 坪 (62.87m²)
※このサイトに記載がある賃貸条件は、敷金・保証金などの預かり金を除き、別途消費税がかかります。
成瀬ビルの建物概要
設備詳細
| 空調 | 個別空調 |
|---|---|
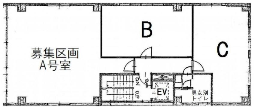
| トイレ | 男女別トイレ室外 |
| 床仕様 | - |
| エレベータ | 1 基 |
| 駐車場設備 | - |
| その他 | 24時間利用可 / 光ファイバー / 東京賃料が坪11000円以下 |
成瀬ビル4階の賃貸オフィス・事務所に関するお問い合わせ
成瀬ビルについて
成瀬ビルは中央区日本橋小舟町に位置する、地上6階建てのオフィスビルです。このビルは、落ち着いた雰囲気のある路地に面しており、周辺環境が静かでビジネスに集中しやすい環境を提供します。基準階面積は約190.596坪となっており、1階の貸事務所のサイズは約40坪で、ほぼ長方形のコの字型の間取りが特徴です。柱が壁に寄せられている設計により、レイアウトがしやすく、効率的なオフィス空間の利用が可能です。 ビル内にはエレベーターが1機設置されており、1階のエントランスにはコンパクトなロビーがあります。エレベーターと階段がロビーの奥で向かい合って配置されており、スムーズな動線が確保されています。外観は少し年季が入っていますが、その落ち着いた雰囲気はビジネスの場としての独特の魅力を持っています。 立地に関しては、成瀬ビルは人形町駅から徒歩4分の距離にあり、江戸情緒が残る賑やかなエリアとして知られる人形町通りに近接しています。この地域は老舗店を含む多様な店舗が軒を連ね、ランチスポットとしても充実しています。また、堀留児童公園が近くにあり、カフェやお弁当屋、トランクルーム、コンビニや銀行などの生活に便利な施設も周辺に存在します。 成瀬ビルの立地は、複数の駅が利用可能で、ビジネスアクセスに優れています。三越前駅をはじめとする複数の駅へのアクセスが容易であり、都心部への移動もスムーズです。このように、成瀬ビルはその立地、設備、周辺環境がビジネスの拠点としての利用において大きな利点を提供します。静かで落ち着いた環境、効率的なオフィスレイアウト、豊富な周辺施設、そして都心への良好なアクセスを求める企業にとって、成瀬ビルは魅力的な選択肢となるでしょう。
自分で探すより問い合わせる方が早いことがあります
WEB非公開物件があるから
オーナー様のご希望により「WEBでは非公開」にしている物件があります。 それらはWEBでいくら検索しても見つかりません。 先ずは条件などお知らせ頂けましたら非公開物件含め ピッタリのオフィスをご提案させて頂きます。 無理なお勧めはしておりませんので、お気軽にお問い合わせください。
対面でのご相談も受け付けております
ご来店も歓迎です
オフィス移転は社内・社外ともに非公開に行われることが殆どです。そのためアットオフィスでは、基本的に訪問によるコンサルティングを行っておりますが、ご来店の相談も歓迎です。お一人おひとりに親身にご対応させて頂きたい為、要予約とさせて頂いております。ご来店の際は先ずは下記よりご予約下さい。
近くのエリアで探してみる
人形町/馬喰町/浜町エリアで成瀬ビルに似た条件の物件
読込中...
成瀬ビルと同じ最寄駅の物件
読込中...
| 取扱様態 | 仲介 |
|---|---|
| 取扱会社 | 株式会社 アットオフィス |