※このサイトに記載がある賃貸条件は、敷金・保証金などの預かり金を除き、別途消費税がかかります。
物件情報
設備詳細
| 空調 | - |
|---|---|
| トイレ | - |
| 床仕様 | - |
| エレベータ | 1 基 |
| 駐車場設備 | - |
| その他 | 機械警備 / 24時間利用可 / 光ファイバー / 新耐震基準 |
5セントラルビルの賃貸オフィス・事務所に関するお問い合わせ
5セントラルビルについて
5セントラルビルは、中央区日本橋箱崎町に位置する、1983年竣工のオフィスビルであり、ビジネスの拠点として最適な立地と設備を兼ね備えています。ビルの最大の特徴は、水天宮前駅と茅場町駅という2つの最寄駅へのアクセスの良さにあります。これらの駅は、東京のビジネスエリアへの移動を容易にし、従業員やクライアントの通勤に大きな利点をもたらします。 立地に関してさらに言及すると、5セントラルビルは箱崎JCTに近接しており、首都高速道路へのアクセスが容易であるため、車での移動も非常に便利です。この立地は、ビジネスの機動性を高める要素として重要であり、都心部への迅速なアクセスが求められる企業にとって大きな魅力です。 ビル自体の特徴として、エレベーターは2014年5月にリニューアルされており、管理状態が良好であることが挙げられます。これは、ビルの利用者にとって日々の利便性を向上させ、安心して業務に専念できる環境が整っていることを意味します。 また、5セントラルビルは3面採光の明るいオフィス空間を提供しており、快適なワークスペースを実現しています。このような自然光が豊富なオフィスは、従業員の満足度を高め、生産性の向上にも寄与すると言われています。 さらに、ビルの位置するエリアは箱崎湊橋通りを1本奥に入った落ち着いた雰囲気のエリアであり、ビジネスに集中できる静かな環境が保たれています。このことは、特にクリエイティブな仕事や集中力を要する業務を行う企業にとって大きなメリットとなります。 総じて、5セントラルビルは、その優れた立地、アクセスの利便性、快適なオフィス環境、そして高い管理水準により、ビジネスの成功を支える理想的なオフィススペースを提供しています。これらの特性を通じて、企業の成長と発展を促し、従業員とクライアント双方にとって最適なビジネス環境を実現することができるでしょう。
5セントラルビルのこだわり
自分で探すより問い合わせる方が早いことがあります
WEB非公開物件があるから
オーナー様のご希望により「WEBでは非公開」にしている物件があります。 それらはWEBでいくら検索しても見つかりません。 先ずは条件などお知らせ頂けましたら非公開物件含め ピッタリのオフィスをご提案させて頂きます。 無理なお勧めはしておりませんので、お気軽にお問い合わせください。
対面でのご相談も受け付けております
ご来店も歓迎です
オフィス移転は社内・社外ともに非公開に行われることが殆どです。そのためアットオフィスでは、基本的に訪問によるコンサルティングを行っておりますが、ご来店の相談も歓迎です。お一人おひとりに親身にご対応させて頂きたい為、要予約とさせて頂いております。ご来店の際は先ずは下記よりご予約下さい。
募集終了のテナント区画
| 階数 | 坪数 | 賃料 + 共益費 | 敷金/礼金敷金 礼金 | 検討 |
|---|---|---|---|---|
| 4階 | 19.3坪 (63.8m²) | 募集終了 | - | - |
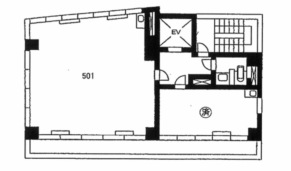
| 5階 | 17.25坪 (57.03m²) | 募集終了 | - | - |
| 6階 | 16.46坪 (54.41m²) | 募集終了 | - | - |
読込中...
近くのエリアで探してみる
人形町/馬喰町/浜町エリアで5セントラルビルに似た条件の物件
読込中...
| 取扱様態 | 仲介 |
|---|---|
| 取扱会社 | 株式会社 アットオフィス |