日本別館9階の賃貸情報
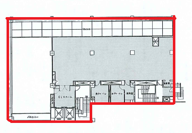
61.8 坪 (204.29m²)
※このサイトに記載がある賃貸条件は、敷金・保証金などの預かり金を除き、別途消費税がかかります。
日本別館の建物概要
設備詳細
| 空調 | 個別空調 |
|---|---|
| トイレ | - |
| 床仕様 | - |
| エレベータ | 2 基 |
| 駐車場設備 | - |
| その他 | 24時間利用可 / 大型ビル / 光ファイバー / 新耐震基準 |
日本別館9階の賃貸オフィス・事務所に関するお問い合わせ
日本別館について
日本別館ビルは、東京都中央区日本橋茅場町に位置し、1960年に竣工した貸事務所ビルです。この物件は、地上9階建てで、耐震補強工事を施し新耐震基準に適合するなど、安全性にも配慮されています。基準階面積は479.279坪となっており、400坪を超える大規模ビルとしての特徴を持ちます。また、ビル内のエレベーターは2基設置されており、テナントの利便性を高めています。 ビルの外観は白い吹き付けによる重厚感のあるデザインが特徴的で、シルバー基調の内装が落ち着いた雰囲気を演出しています。24時間有人警備を採用し、オフィスの24時間利用を可能にするなど、セキュリティ面でも安心の環境を提供しています。 立地においては、茅場町駅から徒歩3分の駅近物件であり、アクセスの良さが魅力の一つです。周辺にはオフィスビルが立ち並び、落ち着いた環境の中でビジネスを展開できる点が特徴です。また、永代通りから少し入った位置にあることで、首都高速道路へのアクセスも良好で、東京都内各所への移動が容易です。 周辺施設としては、セブン-イレブンやみずほ銀行兜町支店などが徒歩圏内にあり、日々の業務に必要なサービスや施設が身近に揃っています。さらに、小諸そば兜町店やプロントフレッサイン日本橋店などの飲食店も充実しており、ビジネスシーンにおける食事の利便性も高いです。 日本別館ビルは、その立地の良さ、充実した設備、安全性の高さを兼ね備え、ビジネスの拠点として最適な環境を提供しています。大規模ビルでありながら、管理が行き届いた綺麗な物件で、使用するテナントの使い勝手を考えた設計がなされている点も、この物件の魅力の一つです。これらの特徴を踏まえ、ビジネスの成功に貢献する質の高いオフィススペースをお探しの企業には、日本別館ビルが最適な選択肢となるでしょう。
自分で探すより問い合わせる方が早いことがあります
WEB非公開物件があるから
オーナー様のご希望により「WEBでは非公開」にしている物件があります。 それらはWEBでいくら検索しても見つかりません。 先ずは条件などお知らせ頂けましたら非公開物件含め ピッタリのオフィスをご提案させて頂きます。 無理なお勧めはしておりませんので、お気軽にお問い合わせください。
対面でのご相談も受け付けております
ご来店も歓迎です
オフィス移転は社内・社外ともに非公開に行われることが殆どです。そのためアットオフィスでは、基本的に訪問によるコンサルティングを行っておりますが、ご来店の相談も歓迎です。お一人おひとりに親身にご対応させて頂きたい為、要予約とさせて頂いております。ご来店の際は先ずは下記よりご予約下さい。
近くのエリアで探してみる
茅場町/新川/八丁堀エリアで日本別館に似た条件の物件
読込中...
日本別館と同じ最寄駅の物件
読込中...
| 取扱様態 | 仲介 |
|---|---|
| 取扱会社 | 株式会社 アットオフィス |