※このサイトに記載がある賃貸条件は、敷金・保証金などの預かり金を除き、別途消費税がかかります。
物件情報
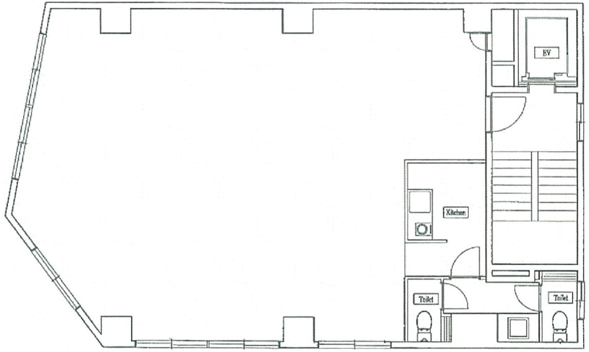
設備詳細
| 空調 | 個別空調 |
|---|---|
| トイレ | 男女別トイレ室内 |
| 床仕様 | - |
| エレベータ | 1 基 |
| 駐車場設備 | - |
| その他 | 光ファイバー |
堀留ファーストビルの賃貸オフィス・事務所に関するお問い合わせ
堀留ファーストビルについて
堀留ファーストビルは、中央区日本橋堀留町1丁目に位置する、ビジネスの中心地にふさわしい質の高いオフィスビルです。1971年に竣工されたこの9階建てのビルは、耐震性に優れた鉄筋コンクリート造りであり、安全性にも配慮されています。また、2007年には大規模なリニューアルが行われ、最新の設備と機能性を兼ね備えた現代のビジネスニーズに応える空間へと生まれ変わりました。 オフィスは24時間利用が可能で、個別空調システムにより、快適なオフィス環境が保たれます。また、光ファイバーに対応しており、高速インターネット環境も完備。エレベーターは1基設置されていますが、ビルの規模に見合った適切な配置であり、スムーズな移動が可能です。男女別のトイレや、クリニックとしての利用も可能など、利便性の高さも特徴の一つです。 立地においても、堀留ファーストビルは魅力的な環境にあります。小伝馬町駅から徒歩3分、人形町駅からは徒歩5分というアクセスの良さ。さらに、馬喰横山駅や水天宮前駅も徒歩圏内にあり、複数の交通網を利用しやすい点は、ビジネスの機動力を高めます。また、人形町通りに面しており、角地に位置するため視認性が高く、ビジネスのチャンスを広げる要素ともなっています。 周辺環境もまた、堀留ファーストビルがビジネスの場として魅力的である理由の一つです。飲食店や美容サロン、銀行などが周囲に充実しており、ビジネスだけでなく日々の生活にも便利な立地条件を備えています。また、オフィスビルやビジネスホテルが立ち並ぶこのエリアは、賑わいと落ち着きを兼ね備えたビジネス環境を形成しています。 堀留ファーストビルは、その立地、設備、そして環境全てにおいて、ビジネスの成功を支える最適なオフィススペースを提供します。ビジネスの拠点としての利用はもちろん、クリニックなどの特定の用途にも対応可能なこのビルは、多様なニーズに応える柔軟性を持っています。あなたのビジネスを次のレベルへと押し上げるための最良の選択、それが堀留ファーストビルです。
堀留ファーストビルのこだわり
自分で探すより問い合わせる方が早いことがあります
WEB非公開物件があるから
オーナー様のご希望により「WEBでは非公開」にしている物件があります。 それらはWEBでいくら検索しても見つかりません。 先ずは条件などお知らせ頂けましたら非公開物件含め ピッタリのオフィスをご提案させて頂きます。 無理なお勧めはしておりませんので、お気軽にお問い合わせください。
対面でのご相談も受け付けております
ご来店も歓迎です
オフィス移転は社内・社外ともに非公開に行われることが殆どです。そのためアットオフィスでは、基本的に訪問によるコンサルティングを行っておりますが、ご来店の相談も歓迎です。お一人おひとりに親身にご対応させて頂きたい為、要予約とさせて頂いております。ご来店の際は先ずは下記よりご予約下さい。
募集終了のテナント区画
| 階数 | 坪数 | 賃料 + 共益費 | 敷金/礼金敷金 礼金 | 検討 |
|---|---|---|---|---|
| 2階 | 32.85坪 (108.6m²) | 募集終了 | - | - |
| 2階 | 28.67坪 (94.8m²) | 募集終了 | - | - |
| 3階 | 28.67坪 (94.8m²) | 募集終了 | - | - |
| 4階 | 28.67坪 (94.8m²) | 募集終了 | - | - |
| 5階 | 28.67坪 (94.77m²) | 募集終了 | - | - |
| 7階 | 28.67坪 (94.8m²) | 募集終了 | - | - |
| 8階 | 32.85坪 (108.6m²) | 募集終了 | - | - |
読込中...
近くのエリアで探してみる
人形町/馬喰町/浜町エリアで堀留ファーストビルに似た条件の物件
読込中...
| 取扱様態 | 仲介 |
|---|---|
| 取扱会社 | 株式会社 アットオフィス |