※このサイトに記載がある賃貸条件は、敷金・保証金などの預かり金を除き、別途消費税がかかります。
物件情報
設備詳細
| 空調 | 個別空調 |
|---|---|
| トイレ | 男女共用トイレ・室内 |
| 床仕様 | - |
| エレベータ | - |
| 駐車場設備 | - |
| その他 | 24時間利用可 / 新耐震基準 / エレベーター無 / 東京賃料が坪11000円以下 |
TAKビルの賃貸オフィス・事務所に関するお問い合わせ
TAKビルについて
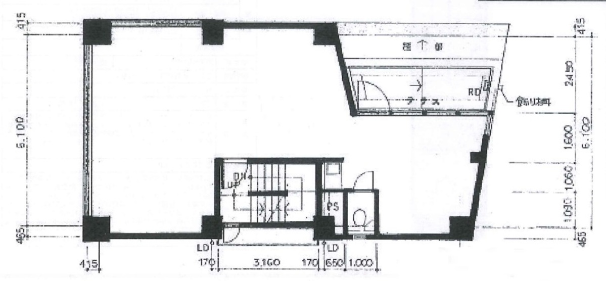
品川区南大井に位置するTAKビルは、1989年竣工の地上5階建てのオフィス賃貸物件であり、現代のビジネスニーズに合わせた設備と快適なワークスペースを提供しています。本物件は、約20坪のワンフロア面積を有し、各貸室内にはトイレと給湯スペースが設置されており、企業の日常運営に必要な基本的な設備が整っています。フロアごとに間取りや設備が異なる場合がありますので、実際の内見時に詳細を確認することをお勧めします。 TAKビルは、大森駅から徒歩圏内にあり、アクセスの良さはビジネスの機動性を高める重要な要素です。大井水神公園沿いの立地は、オフィス環境に潤いと落ち着きを与え、働く従業員のウェルビーイングにも寄与します。徒歩2分の距離にコンビニがあり、日々の小さな用事にも便利です。 エレベーターが設置されていないため、5階建ての建築物の利用には階段の使用が必須となります。この点は、特に健康意識の高い企業にとっては、日常の運動機会として捉えられるかもしれません。併せて、階段の使用は、ビル内のコミュニケーション機会を増やす効果も期待できます。 TAKビルの立地は、品川区南大井という地域の中心部にあり、周辺は住宅と商業施設が混在する活気あるエリアです。徒歩4分のセブンイレブンや品川水神郵便局まで徒歩2分という近さは、日常の業務運営において非常に便利です。 まとめると、TAKビルは、その立地の良さ、必要な基本設備の整ったオフィス空間、そして周辺環境の利便性を兼ね備えた賃貸事務所物件です。ビジネスの拠点として、また従業員が快適に働ける環境として、多くの企業にとって魅力的な選択肢となるでしょう。
TAKビルのこだわり
自分で探すより問い合わせる方が早いことがあります
WEB非公開物件があるから
オーナー様のご希望により「WEBでは非公開」にしている物件があります。 それらはWEBでいくら検索しても見つかりません。 先ずは条件などお知らせ頂けましたら非公開物件含め ピッタリのオフィスをご提案させて頂きます。 無理なお勧めはしておりませんので、お気軽にお問い合わせください。
対面でのご相談も受け付けております
ご来店も歓迎です
オフィス移転は社内・社外ともに非公開に行われることが殆どです。そのためアットオフィスでは、基本的に訪問によるコンサルティングを行っておりますが、ご来店の相談も歓迎です。お一人おひとりに親身にご対応させて頂きたい為、要予約とさせて頂いております。ご来店の際は先ずは下記よりご予約下さい。
募集終了のテナント区画
| 階数 | 坪数 | 賃料 + 共益費 | 敷金/礼金敷金 礼金 | 検討 |
|---|---|---|---|---|
| B1階 | 29.84坪 (98.66m²) | 募集終了 | - | - |
| 1階 | 18坪 (59.5m²) | 募集終了 | - | - |
| 2階 | 23.52坪 (77.78m²) | 募集終了 | - | - |
| 3階 | 22.99坪 (76m²) | 募集終了 | - | - |
| 5階 | 12.4坪 (41m²) | 募集終了 | - | - |
読込中...
品川/大崎/大井エリアでTAKビルに似た条件の物件
読込中...
| 取扱様態 | 仲介 |
|---|---|
| 取扱会社 | 株式会社 アットオフィス |