※このサイトに記載がある賃貸条件は、敷金・保証金などの預かり金を除き、別途消費税がかかります。
物件情報
設備詳細
| 空調 | - |
|---|---|
| トイレ | 男女別トイレ室外 |
| 床仕様 | - |
| エレベータ | 3 基 |
| 駐車場設備 | 空無 / 機械式駐車場 |
| その他 | 機械警備 / 24時間利用可 / 大型ビル / 新耐震基準 / 光ファイバー / 管理人常駐 / 神奈川賃料が10000円以下 |
新横浜第1竹生ビルの賃貸オフィス・事務所に関するお問い合わせ
新横浜第1竹生ビルについて
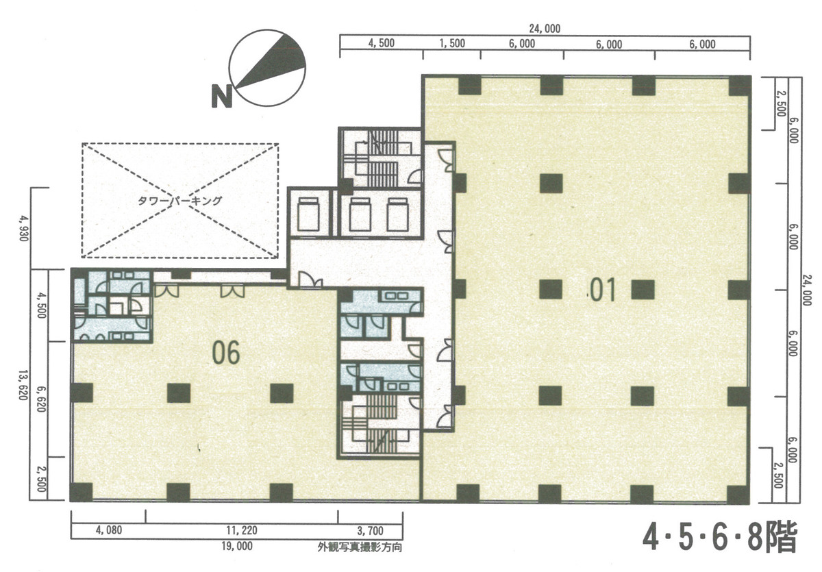
10坪から区画がある物件です!水回りが共用部にあり、複数の広さに対応しているオフィスです。クリニックが入居していたり幅広い職種に合う物件です。機械駐車場も有、後ろには駐輪スペースもございます。いろいろな職種の方々に最適な物件となっております。駅の北口から西側へ移動していく動線になります。物件の近隣にヤマト運輸や飲食店等も徒歩圏内にあり便利かと思います。ビル自体もエントランスや共用部分もお手入れされていて、大手テナントも入居している事務所向けの物件です。エントランス隣に立体駐車場も設置されており、空台数も現状ございますので、使い勝手良い物件です! EV3機設置されているため待ち時間も少なくご利用いただけます! エントランスからグレードの高さが伺える為、来客型のご業態でもご満足いただけます!
自分で探すより問い合わせる方が早いことがあります
WEB非公開物件があるから
オーナー様のご希望により「WEBでは非公開」にしている物件があります。 それらはWEBでいくら検索しても見つかりません。 先ずは条件などお知らせ頂けましたら非公開物件含め ピッタリのオフィスをご提案させて頂きます。 無理なお勧めはしておりませんので、お気軽にお問い合わせください。
対面でのご相談も受け付けております
ご来店も歓迎です
オフィス移転は社内・社外ともに非公開に行われることが殆どです。そのためアットオフィスでは、基本的に訪問によるコンサルティングを行っておりますが、ご来店の相談も歓迎です。お一人おひとりに親身にご対応させて頂きたい為、要予約とさせて頂いております。ご来店の際は先ずは下記よりご予約下さい。
募集終了のテナント区画
| 階数 | 坪数 | 賃料 + 共益費 | 敷金/礼金敷金 礼金 | 検討 |
|---|---|---|---|---|
| 1階 | 133.83坪 (442.42m²) | 募集終了 | - | - |
| 2階 | 141.46坪 (467.64m²) | 募集終了 | - | - |
| 2階 | 56.95坪 (188.26m²) | 募集終了 | - | - |
| 2階 | 34.45坪 (113.82m²) | 募集終了 | - | - |
| 2階 | 36.28坪 (119.93m²) | 募集終了 | - | - |
| 2階 | 70.73坪 (233.82m²) | 募集終了 | - | - |
| 2階 | 70.73坪 (233.82m²) | 募集終了 | - | - |
| 3階 | 141.46坪 (467.64m²) | 募集終了 | - | - |
| 3階 | 12.44坪 (41.12m²) | 募集終了 | - | - |
| 3階 | 11.26坪 (37.22m²) | 募集終了 | - | - |
| 3階 | 23.89坪 (78.98m²) | 募集終了 | - | - |
| 3階 | 12.32坪 (40.72m²) | 募集終了 | - | - |
| 3階 | 21.29坪 (70.38m²) | 募集終了 | - | - |
| 3階 | 33.58坪 (111m²) | 募集終了 | - | - |
| 4階 | 141.46坪 (467.64m²) | 募集終了 | - | - |
| 4階 | 60.86坪 (201.2m²) | 募集終了 | - | - |
| 4階 | 134.14坪 (443.42m²) | 募集終了 | - | - |
| 5階 | 9.03坪 (29.85m²) | 募集終了 | - | - |
| 5階 | 36.28坪 (119.93m²) | 募集終了 | - | - |
| 5階 | 21.13坪 (69.85m²) | 募集終了 | - | - |
| 5階 | 24.68坪 (81.59m²) | 募集終了 | - | - |
| 5階 | 11.61坪 (38.39m²) | 募集終了 | - | - |
| 5階 | 11.28坪 (37.29m²) | 募集終了 | - | - |
| 5階 | 13.29坪 (43.93m²) | 募集終了 | - | - |
| 5階 | 34.45坪 (113.82m²) | 募集終了 | - | - |
| 5階 | 13.39坪 (44.27m²) | 募集終了 | - | - |
| 6階 | 203.15坪 (671.57m²) | 募集終了 | - | - |
| 6階 | 60.86坪 (201.2m²) | 募集終了 | - | - |
| 6階 | 36.28坪 (119.93m²) | 募集終了 | - | - |
| 6階 | 60.86坪 (201.2m²) | 募集終了 | - | - |
| 6階 | 36.28坪 (119.94m²) | 募集終了 | - | - |
| 7階 | 60.86坪 (201.19m²) | 募集終了 | - | - |
| 7階 | 60.86坪 (201.2m²) | 募集終了 | - | - |
| 8階 | 38.58坪 (127.54m²) | 募集終了 | - | - |
| 8階 | 60.86坪 (201.2m²) | 募集終了 | - | - |
| 8階 | 70.73坪 (233.82m²) | 募集終了 | - | - |
| 8階 | 32.34坪 (106.91m²) | 募集終了 | - | - |
| 8階 | 67.07坪 (221.71m²) | 募集終了 | - | - |
| 8階 | 36.28坪 (119.94m²) | 募集終了 | - | - |
読込中...
港北区エリアで新横浜第1竹生ビルに似た条件の物件
読込中...
| 取扱様態 | 仲介 |
|---|---|
| 取扱会社 | 株式会社 アットオフィス |