ヘリオスビル10階の賃貸情報
51.07 坪 (168.85m²)
※このサイトに記載がある賃貸条件は、敷金・保証金などの預かり金を除き、別途消費税がかかります。
ヘリオスビルの建物概要
設備詳細
| 空調 | - |
|---|---|
| トイレ | 男女別トイレ室内 |
| 床仕様 | OA対応床(フリーアクセス) |
| エレベータ | 2 基 |
| 駐車場設備 | 空有 |
| その他 | 機械警備 / 24時間利用可 / 光ファイバー / 新耐震基準 / 居抜き / セットアップ / オフィス居抜き特集 |
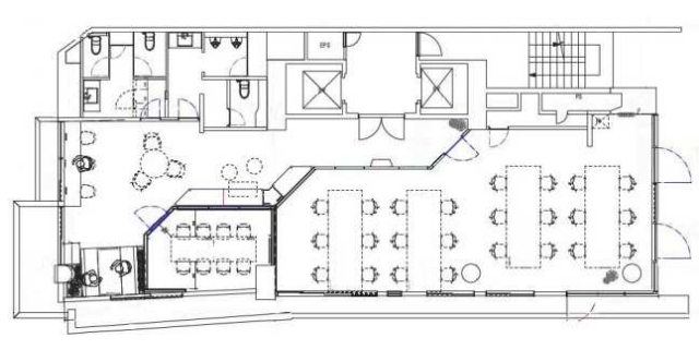
部屋の雰囲気
ヘリオスビル10階の賃貸オフィス・事務所に関するお問い合わせ
ヘリオスビルについて
ヘリオスビルは、東京都品川区西五反田に位置する質の高いオフィスビルで、その魅力は設計、立地、設備など多岐にわたります。竣工は1989年であり、坂倉建築研究所による設計は、そのデザイン性と遮音性に優れた堅固な構造を持つ点で特筆すべきです。ビルは山手通り沿いに位置し、「不動前」駅から徒歩わずか1分の距離にあります。この立地は3駅以上のアクセスが可能であり、ビジネスの機動性を高める絶好の位置条件を提供します。 ビル内の設備も充実しており、OAフロアや2基のエレベーター、24時間利用可能な男女別トイレ、そして月極駐車場も搭載しています。これにより、入居企業の様々なニーズに応えることが可能です。また、2022年3月には共用部のリニューアル工事が完了し、受付と会議室が含まれるセットアップオフィスへのリニューアル工事も完了予定であり、更なる機能性と使い勝手の良さが期待されます。 周辺環境も非常に便利で、スーパーやドラッグストア、スポーツジムなどが徒歩圏内にあり、ビジネス以外の日常生活に必要なサービスも手軽に利用できます。また、飲食店が駅前に多く集まっており、ビジネスランチやアフター5の憩いの場としても適しています。 ヘリオスビルの内装は、シンプルで洗練されたデザインを採用しており、自社のブランドイメージに合わせたオフィスレイアウトが容易に実現できます。基準階約55坪の広々とした空間は、長方形の間取りで効率的なオフィスプランニングが可能です。また、2019年のリニューアル工事により、エントランスはよりスタイリッシュで洗練されたデザインに生まれ変わりました。 ヘリオスビルは、その立地、設計、設備、周辺環境のすべてにおいて、ビジネスの成長を支え、日々の業務を快適にするために必要な要素を備えています。これらの特性により、入居企業は効率的かつ快適なビジネス環境を享受できるでしょう。
ヘリオスビルのこだわり
自分で探すより問い合わせる方が早いことがあります
WEB非公開物件があるから
オーナー様のご希望により「WEBでは非公開」にしている物件があります。 それらはWEBでいくら検索しても見つかりません。 先ずは条件などお知らせ頂けましたら非公開物件含め ピッタリのオフィスをご提案させて頂きます。 無理なお勧めはしておりませんので、お気軽にお問い合わせください。
対面でのご相談も受け付けております
ご来店も歓迎です
オフィス移転は社内・社外ともに非公開に行われることが殆どです。そのためアットオフィスでは、基本的に訪問によるコンサルティングを行っておりますが、ご来店の相談も歓迎です。お一人おひとりに親身にご対応させて頂きたい為、要予約とさせて頂いております。ご来店の際は先ずは下記よりご予約下さい。
五反田エリアでヘリオスビルに似た条件の物件
読込中...
ヘリオスビルと同じ最寄駅の物件
読込中...
| 取扱様態 | 仲介 |
|---|---|
| 取扱会社 | 株式会社 アットオフィス |