アール五反田6階の賃貸情報
21.17 坪 (70m²)
※このサイトに記載がある賃貸条件は、敷金・保証金などの預かり金を除き、別途消費税がかかります。
アール五反田の建物概要
設備詳細
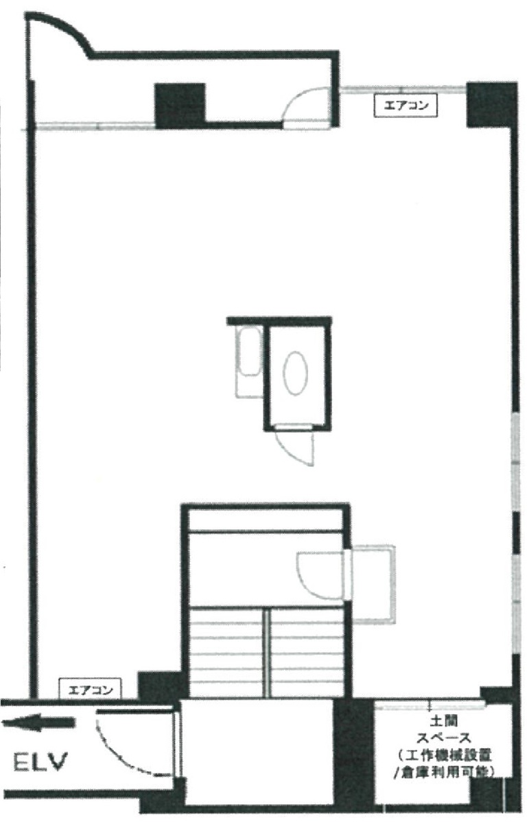
| 空調 | 個別空調 |
|---|---|
| トイレ | 男女共用トイレ・室内 |
| 床仕様 | - |
| エレベータ | 1 基 |
| 駐車場設備 | - |
| その他 | 24時間利用可 / SOHO/マンション / 機械警備 / 保証金・敷金+礼金が3か月以下 / 店舗可(飲食不可) |
部屋の雰囲気
室内写真
室内写真2
アール五反田6階の賃貸オフィス・事務所に関するお問い合わせ
アール五反田について
本日ご紹介するのは、東京都品川区西五反田8丁目に位置する「アール五反田ビル」です。このビルは、ビジネスの中核を担う方々にとって理想的なオフィス空間を提供しています。では、このビルの魅力をさっそく深堀りしていきましょう。 【立地の利便性】 「アール五反田ビル」は、五反田駅からわずか徒歩5分という抜群のアクセスを誇ります。五反田駅は、JR山手線をはじめとした複数の路線が乗り入れる交通の要所であり、都内各所への移動が非常に容易です。また、ビルの周辺には、ビジネスに必要な様々なサービスが充実しており、飲食店や銀行、郵便局などが徒歩圏内にあります。 【快適なオフィス環境】 1980年に竣工した「アール五反田ビル」ですが、2015年には主要設備や外壁、共用部の大規模なリニューアルを行いました。このリニューアルにより、古さを感じさせないモダンな外観と機能性を兼ね備えたオフィス空間が誕生しました。ビル内にはエレベーターが1機設置されており、スムーズな移動を支援します。また、リノベーションされた区画は快適性がさらに向上しており、長時間の業務でも疲れにくい環境が整っています。 【ビジネスの成長を支援】 「アール五反田ビル」は、立地の良さと快適なオフィス環境を兼ね備え、ビジネスの成長を強力にサポートします。五反田という活気あるエリアにオフィスを構えることで、クライアントやビジネスパートナーとのアクセスがより容易になり、ビジネスチャンスの拡大が期待できます。また、快適なオフィスは従業員のモチベーション向上にも繋がり、企業全体の生産性の向上に貢献するでしょう。 さあ、ビジネスの新たな舞台として、「アール五反田ビル」をぜひご検討ください。このビルが、皆様のビジネスを成功へと導く一助となることを強く信じています。もし、このビルに興味を持たれたら、ぜひお気軽にお問い合わせください。ビジネスの未来を、ここ「アール五反田ビル」で開花させましょう!
アール五反田のこだわり
自分で探すより問い合わせる方が早いことがあります
WEB非公開物件があるから
オーナー様のご希望により「WEBでは非公開」にしている物件があります。 それらはWEBでいくら検索しても見つかりません。 先ずは条件などお知らせ頂けましたら非公開物件含め ピッタリのオフィスをご提案させて頂きます。 無理なお勧めはしておりませんので、お気軽にお問い合わせください。
対面でのご相談も受け付けております
ご来店も歓迎です
オフィス移転は社内・社外ともに非公開に行われることが殆どです。そのためアットオフィスでは、基本的に訪問によるコンサルティングを行っておりますが、ご来店の相談も歓迎です。お一人おひとりに親身にご対応させて頂きたい為、要予約とさせて頂いております。ご来店の際は先ずは下記よりご予約下さい。
五反田エリアでアール五反田に似た条件の物件
読込中...
アール五反田と同じ最寄駅の物件
読込中...
| 取扱様態 | 仲介 |
|---|---|
| 取扱会社 | 株式会社 アットオフィス |