※このサイトに記載がある賃貸条件は、敷金・保証金などの預かり金を除き、別途消費税がかかります。
物件情報
設備詳細
| 空調 | - |
|---|---|
| トイレ | - |
| 床仕様 | - |
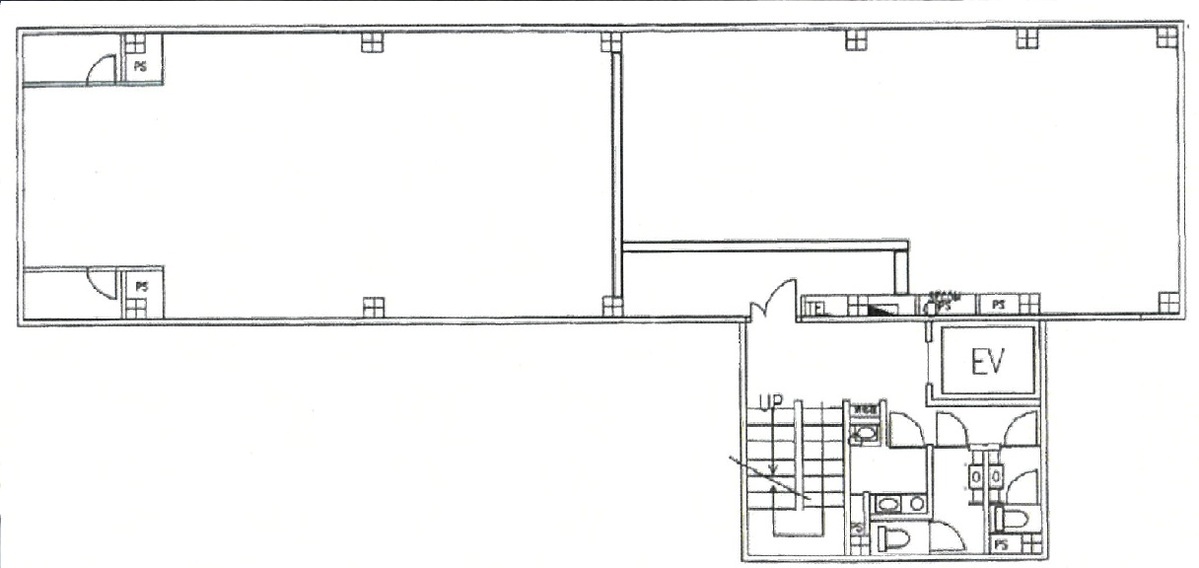
| エレベータ | 1 基 |
| 駐車場設備 | - |
| その他 | 機械警備 / 光ファイバー / 新耐震基準 |
下谷ポラリスビルの賃貸オフィス・事務所に関するお問い合わせ
下谷ポラリスビルについて
下谷ポラリスビルは、東京都台東区下谷1丁目に位置する、1988年竣工の耐震性能を備えたオフィスビルであり、その地理的利便性と機能性が高いレベルで融合した物件です。本ビルは、鶯谷駅からわずか徒歩3分の距離にあり、周辺には3駅以上がアクセス可能という、ビジネスの拠点として非常に優れた立地条件を提供しています。このように複数の交通網が手軽に利用できることから、従業員の通勤利便性はもちろん、ビジネスパートナーやクライアントとのアクセス性においても顕著な利点があります。 ビル自体は、耐震設計による安全性の高さを特徴としており、万が一の地震発生時でもビルの安全性とビジネスの継続性を確保します。また、トイレが男女別に設けられており、機械警備システムが完備されている点も、従業員やビルを訪れる人々にとっての安心感に繋がっています。 エレベーターは1機設置されており、ビル内の移動の便利さを提供しますが、この点は特に利便性を重視するテナントにとっては、考慮すべき点かもしれません。しかしながら、竣工から数十年が経過しているにも関わらず、ビルは良好な状態を保持しており、賃貸オフィスとしての魅力は未だ高く、特に中小企業やスタートアップ企業には、コストパフォーマンスの高いオプションとなり得ます。 総じて、下谷ポラリスビルは、その立地の利便性、安全性、そして機能性を兼ね備えたオフィスビルとして、多種多様なビジネスニーズに応えるポテンシャルを持っています。特に都心へのアクセスが容易でありながら、落ち着いた環境も併せ持つ台東区に位置することで、ビジネスの成功をサポートする環境を提供しているのです。
下谷ポラリスビルのこだわり
自分で探すより問い合わせる方が早いことがあります
WEB非公開物件があるから
オーナー様のご希望により「WEBでは非公開」にしている物件があります。 それらはWEBでいくら検索しても見つかりません。 先ずは条件などお知らせ頂けましたら非公開物件含め ピッタリのオフィスをご提案させて頂きます。 無理なお勧めはしておりませんので、お気軽にお問い合わせください。
対面でのご相談も受け付けております
ご来店も歓迎です
オフィス移転は社内・社外ともに非公開に行われることが殆どです。そのためアットオフィスでは、基本的に訪問によるコンサルティングを行っておりますが、ご来店の相談も歓迎です。お一人おひとりに親身にご対応させて頂きたい為、要予約とさせて頂いております。ご来店の際は先ずは下記よりご予約下さい。
募集終了のテナント区画
| 階数 | 坪数 | 賃料 + 共益費 | 敷金/礼金敷金 礼金 | 検討 |
|---|---|---|---|---|
| 1階 | 47.58坪 (157.28m²) | 募集終了 | - | - |
| 2階 | 55坪 (181.82m²) | 募集終了 | - | - |
| 3階 | 64.21坪 (212.26m²) | 募集終了 | - | - |
| 4階 | 64.21坪 (212.26m²) | 募集終了 | - | - |
| 4階 | 29.65坪 (98m²) | 募集終了 | - | - |
| 4階 | 33.78坪 (111.68m²) | 募集終了 | - | - |
| 5階 | 64.21坪 (212.26m²) | 募集終了 | - | - |
| 6階 | 64.21坪 (212.26m²) | 募集終了 | - | - |
| 7階 | 29.05坪 (96.05m²) | 募集終了 | - | - |
読込中...
浅草橋/蔵前/浅草エリアで下谷ポラリスビルに似た条件の物件
読込中...
| 取扱様態 | 仲介 |
|---|---|
| 取扱会社 | 株式会社 アットオフィス |