湯島夏目ビル3階の賃貸情報
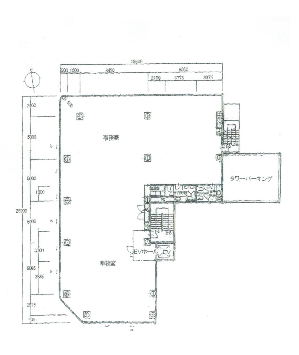
120.5 坪 (398.34m²)
※このサイトに記載がある賃貸条件は、敷金・保証金などの預かり金を除き、別途消費税がかかります。
湯島夏目ビルの建物概要
設備詳細
| 空調 | 個別空調 |
|---|---|
| トイレ | - |
| 床仕様 | OA対応床(フリーアクセス) |
| エレベータ | 1 基 |
| 駐車場設備 | - |
| その他 | 機械警備 / 24時間利用可 / 大型ビル / 光ファイバー / 新耐震基準 / 東京賃料が坪11000円以下 / フリーレント |
湯島夏目ビル3階の賃貸オフィス・事務所に関するお問い合わせ
湯島夏目ビルについて
湯島夏目ビルは、東京都文京区湯島に位置する1987年竣工のオフィスビルで、新耐震基準を満たした構造となっており、安全性の高さが魅力の一つです。地上8階、地下1階建てのこのビルは、基準階面積が120坪と広々としており、大規模なオフィスニーズにも対応可能です。ビルの設備は非常に充実しており、24時間利用可能な貸会議室、男女別トイレ、給湯設備、フリーアクセスフロア、光ファイバーインターネット、機械警備システムなどが整っています。 ビルの立地も魅力的で、最寄り駅である本郷三丁目駅(都営大江戸線・東京メトロ丸ノ内線)から徒歩6分と、アクセスが非常に便利です。また、湯島駅や御茶ノ水駅、末広町駅も徒歩10分程度で、複数の交通線が利用可能な点も大きな利点です。この地域はオフィスビルが多く立ち並ぶビジネスエリアでありながら、周辺には飲食店や銀行、郵便局といった生活インフラも充実しており、働きやすい環境が整っています。 また、ビルのデザインは外観に白いタイルを使用し、角地に立地しているため視認性が高く、洗練された印象を与えます。エントランスは清潔感があり、訪れるクライアントに良い第一印象を与えることでしょう。さらに、ビル内には機械式駐車場があり、20台の車を収容することができるため、来客の利便性も高めています。 湯島夏目ビルは、これらの設備と立地の良さ、安全性を兼ね備えたオフィスビルとして、多様なビジネスニーズに応えることができる物件です。企業が新たな拠点として選ぶにあたり、機能性と快適性を提供し、ビジネスの成功をサポートする環境がここにはあります。
自分で探すより問い合わせる方が早いことがあります
WEB非公開物件があるから
オーナー様のご希望により「WEBでは非公開」にしている物件があります。 それらはWEBでいくら検索しても見つかりません。 先ずは条件などお知らせ頂けましたら非公開物件含め ピッタリのオフィスをご提案させて頂きます。 無理なお勧めはしておりませんので、お気軽にお問い合わせください。
対面でのご相談も受け付けております
ご来店も歓迎です
オフィス移転は社内・社外ともに非公開に行われることが殆どです。そのためアットオフィスでは、基本的に訪問によるコンサルティングを行っておりますが、ご来店の相談も歓迎です。お一人おひとりに親身にご対応させて頂きたい為、要予約とさせて頂いております。ご来店の際は先ずは下記よりご予約下さい。
湯島/本郷/後楽園エリアで湯島夏目ビルに似た条件の物件
読込中...
湯島夏目ビルと同じ最寄駅の物件
読込中...
| 取扱様態 | 仲介 |
|---|---|
| 取扱会社 | 株式会社 アットオフィス |