※このサイトに記載がある賃貸条件は、敷金・保証金などの預かり金を除き、別途消費税がかかります。
物件情報
設備詳細
| 空調 | 個別空調 |
|---|---|
| トイレ | 男女別トイレ / 男女別トイレ室内 |
| 床仕様 | - |
| エレベータ | 1 基 / エレベーター有 |
| 駐車場設備 | 機械式駐車場 / 敷地内駐車場 |
| その他 | 機械警備 / 24時間利用可 / 光ファイバー / 新耐震基準 / 大通り面する / 駅直結 / クリニック |
トーシンビルミレニアムの賃貸オフィス・事務所に関するお問い合わせ
トーシンビルミレニアムについて
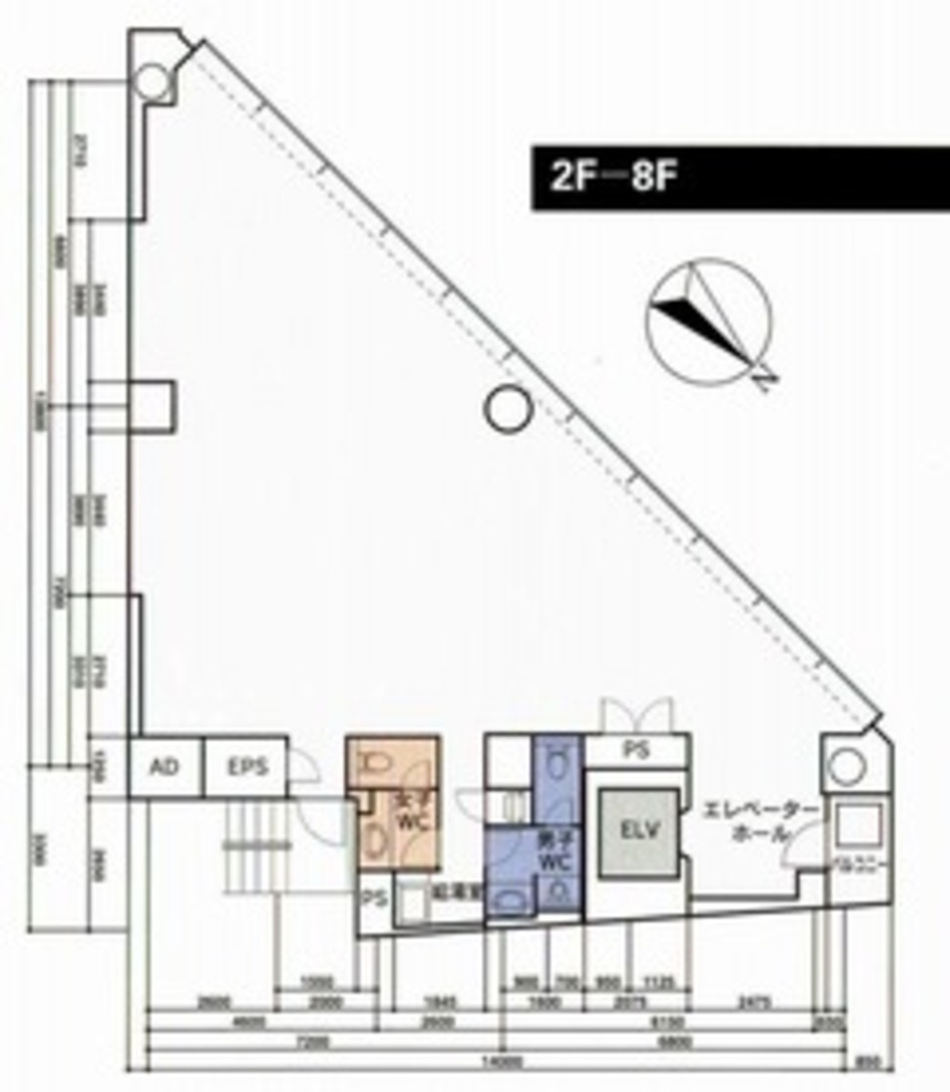
トーシンビルミレニアムは、渋谷区代々木に位置し、2000年に竣工された賃貸オフィスビルである。この物件は、現代のビジネスニーズに合わせた設計思想に基づいており、特に無柱空間という特性が、オフィスのレイアウトの自由度を大幅に高めています。ビルの基準階面積は約43坪で、各フロアの天井高は2.7mとなっており、広々とした開放感あふれる空間が提供されます。また、床荷重は500kg/㎡と、サーバー等の重機器の設置にも対応可能です。 立地に関しては、トーシンビルミレニアムは、甲州街道と山手通りの初台交差点角地にあり、アクセスの良さが一つの大きな魅力です。最寄り駅である京王新線の初台駅からは徒歩約2分、小田急小田原線の参宮橋駅からも徒歩圏内に位置しており、二つの駅を利用することで、都内各所への移動が容易になります。特に、新宿駅へは京王新線で1駅という利便性の高さから、ビジネスの中心地へのアクセスが非常にスムーズです。 設備面では、OAフロア(高さ80mm)、光ファイバー、カードシステムによる機械警備、男女別トイレ、個別空調といった、現代のオフィス環境に欠かせない機能が整っています。これにより、テナントは快適なオフィス環境の中で、効率的かつ効果的に業務を遂行することが可能です。また、隣接のトーシンビルと共通の駐車場が設けられており、自動車を利用するテナントにとっても便利です。 周辺環境としては、斜め向かいには東京オペラシティが位置しており、郵便局や銀行、カフェ、飲食店などが入っており、ビジネスだけでなく、日々の生活においても利便性が高い環境です。また、ビルの周辺にはコンビニやバス停もあり、日常生活のニーズにも対応しています。 トーシンビルミレニアムは、その立地の良さ、レイアウトの自由度が高い無柱空間、そして充実した設備が特長のオフィスビルです。ビジネスの拠点として、また快適なワークスペースとして、多くの企業に選ばれる理由がここにはあります。
自分で探すより問い合わせる方が早いことがあります
WEB非公開物件があるから
オーナー様のご希望により「WEBでは非公開」にしている物件があります。 それらはWEBでいくら検索しても見つかりません。 先ずは条件などお知らせ頂けましたら非公開物件含め ピッタリのオフィスをご提案させて頂きます。 無理なお勧めはしておりませんので、お気軽にお問い合わせください。
対面でのご相談も受け付けております
ご来店も歓迎です
オフィス移転は社内・社外ともに非公開に行われることが殆どです。そのためアットオフィスでは、基本的に訪問によるコンサルティングを行っておりますが、ご来店の相談も歓迎です。お一人おひとりに親身にご対応させて頂きたい為、要予約とさせて頂いております。ご来店の際は先ずは下記よりご予約下さい。
募集終了のテナント区画
| 階数 | 坪数 | 賃料 + 共益費 | 敷金/礼金敷金 礼金 | 検討 |
|---|---|---|---|---|
| 1階 | 36.5坪 (120.66m²) | 募集終了 | - | - |
| 2階 | 43.3坪 (143.16m²) | 募集終了 | - | - |
| 3階 | 43.3坪 (143.16m²) | 募集終了 | - | - |
| 4階 | 43.3坪 (143.16m²) | 募集終了 | - | - |
| 5階 | 43.3坪 (143.16m²) | 募集終了 | - | - |
| 7階 | 43.3坪 (143.16m²) | 募集終了 | - | - |
| 8階 | 43.3坪 (143.16m²) | 募集終了 | - | - |
読込中...
近くのエリアで探してみる
代々木/初台/幡ヶ谷エリアでトーシンビルミレニアムに似た条件の物件
読込中...
| 取扱様態 | 仲介 |
|---|---|
| 取扱会社 | 株式会社 アットオフィス |