第二吉沢ビル6階の賃貸情報
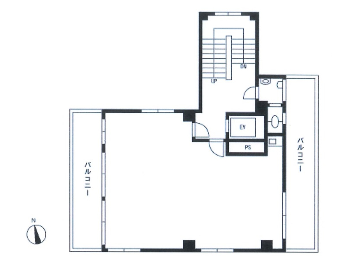
19.32 坪 (63.87m²)
※このサイトに記載がある賃貸条件は、敷金・保証金などの預かり金を除き、別途消費税がかかります。
第二吉沢ビルの建物概要
設備詳細
| 空調 | 個別空調 |
|---|---|
| トイレ | - |
| 床仕様 | - |
| エレベータ | 1 基 |
| 駐車場設備 | - |
| その他 | 東京賃料が坪11000円以下 |
第二吉沢ビルについて
第二吉沢ビルと第一吉沢ビルは、それぞれが台東区東上野における賃貸オフィス物件の優れた選択肢を提供しています。これらのビルは、ビジネスの中心地に位置し、上野駅からのアクセスが非常に便利であることが最大の特徴です。ここでは、それぞれのビルの特性、立地、設備などを簡潔にまとめ、ビジネスにおける利点を強調し、その独自の魅力を紹介いたします。 **第二吉沢ビル** 1968年に竣工したこのビルは、地上6階建てで、基準階は50坪弱となっております。1機のエレベーターが設置されており、室外には男女別トイレや給湯設備が完備されています。L字型の間取りが1フロアになっており、昭和通りの一本裏手に位置することで、静かな環境での業務を可能にしています。周辺にはビジネスホテルや他のオフィスビルが多く、コンビニや飲食店も豊富にあります。第二吉沢ビルは、特に小規模から中規模のビジネスに適したオフィススペースを提供します。 **第一吉沢ビル** 1970年に竣工したこのビルは、地上9階建てで基準階坪数は約40坪です。エレベーターは1基設置されており、空調は個別空調方式を採用しています。専用のトイレが設置されているため、プライバシーを重視するテナントに最適です。昭和通り沿いに位置し、首都高速1号上野線が目の前を走っています。この立地は、上野駅から徒歩4分ほどと、交通の利便性が高く、京成上野駅や稲荷町駅など複数の駅が徒歩圏内にあります。周辺には上野マルイをはじめ、各種サービスが充実しており、ビジネスの機会を広げる理想的な環境を提供します。 これらのビルは、立地の良さ、アクセスの便利さ、そして充実した周辺環境を兼ね備えており、ビジネスにおける成長と発展のための理想的なステージを提供します。各ビルの特性を活かし、テナントの皆様がより効率的で生産的なビジネスを展開できるようサポートいたします。ビジネスの拠点として、これらのビルを是非ご検討ください。
第二吉沢ビルのこだわり
自分で探すより問い合わせる方が早いことがあります
WEB非公開物件があるから
オーナー様のご希望により「WEBでは非公開」にしている物件があります。 それらはWEBでいくら検索しても見つかりません。 先ずは条件などお知らせ頂けましたら非公開物件含め ピッタリのオフィスをご提案させて頂きます。 無理なお勧めはしておりませんので、お気軽にお問い合わせください。
対面でのご相談も受け付けております
ご来店も歓迎です
オフィス移転は社内・社外ともに非公開に行われることが殆どです。そのためアットオフィスでは、基本的に訪問によるコンサルティングを行っておりますが、ご来店の相談も歓迎です。お一人おひとりに親身にご対応させて頂きたい為、要予約とさせて頂いております。ご来店の際は先ずは下記よりご予約下さい。
上野/台東/東上野エリアで第二吉沢ビルに似た条件の物件
読込中...
第二吉沢ビルと同じ最寄駅の物件
読込中...
| 取扱様態 | 仲介 |
|---|---|
| 取扱会社 | 株式会社 アットオフィス |