SAビルの賃料条件
| 階数 | 坪数 | 賃料 + 共益費 | 敷金/礼金敷金 礼金 | 検討 |
|---|---|---|---|---|
| 4階 | 66.67坪 (220.4m²) | 1,333,400円 (坪:20,000 円) | 10ヶ月 無10ヶ月/無 | |
| 5階 | 66.67坪 (220.4m²) | 1,333,400円 (坪:20,000 円) | 10ヶ月 無10ヶ月/無 |
※このサイトに記載がある賃貸条件は、敷金・保証金などの預かり金を除き、別途消費税がかかります。
物件情報
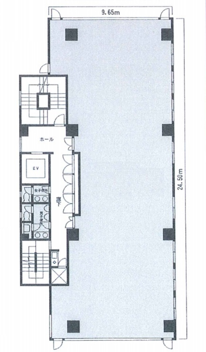
設備詳細
| 空調 | 個別空調 |
|---|---|
| トイレ | 男女別トイレ室外 |
| 床仕様 | - |
| エレベータ | 1 基 |
| 駐車場設備 | - |
| その他 | 機械警備 / 光ファイバー / 新耐震基準 |
SAビルの賃貸オフィス・事務所に関するお問い合わせ
SAビルについて
SAビルは、東京の心臓部、上野7丁目(台東区)に位置する、ビジネスの世界で活躍する方々に最適な賃貸オフィスビルです。この物件は、1987年に新耐震基準に則って建設され、安全性と現代性を兼ね備えております。清潔感溢れるエントランスは、訪れる全ての人に好印象を与えます。また、整形で配置しやすいオフィスレイアウトは、あらゆる業種の企業にとって最適な作業環境を提供します。 立地において、SAビルは比類なき利便性を誇ります。最寄り駅である上野駅からのアクセスは非常に容易で、東京都内はもちろん、関東圏外への移動もスムーズに行えます。この地点からビジネスの中心地へのアクセス性は、企業の成長と拡大に不可欠な要素です。 設備面では、ビル内に駐車場を完備しておりますので、自動車での通勤やビジネス用途での移動が必要な方にとっても大きな利点となります。空き状況に関してはお問い合わせください。また、エレベーターは1機設置されており、スムーズな移動を保証します。貸室の水回りがEVホールに集中して配置されている点も、オフィスの快適性を高める重要な特徴です。 レイアウトのしやすさは、このビルの大きな魅力の一つです。効率的なスペース利用が可能であり、どのようなビジネスニーズにも柔軟に対応できる設計となっています。これにより、創造性と生産性の向上が期待できます。 SAビルは、ビジネスの成長と成功をサポートするための最適な環境を提供します。その立地、設備、そして機能性を兼ね備えたデザインは、企業が直面する多様な課題に応える設計となっております。このビルで事業を展開することで、企業はそのポテンシャルを最大限に引き出し、新たなビジネスチャンスへとつながるでしょう。 私たちは、あなたのビジネスの成功を全力でサポートします。SAビルで新たな一歩を踏み出し、ビジネスの可能性を広げましょう。
SAビルのこだわり
自分で探すより問い合わせる方が早いことがあります
WEB非公開物件があるから
オーナー様のご希望により「WEBでは非公開」にしている物件があります。 それらはWEBでいくら検索しても見つかりません。 先ずは条件などお知らせ頂けましたら非公開物件含め ピッタリのオフィスをご提案させて頂きます。 無理なお勧めはしておりませんので、お気軽にお問い合わせください。
対面でのご相談も受け付けております
ご来店も歓迎です
オフィス移転は社内・社外ともに非公開に行われることが殆どです。そのためアットオフィスでは、基本的に訪問によるコンサルティングを行っておりますが、ご来店の相談も歓迎です。お一人おひとりに親身にご対応させて頂きたい為、要予約とさせて頂いております。ご来店の際は先ずは下記よりご予約下さい。
読込中...
上野/台東/東上野エリアでSAビルに似た条件の物件
読込中...
| 取扱様態 | 仲介 |
|---|---|
| 取扱会社 | 株式会社 アットオフィス |