上野東洋ビル8階の賃貸情報
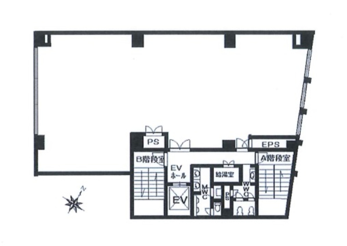
63.36 坪 (209.47m²)
※このサイトに記載がある賃貸条件は、敷金・保証金などの預かり金を除き、別途消費税がかかります。
上野東洋ビルの建物概要
設備詳細
| 空調 | 個別空調 |
|---|---|
| トイレ | 男女別トイレ室外 |
| 床仕様 | - |
| エレベータ | 1 基 |
| 駐車場設備 | - |
| その他 | 機械警備 / 光ファイバー / 新耐震基準 / クリニック |
上野東洋ビル8階の賃貸オフィス・事務所に関するお問い合わせ
上野東洋ビルについて
上野東洋ビルは、1991年に竣工された、台東区上野に位置する9階建ての耐震オフィスビルです。このビルの最大の魅力は、その絶好の立地にあります。中央通りに面し、上野広小路駅から徒歩わずか1分、上野駅からも徒歩5分というアクセスの良さは、ビジネスを行う上で非常に大きな利点です。さらに、周辺には多数の飲食店や商業施設があり、仕事終わりのリラックスやビジネスランチにも困りません。 物件自体の特徴も見逃せません。基準階約60坪の貸室は、水回りが室外に設けられており、レイアウトがしやすい間取りとなっています。これは多様なビジネスニーズに柔軟に対応できる点であり、オフィス空間を最適に活用したい事業主にとって大きな魅力となるでしょう。また、募集時期によっては分割区画も可能であり、成長段階に応じてスペースを調整できる柔軟性も備えています。 セキュリティ面では、機械警備が完備されており、24時間利用可能なオフィスビルとして、安心してビジネスを展開できます。また、月極駐車場がビル内にあるため、車を利用したビジネスにも便利です。 上野東洋ビルは、中央通り沿いという視認性の高い立地にありながら、裏手には昭和の下町を思い起こさせるような飲み屋街が広がり、日々の業務の中で都会の喧騒を感じることなく、落ち着いた環境で仕事を進められる点も大きな魅力です。さらに、観光地としても有名な上野恩賜公園やアメ横商店街が近くにあり、ビジネス以外の時間も充実させることができます。 このように、上野東洋ビルは、優れた立地、柔軟なレイアウト、高い安全性、そして周辺環境の豊かさを兼ね備えたオフィスビルです。ビジネスのスタートアップから成長、拡大を見据える企業にとって、最適な拠点となることでしょう。上野東洋ビルで、新たなビジネスの成功を切り拓きましょう。
自分で探すより問い合わせる方が早いことがあります
WEB非公開物件があるから
オーナー様のご希望により「WEBでは非公開」にしている物件があります。 それらはWEBでいくら検索しても見つかりません。 先ずは条件などお知らせ頂けましたら非公開物件含め ピッタリのオフィスをご提案させて頂きます。 無理なお勧めはしておりませんので、お気軽にお問い合わせください。
対面でのご相談も受け付けております
ご来店も歓迎です
オフィス移転は社内・社外ともに非公開に行われることが殆どです。そのためアットオフィスでは、基本的に訪問によるコンサルティングを行っておりますが、ご来店の相談も歓迎です。お一人おひとりに親身にご対応させて頂きたい為、要予約とさせて頂いております。ご来店の際は先ずは下記よりご予約下さい。
上野/台東/東上野エリアで上野東洋ビルに似た条件の物件
読込中...
上野東洋ビルと同じ最寄駅の物件
読込中...
| 取扱様態 | 仲介 |
|---|---|
| 取扱会社 | 株式会社 アットオフィス |