※このサイトに記載がある賃貸条件は、敷金・保証金などの預かり金を除き、別途消費税がかかります。
物件情報
設備詳細
| 空調 | 個別空調 |
|---|---|
| トイレ | 男女別トイレ室外 |
| 床仕様 | - |
| エレベータ | 2 基 |
| 駐車場設備 | 近隣有 |
| その他 | 光ファイバー / 24時間利用可 / 機械警備 / 管理人常駐 / 会議室 / 東京賃料が坪11000円以下 |
白王ビルの賃貸オフィス・事務所に関するお問い合わせ
白王ビルについて
文京区後楽に位置する「白王ビル」は、利便性と機能性を兼ね備えたオフィス賃貸物件として、多くのビジネスマンに選ばれています。このビルの最大の魅力は、何と言ってもその立地の良さです。JR飯田橋駅から徒歩わずか3分というアクセスの利便性は、日々の通勤はもちろん、ビジネスチャンスを広げるための移動にも時間を節約できる点で高い評価を受けています。さらに、東京メトロを含む5つの路線が利用可能で、都心へのアクセスも抜群です。 白王ビルは、1972年に竣工された地上10階建ての建物です。外観は重厚感があり、時を経た落ち着きと威厳を漂わせています。ビル内の設備は、現代のオフィスニーズに合わせてしっかりと整えられており、特に光と眺望の良さはテナントから高い評価を受けています。自然光が abundantに差し込むことで、オフィス内は常に明るく、快適なワークスペースを提供します。 安全性と利便性を考慮した設備として、エレベーターは2基設置されており、待ち時間の軽減にも貢献しています。また、男女別のトイレ設備は室外に設置されており、プライバシーと衛生面がしっかりと保たれています。24時間利用可能な貸室は、夜間や休日も業務を行うビジネスのニーズに応えるものです。日中は管理人が常駐し、ビルの安全と運営のスムーズさを保証しています。 周辺環境もビジネスにとってプラスとなる要素が豊富です。飲食店やコンビニ、金融機関が充実しており、日常の買い物やアフター5の利用にも困りません。さらに、ビル内には月極駐車場も完備されており、自動車でのアクセスも容易です。貸し会議室もあり、外部のビジネスパートナーを迎えての会議やセミナー開催にも対応できます。 白王ビルは、その立地の利便性、機能的な設備、そして周辺環境の豊富さにより、多様なビジネスニーズに応えるオフィス空間として、多くの企業に選ばれ続けています。文京区後楽での新たなビジネスの拠点として、ぜひご検討ください。
白王ビルのこだわり
自分で探すより問い合わせる方が早いことがあります
WEB非公開物件があるから
オーナー様のご希望により「WEBでは非公開」にしている物件があります。 それらはWEBでいくら検索しても見つかりません。 先ずは条件などお知らせ頂けましたら非公開物件含め ピッタリのオフィスをご提案させて頂きます。 無理なお勧めはしておりませんので、お気軽にお問い合わせください。
対面でのご相談も受け付けております
ご来店も歓迎です
オフィス移転は社内・社外ともに非公開に行われることが殆どです。そのためアットオフィスでは、基本的に訪問によるコンサルティングを行っておりますが、ご来店の相談も歓迎です。お一人おひとりに親身にご対応させて頂きたい為、要予約とさせて頂いております。ご来店の際は先ずは下記よりご予約下さい。
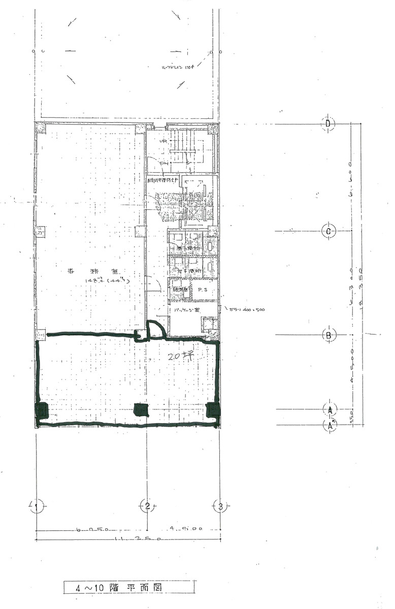
募集終了のテナント区画
| 階数 | 坪数 | 賃料 + 共益費 | 敷金/礼金敷金 礼金 | 検討 |
|---|---|---|---|---|
| 4階 | 15坪 (49.59m²) | 募集終了 | - | - |
| 4階 | 20坪 (66.12m²) | 募集終了 | - | - |
| 5階 | 20坪 (66.12m²) | 募集終了 | - | - |
| 5階 | 14坪 (46.28m²) | 募集終了 | - | - |
| 7階 | 29坪 (95.87m²) | 募集終了 | - | - |
| 9階 | 14坪 (46.28m²) | 募集終了 | - | - |
| 10階 | 29坪 (95.86m²) | 募集終了 | - | - |
読込中...
湯島/本郷/後楽園エリアで白王ビルに似た条件の物件
読込中...
| 取扱様態 | 仲介 |
|---|---|
| 取扱会社 | 株式会社 アットオフィス |