※このサイトに記載がある賃貸条件は、敷金・保証金などの預かり金を除き、別途消費税がかかります。
物件情報
設備詳細
| 空調 | 個別空調 / セントラル空調 |
|---|---|
| トイレ | - |
| 床仕様 | OA対応床(フリーアクセス) |
| エレベータ | 5 基 |
| 駐車場設備 | 空有 / 機械式駐車場 / 平置き駐車場 |
| その他 | 機械警備 / 管理人常駐 / 光ファイバー / 新耐震基準 |
NTビルの賃貸オフィス・事務所に関するお問い合わせ
NTビルについて
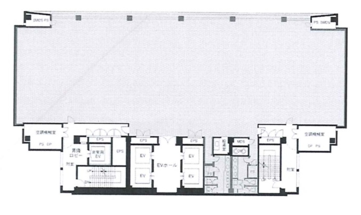
NTビルは、東京都品川区大井1丁目に位置する、1996年に竣工された新耐震基準に準拠したオフィスビルです。地上17階建て、地下2階を有するこのビルは、現代のビジネスニーズに応える設計思想に基づき構築されています。基準階坪数は約185坪と広々としており、2700mmの天井高と高さ100mmのOAフロアを備えています。これにより、空間の自由度が高く、企業の多様なレイアウト要求に柔軟に対応可能です。 ビルの設備面では、高度なセキュリティシステムが導入されており、24時間有人警備によって安全性が確保されています。また、空調システムにはセントラルと個別空調が併用されており、快適なオフィス環境を提供します。55台を収容可能な駐車場や、ビル内に設置された4基のエレベーターも、利便性の高さを物語っています。 立地においては、NTビルは大井町駅から徒歩4分の距離にあります。駅周辺は、阪急大井町ガーデン、アトレ大井町、イトーヨーカドー大井町店などの大型商業施設が立ち並び、ビジネスシーンで必要とされる多様なサービスや飲食店が充実しています。また、ビルの近隣にはコンビニや専門学校があり、日常の利便性も高いです。 ビルのデザインについても特筆すべき点があります。エントランスホールには、モダンな空間設計が施されており、個性的なデザインのソファや螺旋階段、空中回廊が配置されています。このようなデザイン性の高さは、ビルを訪れる人々に強い印象を与え、企業イメージの向上にも寄与するでしょう。 総じて、NTビルは、その優れた設備、安全性、利便性、デザイン性を兼ね備えたハイグレードなオフィスビルです。ビジネスの拠点として、また企業のブランド価値を高める場として、幅広いニーズに応えることができるでしょう。
自分で探すより問い合わせる方が早いことがあります
WEB非公開物件があるから
オーナー様のご希望により「WEBでは非公開」にしている物件があります。 それらはWEBでいくら検索しても見つかりません。 先ずは条件などお知らせ頂けましたら非公開物件含め ピッタリのオフィスをご提案させて頂きます。 無理なお勧めはしておりませんので、お気軽にお問い合わせください。
対面でのご相談も受け付けております
ご来店も歓迎です
オフィス移転は社内・社外ともに非公開に行われることが殆どです。そのためアットオフィスでは、基本的に訪問によるコンサルティングを行っておりますが、ご来店の相談も歓迎です。お一人おひとりに親身にご対応させて頂きたい為、要予約とさせて頂いております。ご来店の際は先ずは下記よりご予約下さい。
募集終了のテナント区画
| 階数 | 坪数 | 賃料 + 共益費 | 敷金/礼金敷金 礼金 | 検討 |
|---|---|---|---|---|
| 1階 | 161.72坪 (534.62m²) | 募集終了 | - | - |
| 2階 | 184.79坪 (610.88m²) | 募集終了 | - | - |
| 2階 | 23.82坪 (78.74m²) | 募集終了 | - | - |
| 3階 | 184.79坪 (610.88m²) | 募集終了 | - | - |
| 4階 | 182.43坪 (603.08m²) | 募集終了 | - | - |
| 5階 | 184.79坪 (610.88m²) | 募集終了 | - | - |
| 6階 | 184.79坪 (610.88m²) | 募集終了 | - | - |
| 6階 | 172.33坪 (569.68m²) | 募集終了 | - | - |
| 7階 | 184.79坪 (610.88m²) | 募集終了 | - | - |
| 8階 | 184.79坪 (610.88m²) | 募集終了 | - | - |
| 8階 | 172.33坪 (569.69m²) | 募集終了 | - | - |
| 9階 | 184.79坪 (610.87m²) | 募集終了 | - | - |
| 9階 | 82.66坪 (273.26m²) | 募集終了 | - | - |
| 10階 | 184.79坪 (610.87m²) | 募集終了 | - | - |
| 10階 | 82.73坪 (273.5m²) | 募集終了 | - | - |
| 11階 | 184.79坪 (610.88m²) | 募集終了 | - | - |
| 11階 | 82.66坪 (273.25m²) | 募集終了 | - | - |
| 12階 | 184.79坪 (610.88m²) | 募集終了 | - | - |
| 12階 | 82.66坪 (273.25m²) | 募集終了 | - | - |
| 13階 | 184.79坪 (610.88m²) | 募集終了 | - | - |
| 14階 | 184.79坪 (610.88m²) | 募集終了 | - | - |
| 15階 | 184.79坪 (610.88m²) | 募集終了 | - | - |
| 16階 | 184.79坪 (610.88m²) | 募集終了 | - | - |
| 17階 | 153.39坪 (507.08m²) | 募集終了 | - | - |
読込中...
品川/大崎/大井エリアでNTビルに似た条件の物件
読込中...
| 取扱様態 | 仲介 |
|---|---|
| 取扱会社 | 株式会社 アットオフィス |