※このサイトに記載がある賃貸条件は、敷金・保証金などの預かり金を除き、別途消費税がかかります。
物件情報
設備詳細
| 空調 | - |
|---|---|
| トイレ | - |
| 床仕様 | - |
| エレベータ | 1 基 |
| 駐車場設備 | 空有 |
| その他 | - |
EFGビルの賃貸オフィス・事務所に関するお問い合わせ
EFGビルについて
EFGビルは、中野区丸山1丁目に立地しています。西武鉄道新宿線「野方駅」から徒歩8分、「都立家政駅」から徒歩10分、さらに「沼袋駅」からは徒歩14分の距離にあり、3駅の利用が可能な環境です。地上8階・地下1階の構成で、1基のエレベーターを備えています。駅からのアクセスを考慮した場合、複数の路線や駅を利用できる点は、来訪や日々の業務の動線確保に寄与します。中野区丸山エリアは、周辺に住宅や商業施設が混在している地域ですので、事業活動を行う拠点として検討する際にもエリア特性を踏まえやすいロケーションとなっています。建物の階数や地下階の有無など、業態や事業計画に応じて多様な空間利用が想定されます。詳細はお問い合わせください。
EFGビルのこだわり
自分で探すより問い合わせる方が早いことがあります
WEB非公開物件があるから
オーナー様のご希望により「WEBでは非公開」にしている物件があります。 それらはWEBでいくら検索しても見つかりません。 先ずは条件などお知らせ頂けましたら非公開物件含め ピッタリのオフィスをご提案させて頂きます。 無理なお勧めはしておりませんので、お気軽にお問い合わせください。
対面でのご相談も受け付けております
ご来店も歓迎です
オフィス移転は社内・社外ともに非公開に行われることが殆どです。そのためアットオフィスでは、基本的に訪問によるコンサルティングを行っておりますが、ご来店の相談も歓迎です。お一人おひとりに親身にご対応させて頂きたい為、要予約とさせて頂いております。ご来店の際は先ずは下記よりご予約下さい。
募集終了のテナント区画
| 階数 | 坪数 | 賃料 + 共益費 | 敷金/礼金敷金 礼金 | 検討 |
|---|---|---|---|---|
| 2階 | 79.23坪 (261.91m²) | 募集終了 | - | - |
| 3階 | 79.24坪 (261.95m²) | 募集終了 | - | - |
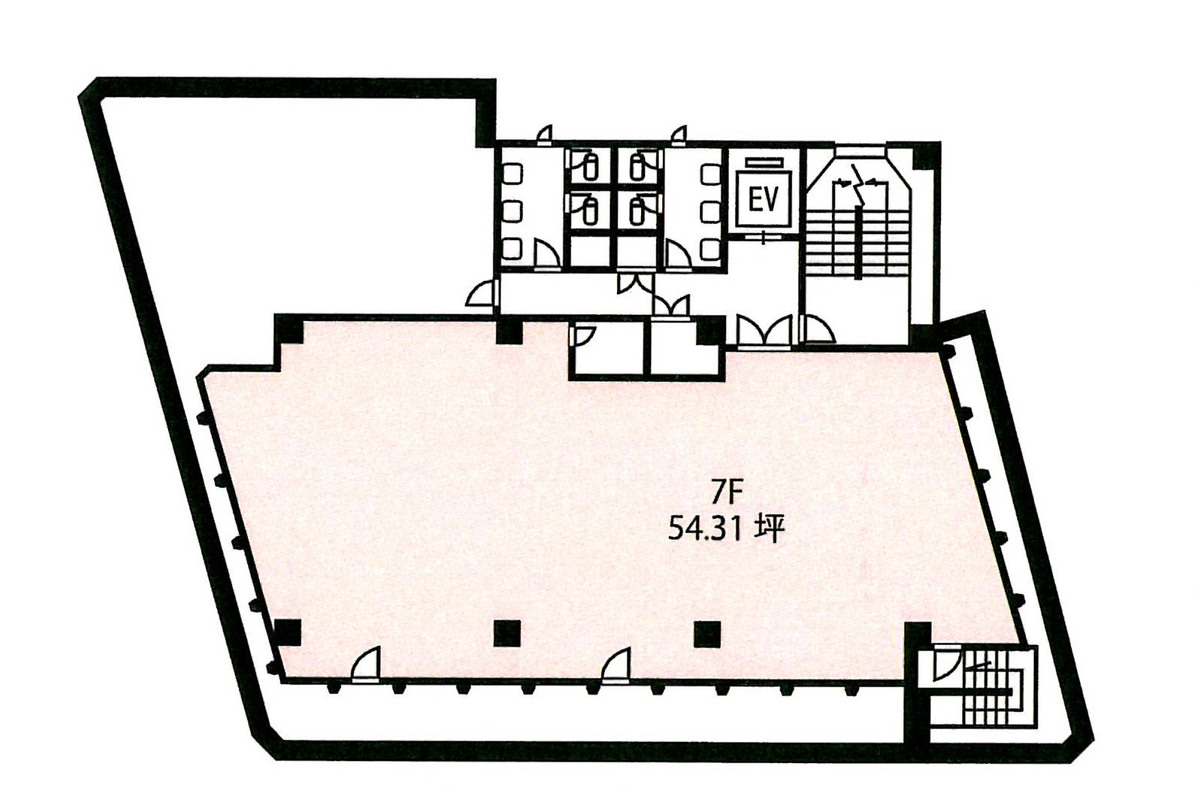
| 7階 | 54.31坪 (179.55m²) | 募集終了 | - | - |
読込中...
中野区エリアでEFGビルに似た条件の物件
読込中...
| 取扱様態 | 仲介 |
|---|---|
| 取扱会社 | 株式会社 アットオフィス |