※このサイトに記載がある賃貸条件は、敷金・保証金などの預かり金を除き、別途消費税がかかります。
物件情報
設備詳細
| 空調 | 個別空調 |
|---|---|
| トイレ | 男女別トイレ室外 |
| 床仕様 | OA対応床(フリーアクセス) |
| エレベータ | 1 基 |
| 駐車場設備 | - |
| その他 | 機械警備 / 24時間利用可 / 光ファイバー |
宝町TATSUMIビルの賃貸オフィス・事務所に関するお問い合わせ
宝町TATSUMIビルについて
宝町TATSUMIビルは、東京都中央区八丁堀に位置する賃貸オフィスビルであり、その立地と設備によって、企業にとって非常に魅力的なオフィス環境を提供しています。本ビルは1962年に竣工し、2006年に大規模なリニューアルが行われました。リニューアルにより、現代のオフィスニーズに合わせた設備とデザインが導入され、清潔感溢れるグレーの石造りの外観と、温かみのある内装が特徴です。 立地においては、宝町駅から徒歩2分という非常に利便性の高い位置にあります。また、八丁堀駅および京橋駅も利用可能で、複数の路線がアクセス可能な点はビジネスの機動性を高めます。中央区八丁堀という立地は、ビジネスの中心地としても知られ、企業にとって有利なビジネスチャンスが広がるエリアです。 宝町TATSUMIビルの特徴として、ワンフロアあたり約70坪の広さを持ち、L字型の室内構造があります。この構造は、自然光が室内に入りやすく、作業空間を明るく快適に保つことができます。また、角地に位置することで、視認性が高く、企業のブランドイメージ向上にも寄与します。床設備はフリーアクセスフロアを採用しており、オフィスのレイアウト変更が容易で、企業の成長や変化に柔軟に対応できます。 エントランスホールは、リニューアルにより洗練されたデザインが施され、優しい色合いの照明が安らぎの空間を演出しています。24時間利用可能で、機械警備が導入されているため、セキュリティ面も安心です。男女別のトイレは室外に配置され、清潔で快適な使用感を提供します。 貸室の開錠はカードキーで行われ、セキュリティを重視する企業にとっても、安全なオフィス環境を保証します。このように、宝町TATSUMIビルは、立地の良さ、機能性、セキュリティ、そして快適なオフィス環境を提供することで、企業のビジネスをサポートし、成長を促進する賃貸オフィスビルとして、高いポテンシャルを持っています。
宝町TATSUMIビルのこだわり
自分で探すより問い合わせる方が早いことがあります
WEB非公開物件があるから
オーナー様のご希望により「WEBでは非公開」にしている物件があります。 それらはWEBでいくら検索しても見つかりません。 先ずは条件などお知らせ頂けましたら非公開物件含め ピッタリのオフィスをご提案させて頂きます。 無理なお勧めはしておりませんので、お気軽にお問い合わせください。
対面でのご相談も受け付けております
ご来店も歓迎です
オフィス移転は社内・社外ともに非公開に行われることが殆どです。そのためアットオフィスでは、基本的に訪問によるコンサルティングを行っておりますが、ご来店の相談も歓迎です。お一人おひとりに親身にご対応させて頂きたい為、要予約とさせて頂いております。ご来店の際は先ずは下記よりご予約下さい。
募集終了のテナント区画
| 階数 | 坪数 | 賃料 + 共益費 | 敷金/礼金敷金 礼金 | 検討 |
|---|---|---|---|---|
| 1階 | 32.58坪 (107.7m²) | 募集終了 | - | - |
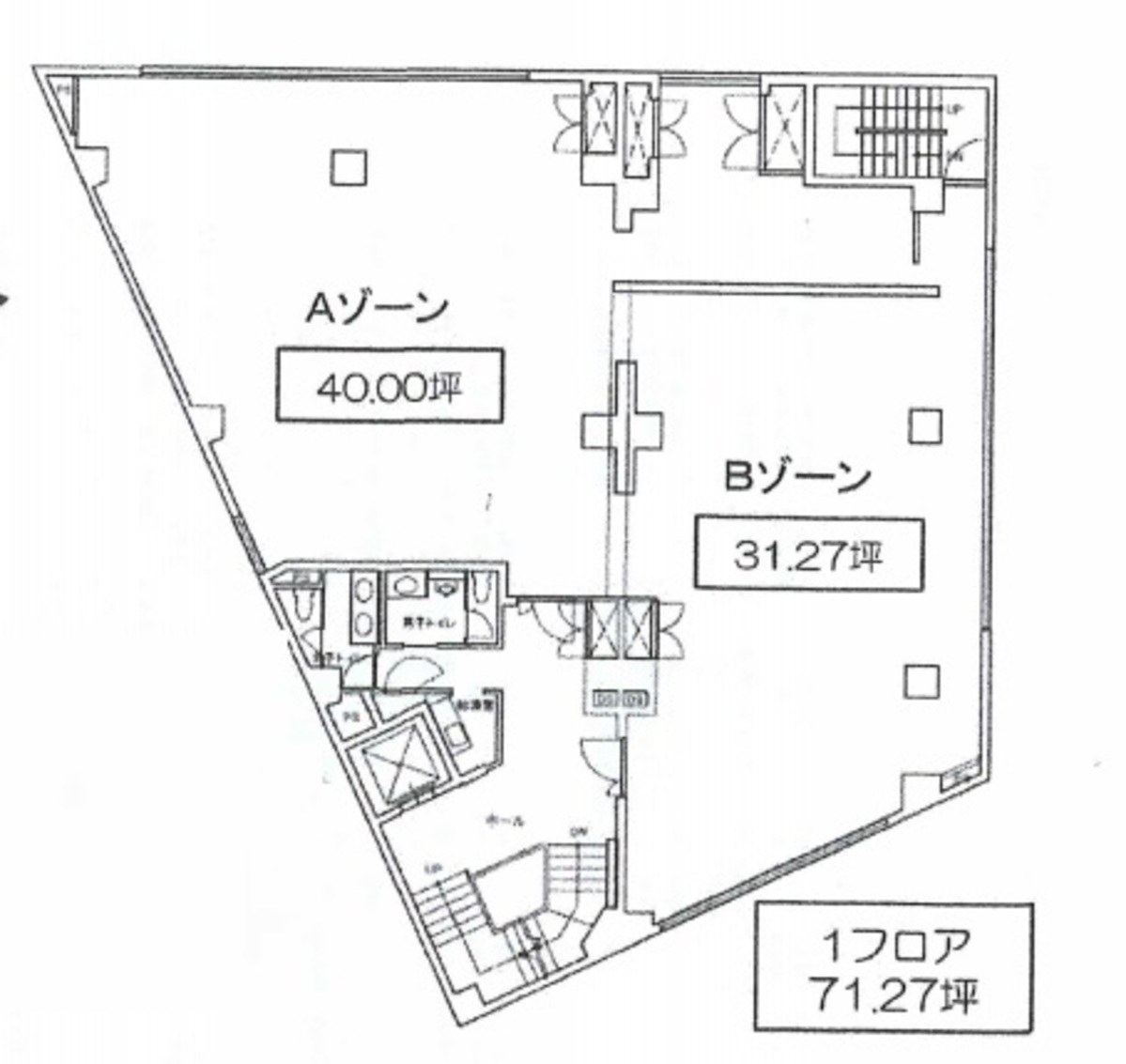
| 2階 | 71.27坪 (235.6m²) | 募集終了 | - | - |
| 3階 | 81.37坪 (268.99m²) | 募集終了 | - | - |
| 3階 | 70.74坪 (233.85m²) | 募集終了 | - | - |
| 4階 | 81坪 (267.77m²) | 募集終了 | - | - |
| 4階 | 70.74坪 (233.85m²) | 募集終了 | - | - |
| 4階 | 40坪 (132.23m²) | 募集終了 | - | - |
| 5階 | 81.37坪 (268.99m²) | 募集終了 | - | - |
| 5階 | 31.27坪 (103.37m²) | 募集終了 | - | - |
| 5階 | 71.27坪 (235.6m²) | 募集終了 | - | - |
| 6階 | 81.37坪 (268.99m²) | 募集終了 | - | - |
| 6階 | 71.27坪 (235.6m²) | 募集終了 | - | - |
| 6階 | 40坪 (132.23m²) | 募集終了 | - | - |
| 7階 | 50坪 (165.29m²) | 募集終了 | - | - |
| 7階 | 71.27坪 (235.6m²) | 募集終了 | - | - |
| 7階 | 40坪 (132.23m²) | 募集終了 | - | - |
| 8階 | 81.37坪 (268.99m²) | 募集終了 | - | - |
| 8階 | 71.27坪 (235.6m²) | 募集終了 | - | - |
| 9階 | 18.3坪 (60.5m²) | 募集終了 | - | - |
| 9階 | 22.14坪 (73.19m²) | 募集終了 | - | - |
読込中...
近くのエリアで探してみる
茅場町/新川/八丁堀エリアで宝町TATSUMIビルに似た条件の物件
読込中...
| 取扱様態 | 仲介 |
|---|---|
| 取扱会社 | 株式会社 アットオフィス |