GOWA西新宿5階の賃貸情報
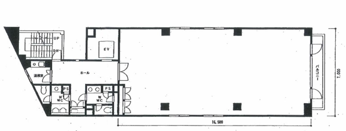
41.37 坪 (136.76m²)
※このサイトに記載がある賃貸条件は、敷金・保証金などの預かり金を除き、別途消費税がかかります。
GOWA西新宿の建物概要
設備詳細
| 空調 | 個別空調 |
|---|---|
| トイレ | - |
| 床仕様 | OA対応床(フリーアクセス) |
| エレベータ | 1 基 |
| 駐車場設備 | 空有 |
| その他 | 新耐震基準 / 機械警備 / 光ファイバー / クリニック |
GOWA西新宿5階の賃貸オフィス・事務所に関するお問い合わせ
GOWA西新宿について
GOWA西新宿ビルは、新宿区西新宿7丁目の戦略的な立地に位置する、1993年に竣工した高品質なオフィスビルです。この物件は、新耐震基準を満たす安心の構造と、ビジネスニーズに応える充実した設備が特徴です。約41坪の広々としたオフィスフロアは、OA対応で効率的なオフィス環境を提供します。個別空調システムにより、一年中快適な室温を保つことができ、男女別のトイレ設備も完備されています。 ビル内には1基のエレベーターがあり、忙しいビジネスマンの時間を大切にする設計となっています。セキュリティ面では、機械式警備システムを採用し、24時間365日の安全を守ります。また、ビル内に駐車場を備えているため、車でのアクセスも容易です。 立地の面では、大江戸線新宿西口駅から徒歩4分、西武新宿駅からは6分と、複数の駅からアクセスが可能です。新宿駅西口からもわずか7分という立地は、ビジネスパーソンにとって非常に魅力的です。周辺には飲食店やコンビニエンスストア、郵便局など、生活に必要な施設が充実しており、日々の業務に便利な環境が整っています。 外観は、シルバーグレイと黒の石張りで高級感が漂い、上層部は清潔感あふれるパネルでスタイリッシュに仕上げられています。エントランスは半円柱型の自動ドアで、2階まで吹き抜けの開放的な空間が迎え入れます。 GOWA西新宿ビルは、利便性と快適性を兼ね備えたビジネスの拠点として最適です。高いスペックと優れた立地を誇るこのビルは、あなたの企業のイメージをさらに高め、ビジネスの成功を後押しすることでしょう。新宿区でオフィスをお探しの方は、ぜひGOWA西新宿ビルをご検討ください。
自分で探すより問い合わせる方が早いことがあります
WEB非公開物件があるから
オーナー様のご希望により「WEBでは非公開」にしている物件があります。 それらはWEBでいくら検索しても見つかりません。 先ずは条件などお知らせ頂けましたら非公開物件含め ピッタリのオフィスをご提案させて頂きます。 無理なお勧めはしておりませんので、お気軽にお問い合わせください。
対面でのご相談も受け付けております
ご来店も歓迎です
オフィス移転は社内・社外ともに非公開に行われることが殆どです。そのためアットオフィスでは、基本的に訪問によるコンサルティングを行っておりますが、ご来店の相談も歓迎です。お一人おひとりに親身にご対応させて頂きたい為、要予約とさせて頂いております。ご来店の際は先ずは下記よりご予約下さい。
新宿/西新宿エリアでGOWA西新宿に似た条件の物件
読込中...
GOWA西新宿と同じ最寄駅の物件
読込中...
| 取扱様態 | 仲介 |
|---|---|
| 取扱会社 | 株式会社 アットオフィス |