西新宿成和ビル4階の賃貸情報
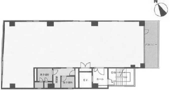
41.22 坪 (136.25m²)
※このサイトに記載がある賃貸条件は、敷金・保証金などの預かり金を除き、別途消費税がかかります。
西新宿成和ビルの建物概要
設備詳細
| 空調 | 個別空調 |
|---|---|
| トイレ | - |
| 床仕様 | - |
| エレベータ | 1 基 |
| 駐車場設備 | - |
| その他 | 新耐震基準 / 機械警備 |
西新宿成和ビルについて
西新宿成和ビルは、繁盛するビジネスエリア、東京都新宿区西新宿7丁目に位置する、1988年竣工の地上5階建ての賃貸オフィスビルです。このビルは、東京メトロ丸ノ内線「西新宿」駅から僅か徒歩3分、そして新宿駅からも徒歩10分という、アクセスの良さが特徴です。西新宿成和ビルは、ビジネスの中心地に位置しながらも、周辺環境が静かで落ち着いているため、集中して業務に取り組むことができる理想的なオフィススペースを提供します。 特に注目すべきは、ビルのスペックの高さです。1988年の竣工とは思えない程に、新耐震基準に適合しており、安心してご利用いただけます。また、光ファイバーによる高速インターネット接続やOAフロア対応が完備されており、現代のビジネスニーズに最適化されています。さらに、セキュリティ面でも優れており、カードキーによる入退室管理システムを導入しているため、テナントの安全性を確保しています。 このビルの提供するオフィススペースは、41.21〜44.72坪という広さで、中規模の企業に最適です。外観はシンプルな白タイル張りで、清潔感があり、ビジネスの顔としての印象を良くします。共用部分はコンパクトですが、必要十分な機能を備えており、効率的に使用することが可能です。 周辺環境も魅力の一つです。ビルは青梅街道から少し入った場所に位置し、周囲には飲食店やコンビニが点在しており、日常の買い物やランチに困ることがありません。また、新宿中央公園が近いため、オフィスワークの合間のリフレッシュにも最適です。 西新宿5丁目で進行中の再開発が周辺エリアのさらなる発展を予感させ、西新宿成和ビルは今後もビジネスの拠点としての魅力を増していくでしょう。このビルは、立地、スペック、環境のすべてにおいて、ビジネスの成功に貢献する素晴らしい賃貸オフィスです。ビジネスの新たな拠点として、ぜひ西新宿成和ビルをご検討ください。
西新宿成和ビルのこだわり
自分で探すより問い合わせる方が早いことがあります
WEB非公開物件があるから
オーナー様のご希望により「WEBでは非公開」にしている物件があります。 それらはWEBでいくら検索しても見つかりません。 先ずは条件などお知らせ頂けましたら非公開物件含め ピッタリのオフィスをご提案させて頂きます。 無理なお勧めはしておりませんので、お気軽にお問い合わせください。
対面でのご相談も受け付けております
ご来店も歓迎です
オフィス移転は社内・社外ともに非公開に行われることが殆どです。そのためアットオフィスでは、基本的に訪問によるコンサルティングを行っておりますが、ご来店の相談も歓迎です。お一人おひとりに親身にご対応させて頂きたい為、要予約とさせて頂いております。ご来店の際は先ずは下記よりご予約下さい。
新宿/西新宿エリアで西新宿成和ビルに似た条件の物件
読込中...
西新宿成和ビルと同じ最寄駅の物件
読込中...
| 取扱様態 | 仲介 |
|---|---|
| 取扱会社 | 株式会社 アットオフィス |