アルモニコンフォールビル2階の賃貸情報
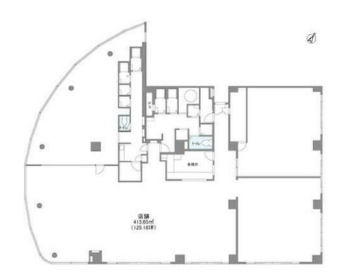
125.18 坪 (413.85m²)
1,390,500円 (坪:11,108 円)
※このサイトに記載がある賃貸条件は、敷金・保証金などの預かり金を除き、別途消費税がかかります。
アルモニコンフォールビルの建物概要
設備詳細
| 空調 | - |
|---|---|
| トイレ | - |
| 床仕様 | - |
| エレベータ | 1 基 |
| 駐車場設備 | 空有 |
| その他 | 新耐震基準 / クリニック |
アルモニコンフォールビル2階の賃貸オフィス・事務所に関するお問い合わせ
アルモニコンフォールビルについて
アルモニコンフォールビルは、江戸川区南小岩3丁目に位置し、総武線「小岩駅」から徒歩10分の距離にあります。また、京成電鉄本線「江戸川駅」も徒歩16分で利用可能です。複数の駅からアクセスできる立地となっており、周辺は住宅や商業施設が混在するエリアです。 本ビルは地上8階建てで、エレベーターが1基設置されています。階数を活かした拠点づくりや、各階ごとのゾーニングなども検討しやすい構造です。所在階によっては周囲の街並みを見渡せる眺望も確保できます。建物の外観や共用部は、明快な構成となっており、法人利用の拠点やオフィスとしての活用が考えられます。 周辺は落ち着いた環境である一方、駅や道路からのアクセスが確保されており、事業活動における拠点の一つとして選択肢となる建物です。詳細はお問い合わせください。
自分で探すより問い合わせる方が早いことがあります
WEB非公開物件があるから
オーナー様のご希望により「WEBでは非公開」にしている物件があります。 それらはWEBでいくら検索しても見つかりません。 先ずは条件などお知らせ頂けましたら非公開物件含め ピッタリのオフィスをご提案させて頂きます。 無理なお勧めはしておりませんので、お気軽にお問い合わせください。
対面でのご相談も受け付けております
ご来店も歓迎です
オフィス移転は社内・社外ともに非公開に行われることが殆どです。そのためアットオフィスでは、基本的に訪問によるコンサルティングを行っておりますが、ご来店の相談も歓迎です。お一人おひとりに親身にご対応させて頂きたい為、要予約とさせて頂いております。ご来店の際は先ずは下記よりご予約下さい。
江戸川区エリアでアルモニコンフォールビルに似た条件の物件
読込中...
アルモニコンフォールビルと同じ最寄駅の物件
読込中...
| 取扱様態 | 仲介 |
|---|---|
| 取扱会社 | 株式会社 アットオフィス |